Eladó jó állapotú ház - Vecsés
- INGYENES HIRDETÉS FELADÁS
Ingatlan adatai
- Eladó vagy kiadó:Eladó
- Település:Vecsés
- Kategória:Ház
- Alkategória:Családi ház
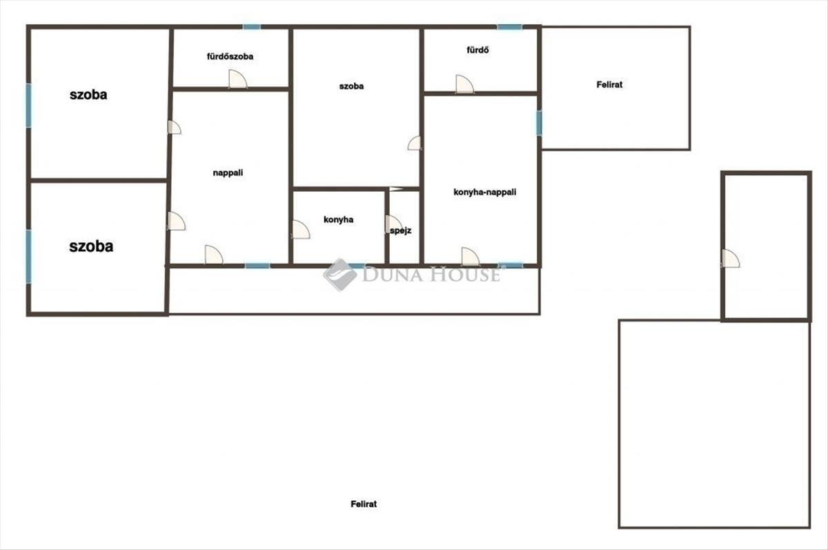
- Alapterület:121 m2
- Telekterület:518 m2
- Csere is:Nem
- Hirdető:Cég
- Élő videón megtekinthető:Nem
- Építés éve:1980
- Szobaszám:5
- Állapot:Jó állapotú
- Hány szintes az ingatlan:Földszintes
- Tetőtér:nincs megadva
- Komfortosság:nincs megadva
- Pince:nincs megadva
- Parkolási lehetőség:nincs megadva
- Fűtés:Gáz (cirko)
- Bútorozottság:nincs megadva
- Fényviszony:Napfényes
- Tájolás:DNY
- Kilátás:nincs megadva
- Internet:nincs megadva
- Klíma:nincs megadva
- Akadálymentesített:nincs megadva
- Energiatanúsítvány:nincs megadva
- Villany:nincs megadva
- Víz:nincs megadva
- Gáz:nincs megadva
- Csatorna:nincs megadva
- Kapcsolatfelvétel

Muhorai Péter László
+36-(20)-985-7006
Mondd meg a hirdetőnek, hogy a megveszLAK-on találtad a hirdetést.
Referencia szám: HZ095682
Hitel ajánlatok
Ingatlan hirdetés leírása
Eladó ház, Vecsés, Eladó jó állapotú ház - Vecsés
Vecsésen, 518 m²-es telken kínálunk megvételre egy 121 m² lakóterületű, kétgenerációs családi házat, amely külön 2 bejáratú lakrészekkel rendelkezik.
Első lakrész:
2 szoba
nappali
konyha
fürdőszoba
fűtés: gázkazán
Burkolatok : szobákban fa parketta, a vizes helységekben kő burkolat található
Hátsó lakrész:
1 szoba
konyha
fürdőszoba
fűtés: klíma
Nyílászárók korszerűsítve lettek
Burkolatok : Szobában laminált parketta, a többi helységben kő burkolat található.
Az ingatlan, vegyes falazattal rendelkezik. Vízzáró réteggel ellátva.
Szigetelése nincs
A két lakás külön mérőórákkal rendelkezik
⸻
Udvar és extrák:
Hangulatos, fedett kiülő terasz
Kerti tó
10 m²-es műhely
Két autó számára elegendő fedett beálló
Az ingatlan ideális:
Két generáció együtt, mégis külön élésére, de igény szerint egybe is nyitható a két lakrész.
Csendes, nyugodt környezet, jó hangulatú kerttel igazi otthon lehetőség!
Közelben : iskola, óvoda, vasútállomás
Amennyiben hirdetésem felkeltette érdeklődését, keressen bizalommal. FIX 3% lakáshitelre megvehető

