Eladó átlagos állapotú ház - Vecsés
- INGYENES HIRDETÉS FELADÁS
Ingatlan adatai
- Feladva:62 napja a megveszLAK-on
- Eladó vagy kiadó:Eladó
- Település:Vecsés
- Kategória:Ház
- Alkategória:Családi ház
- Alapterület:335 m2
- Telekterület:425 m2
- Csere is:Nem
- Hirdető:Cég
- Élő videón megtekinthető:Nem
- Építés éve:1980
- Szobaszám:9
- Állapot:Átlagos állapotú
- Hány szintes az ingatlan:Földszintes
- Tetőtér:nincs megadva
- Komfortosság:nincs megadva
- Pince:nincs megadva
- Parkolási lehetőség:nincs megadva
- Fűtés:Elektromos
- Bútorozottság:nincs megadva
- Fényviszony:Napfényes
- Tájolás:DNY
- Kilátás:nincs megadva
- Internet:nincs megadva
- Klíma:nincs megadva
- Akadálymentesített:nincs megadva
- Energiatanúsítvány:nincs megadva
- Villany:Van
- Víz:Van
- Gáz:Van
- Csatorna:Van
- Kapcsolatfelvétel

Szűcs Dominik Tibor
+36-(70)-419-9306
Mondd meg a hirdetőnek, hogy a megveszLAK-on találtad a hirdetést.
Referencia szám: HZ083385
Hitel ajánlatok
Ingatlan hirdetés leírása
Vecsés központi részén
Befektetők vállalkozó szelleműek figyelem!
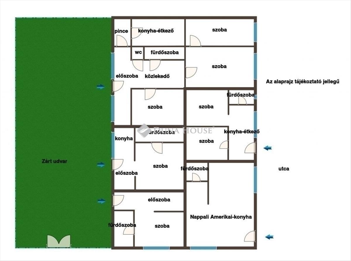
Vecsés központi részén az állomáshoz közel, így a tömegközlekedés adott, eladó egy 335 négyzetméteres ingatlan, mely jelenleg 5darab lakásból áll.
Régen üzletként és vendéglátóegységként funkcionált az épület, így bármilyen tevékenységre alkalmas! Jelenleg az 5 darab lakás ki van adva, gipszkarton falakkal vannak csak elválasztva így könnyen újra egybe is nyitható! Felújítás, társasházzá alapítás után tovább értékesítésre is tökéletesen alkalmas, főképp a jó tömegközlekedése miatt.
A telken minden közmű megtalálható! Parkoló kialakítása adott!
A nyílászárók mindegyik részben kicserélésre kerültek!
Tehermentes, egy tulajdonosa van, hitelekre alkalmas!
Ha felkeltette érdeklődédét hívjon a hét bármely napján!
Szűcs Dominik Tibor +36/70/419/9306 szucs. Dominik@dh. Hu
Referencia szám: hz083385 Hitel.hu - Hasonlítsa össze a bankok lakáshitel ajánlatait
Tetszett ez az eladó Vecsési átlagos állapotú 9 szobás családi ház? Hívd fel a hirdetőt most, és tudj meg mindent erről az eladó családi házról! Ha gondolod nézelődj tovább az eladó ház Vecsés oldal hirdetései között. Ennek az eladó háznak az ára 185000000 Ft és mivel az alapterülete 335 négyzetméter, ezért az átlagos négyzetméterára 552239 HUF/m2.
Az eladó házak menüpontban további hirdetések között is böngészhetsz. Ha van kedved, akkor böngészhetsz a Szűcs Dominik Tibor összes hirdetése között, vagy akár a/az Duna House Villa Gyömrő összes hirdetése között is.

