Eladó jó állapotú ház - Vecsés
- INGYENES HIRDETÉS FELADÁS
Ingatlan adatai
- Eladó vagy kiadó:Eladó
- Település:Vecsés
- Kategória:Ház
- Alkategória:Családi ház
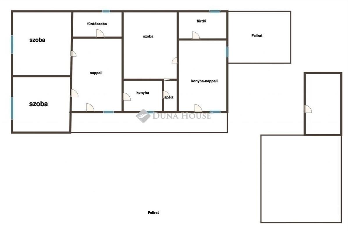
- Alapterület:121 m2
- Telekterület:518 m2
- Csere is:Nem
- Hirdető:Cég
- Élő videón megtekinthető:Nem
- Építés éve:1980
- Szobaszám:5
- Állapot:Jó állapotú
- Hány szintes az ingatlan:Földszintes
- Tetőtér:nincs megadva
- Komfortosság:nincs megadva
- Pince:nincs megadva
- Parkolási lehetőség:nincs megadva
- Fűtés:Gáz (cirko)
- Bútorozottság:nincs megadva
- Fényviszony:Napfényes
- Tájolás:DNY
- Kilátás:nincs megadva
- Internet:nincs megadva
- Klíma:nincs megadva
- Akadálymentesített:nincs megadva
- Energiatanúsítvány:D
- Villany:Van
- Víz:Van
- Gáz:Van
- Csatorna:Van
- Kapcsolatfelvétel

Csobai Lászlóné
+36-(70)-743-3389
Mondd meg a hirdetőnek, hogy a megveszLAK-on találtad a hirdetést.
Referencia szám: HZ095682
Hitel ajánlatok
Ingatlan hirdetés leírása
Eladó ház, Vecsés, Eladó jó állapotú ház - Vecsés
Vecsésen, 518 m²-es telken kínálunk megvételre egy 121 m² lakóterületű, kétgenerációs családi házat, amely külön 2 bejáratú lakrészekkel rendelkezik. Első lakrész: 2 szoba nappali konyha fürdőszoba fűtés: gázkazánBurkolatok : szobákban fa parketta, a vizes helységekben kő burkolat található Hátsó lakrész: 1 szoba konyha fürdőszoba fűtés: klímaNyílászárók korszerűsítve lettekBurkolatok : Szobában laminált parketta, a többi helységben kő burkolat található. Az ingatlan, vegyes falazattal rendelkezik. Vízzáró réteggel ellátva. Szigetelése nincs a két lakás külön mérőórákkal rendelkezik⸻ Udvar és extrák: Hangulatos, fedett kiülő terasz Kerti tó 10 m²-es műhely Két autó számára elegendő fedett beállóAz ingatlan ideális: Két generáció együtt, mégis külön élésére, de igény szerint egybe is nyitható a két lakrész. Csendes, nyugodt környezet, jó hangulatú kerttel igazi otthon lehetőség! Közelben : iskola, óvoda, vasútállomásAmennyiben hirdetésem felkeltette érdeklődését, keressen bizalommal.
88000000 Ft FIX 3% lakáshitelre megvehető
Tetszett ez az eladó Vecsési jó állapotú 5 szobás családi ház? Hívd fel a hirdetőt most, és tudj meg mindent erről az eladó családi házról! Ha gondolod nézelődj tovább az eladó ház Vecsés oldal hirdetései között. Ennek az eladó háznak az ára 88000000 Ft és mivel az alapterülete 121 négyzetméter, ezért az átlagos négyzetméterára 727273 HUF/m2.
Az eladó házak menüpontban további hirdetések között is böngészhetsz. Ha van kedved, akkor böngészhetsz a Csobai Lászlóné összes hirdetése között, vagy akár a/az Duna House Vecsés összes hirdetése között is.

