Eladó átlagos állapotú ház Veresegyház
| Kedvencbe | Megosztás | Árfigyelő |
| Kedvezményes lakáshitel ajánlatok | ||
| 159 000 000 HUF | ||
Ingatlan adatai
- Eladó vagy kiadó:Eladó
- Település:Veresegyház
- Kategória:Ház
- Alkategória:Családi ház
- Alapterület:201 m2
- Telekterület:1489 m2
- Csere is:Nem
- Hirdető:Cég
- Élő videón megtekinthető:Nem
- Építés éve:1982
- Szobaszám:3
- Állapot:Átlagos állapotú
- Hány szintes az ingatlan:Földszintes
- Tetőtér:nincs megadva
- Komfortosság:nincs megadva
- Parkolási lehetőség:nincs megadva
- Fűtés:Gáz (cirko)
- Bútorozottság:nincs megadva
- Fényviszony:Napfényes
- Tájolás:DNY
- Kilátás:nincs megadva
- Internet:nincs megadva
- Akadálymentesített:nincs megadva
- Energiatanúsítvány:nincs megadva
- Villany:nincs megadva
- Víz:nincs megadva
- Gáz:nincs megadva
- Csatorna:nincs megadva
- Üzenetküldés
- Hívás

Kovács-Őrsi Diána
Mondd meg a hirdetőnek, hogy a megveszLAK-on találtad a hirdetést.
Referencia szám: HZ050142

Hitel ajánlat
Ingatlan hirdetés leírása
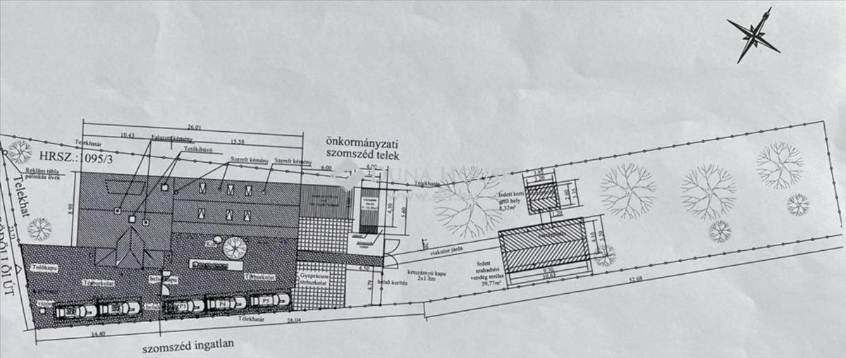
Eladó ház, Veresegyház
Működő pálinkafőzde és vendégtér, emeleten lakás, hatalmas privát kert a nádas partján nagy szaletlivel eladó! Csábító ajánlat? Elsősorban a vállalkozás továbbvitelében érdekelt vevő számára izgalmas lehetőség ez a minden engedéllyel és berendezéssel felszerelt, működő, családi házból átalakított pálinkafőzde, amihez kapcsolódik egy vendéglátásra és pálinka-kiskereskedelemre kialakított barátságos tér is. Az eredeti vendéglátó tér jelenleg klímaszaküzletként működik, akár ilyen, akár más kereskedelmi tevékenységre is alkalmas előnyös elhelyezkedése miatt. Mindez a földszinti területen (140m2), udvar felőli megközelítéssel. Az udvaron burkolt (viakolorozott) parkoló- és rakodótér került kialakításra. Az üzemi terület és a vendéglátó tér elkülönül. a régi lakóház felső szintje megőrizte korábbi lakás-jellegét, bár jelen formájában inkább tárolásra használják. a 60m2-es élettér 2 szobából, egy nappaliból fürdőszoba+WC-ből és tárolókból áll. a ház része az udvarról megközelíthető, zárható garázs (jelenleg cefrézőként üzemel). Az épület kívülről nagyon szép állapotban van, belülről kisebb szépészeti beavatkozás után tökéletes állapotra hozható, de jelen állapotában is élhető. Fűtési rendszere gáz cirkó + 3 klíma. Elektromos hálózata két külön körön fut (a vendéglátó tér=régi családi ház, és az üzemterület külön-külön), ezen felül éjszakai áram használata is adott. a kert ápolt, tágas, füves tér, két építménnyel, az egyik jelenleg raktárként működő, de alapvetően 50 m2-es szaletlinek készült kerthelyiség, mellette különálló kb. 9m2 konyhatérrel, ahova víz és áram is oda van vezetve. Pálinkafőző tevékenység folyamatos, ha valaki szeretné átvenni, a technológia és a vállalkozás szintén eladó. E kettő a jelen ingatlan irányárában nincs benne, az ár külön megállapodás tárgyát képezi. a jelenlegi kostolótér egyébként üzlethelyiségként is működikA ház 2014-ben teljes felújításon esett át, új fa nyílászárók lettek beépítve, teljesen új fűtési rendszer készült. Radiátor és padlófűtés került beszerelésve. Az üzemrész mellett egy hűtőkamra és egy szerszámtároló helyiség is része az ingatlannak. Az ingatlan közvetlenül a főút mellett található, előtte könnyű parkolási lehetőség adott. Tömegközlekedéssel is könnyen megközelíthető (mind a vasút, mind a buszmegálló gyalogosan elérhető), szintén közvetlen közelben van vásárlási lehetőség, a város központja kb. 500 Méter. Figyelemre méltó ajánlatunkat első sorban vállalkozásók, vállalkozások számára ajánljuk, de ha valakinek lakóingatlanként nyerné el a tetszését, szintén kincset talál! Amennyiben érdeklődését felkeltettük, várjuk hívását a megadott mobilszámon.Referencia szám: hz050142 Hitel.hu - Hasonlítsa össze a bankok lakáshitel ajánlatait

