Eladó átlagos állapotú ház - Veresegyház
- INGYENES HIRDETÉS FELADÁS
Ingatlan adatai
- Eladó vagy kiadó:Eladó
- Település:Veresegyház
- Kategória:Ház
- Alkategória:Családi ház
- Alapterület:201 m2
- Telekterület:1489 m2
- Csere is:Nem
- Hirdető:Cég
- Élő videón megtekinthető:Nem
- Építés éve:1982
- Szobaszám:3
- Állapot:Átlagos állapotú
- Hány szintes az ingatlan:Földszintes
- Tetőtér:nincs megadva
- Komfortosság:nincs megadva
- Pince:nincs megadva
- Parkolási lehetőség:nincs megadva
- Fűtés:Gáz (cirko)
- Bútorozottság:nincs megadva
- Fényviszony:Napfényes
- Tájolás:DNY
- Kilátás:nincs megadva
- Internet:nincs megadva
- Klíma:nincs megadva
- Akadálymentesített:nincs megadva
- Energiatanúsítvány:nincs megadva
- Villany:nincs megadva
- Víz:nincs megadva
- Gáz:nincs megadva
- Csatorna:nincs megadva
- Kapcsolatfelvétel

Kovács Zoltán
+36-(30)-219-9833
Mondd meg a hirdetőnek, hogy a megveszLAK-on találtad a hirdetést.
Referencia szám: HZ050142
Hitel ajánlatok
Ingatlan hirdetés leírása
Eladó ház, Veresegyház
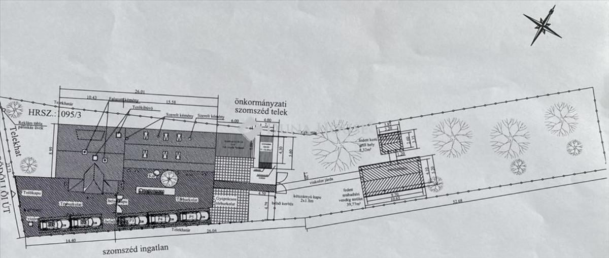
Tökéletes választás Veresegyház legjobb forgalmú részén! Akár lakóház, akár vállalkozás céljára kitűnően alkalmas, hatalmas kerttel rendelkező, kétszintes családi ház eladó! Remek állapotú, 1500m2-es telken lévő, jól szeparált, nyugodt zöld területtel rendelkező, erkélyes, 4 szobás, jól megközelíthető ingatlan lakás vagy vállalkozási célra eladó! a ház korábban lakóingatlan volt, kis változtatásokkal könnyen visszaalakítható családi otthonná. a házon belül jól elkülöníthető a vállalkozásra és a lakhatásra alkalmas terek, ha mindkettőt szeretné! Az ingatlan varázsa, hogy hátul hatalmas privát kerttel, baráti társaságok számára is kiválóan alkalmas, nagy szaletlivel és kerti főző résszel kínál nyugalmat a pörgős napok után. a ház felső szintje megőrizte korábbi lakás-jellegét. a 60m2-es emeleti rész kellemes életteret kínál: 2 szoba és egy nagy, erkélyes nappali mellett tartozik hozzá egy szép állapotú fürdőszoba+WC, valamint több tároló is. a lakóház alsó szintjén jelenleg nagyon jól bejáratott klíma üzlet működit, valamint itt található a üzlet, kiskereskedelemre kialakított barátságos tér is. Eredeti állapotában egy nagy nappali, előtér, lépcsőfeljáró, konyha, kamra és fürdőszoba volt, ez az állapot könnyen visszállítható. Az alsó szintjéről és az udvar felől is megközelíthető a jelenleg pálinkafőzdeként működő házrész. Ezt az új tulajdonos igénye szerint könnyen teljesen le is tudja választani a lakóháztól. Az üzemrészben található az előtérből megközelítve az iroda, tárolók, vendég-WC és a csarnok. Az épület kívül - belül nagyon szép állapotban van, jelen állapotában is élhető. Fűtési rendszere gáz cirkó + 3 klíma. Elektromos hálózata felújított, két külön körön fut (a vendéglátó tér=régi családi ház, és az üzemterület külön-külön), ezen felül éjszakai áram használata is adott. a ház 2014-ben teljes felújításon esett át, új fa nyílászárók lettek beépítve, teljesen új fűtési rendszer készült. Radiátor és padlófűtés került beszerelésre. a ház része az udvarról megközelíthető, zárható garázs, emellett több autó parkolása és a rakodás is biztosított a burkolt (viakolorozott) udvaron. Egy hűtőkamra és egy szerszámtároló helyiség is része az ingatlannak. a jól leválasztott kert ápolt, tágas, füves tér, két építménnyel, az egyik jelenleg raktárként működő, de alapvetően 50 m2-es szaletlinek készült kerthelyiség, mellette különálló kb. 9m2 konyhatérrel, ahova víz és áram is oda van vezetve. Az ingatlan közvetlenül a főút mellett található, előtte könnyű parkolási lehetőség adott. Tömegközlekedéssel is könnyen megközelíthető (mind a vasút, mind a buszmegálló gyalogosan elérhető), szintén közvetlen közelben van vásárlási lehetőség, a város központja kb. 500 Méter. Tökéletes választás, ha kereskedelmi vagy vendéglátóipari tevékenység, vagy akár magánóvoda/-iskola kialakítására előnyös elhelyezkedése, udvara és a megoldott parkolási lehetőségek miatt. Akár több vállalkozás is párhuzamosan működtethető itt, a tevékenységek egyástól térben jól elkülöníthetőek! Figyelemre méltó ajánlatunkat első sorban vállalkozásók, vállalkozások számára ajánljuk, de ha valakinek lakóingatlanként nyerné el a tetszését, szintén kincset talál! Amennyiben érdeklődését felkeltettük, várjuk hívását a megadott mobilszámon. Hitel.hu - Hasonlítsa össze a bankok lakáshitel ajánlatait
Tetszett ez az eladó Veresegyházi átlagos állapotú 3 szobás családi ház? Hívd fel a hirdetőt most, és tudj meg mindent erről az eladó családi házról! Ha gondolod nézelődj tovább az eladó ház Veresegyház oldal hirdetései között. Ennek az eladó háznak az ára 159000000 Ft és mivel az alapterülete 201 négyzetméter, ezért az átlagos négyzetméterára 791045 HUF/m2.
Az eladó házak menüpontban további hirdetések között is böngészhetsz. Ha van kedved, akkor böngészhetsz a Kovács Zoltán összes hirdetése között, vagy akár a/az Duna House Fót összes hirdetése között is.

