Eladó újszerű állapotú ház - Veresegyház
- INGYENES HIRDETÉS FELADÁS
Ingatlan adatai
- Eladó vagy kiadó:Eladó
- Település:Veresegyház
- Kategória:Ház
- Alkategória:Családi ház
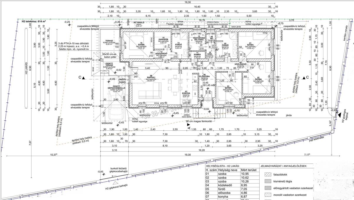
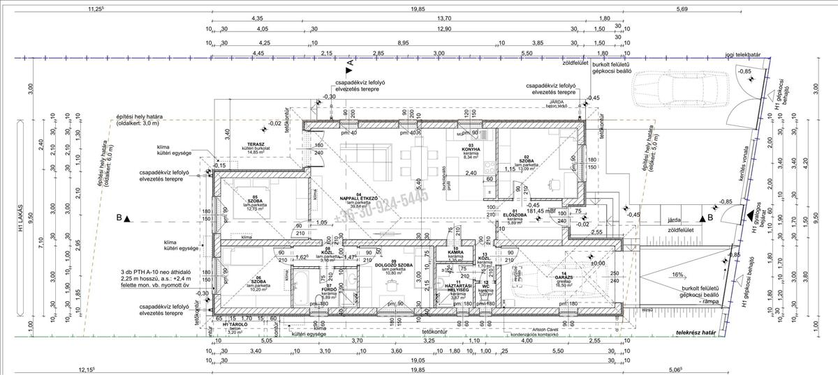
- Alapterület:118 m2
- Telekterület:504 m2
- Csere is:Nem
- Hirdető:Cég
- Élő videón megtekinthető:Nem
- Építés éve:2025
- Szobaszám:5
- Állapot:Újszerű, kitűnő
- Hány szintes az ingatlan:nincs megadva
- Tetőtér:nincs megadva
- Komfortosság:Dupla komfortos
- Pince:Nincs
- Parkolási lehetőség:Garázsban
- Fűtés:Gáz (cirko)
- Bútorozottság:nincs megadva
- Fényviszony:nincs megadva
- Tájolás:nincs megadva
- Kilátás:nincs megadva
- Internet:nincs megadva
- Klíma:nincs megadva
- Akadálymentesített:nincs megadva
- Energiatanúsítvány:nincs megadva
- Villany:Van
- Víz:Van
- Gáz:Van
- Csatorna:Van
- Kapcsolatfelvétel

Turzó Bettina
+36-(30)-924-5445
Mondd meg a hirdetőnek, hogy a megveszLAK-on találtad a hirdetést.
Ingatlan hirdetés leírása
Eladó Családi ház, Veresegyház, Ligetek, 118nm, 149900000 Ft
***Az építkezés KEZDŐDIK***
Veresegyház kedvelt részén, családi házas övezetben, 504 nm-es telekre épülő, egyszintes, nettó 118 nm-es, nappali + 4 szobás, dupla komfortos, 16, 50 nm-es garázzsal, 15 nm-es terasszal, 3 nm-es külső tárolóval rendelkező családi ház eladó!
A kivitelezés a mai kor igényeinek minden tekintetben megfelelő, minőségi alapanyagok felhasználásával TÖRTÉNIK!
Beruházó referencia munkái a közelben megtekinthetők!
Helyiséglista:
előszoba 5, 89 nm
WC 1, 20 nm
közlekedő 3, 10 nm
közlekedő 1, 70 nm
fürdő 5, 89 nm
házt. H. 3, 87 Nm
kamra 1, 35 nm
konyha-étkező-nappali 48, 18 nm
szoba 13, 09 nm
szoba 12, 75 nm
szoba 10, 80 nm
szoba 10, 20 nm
garázs 16, 50 nm
terasz 14, 85 nm
fedett tároló 3, 20 nm
Műszaki leírás röviden:
*teherhordó fal pth 30-as síkra csiszolt okos tégla
*belső válaszfalak 10 cm PTH
*15 cm-es homlokzati szigetelés
*nyílászárók műanyag 3 rétegű, 5 légkamrás kivitel
*betongerendás födém
*tetőcserép
*fűtése kondenzációs gázkazán, padlófűtéssel (hőszivattyú megbeszélés kérdése)
*3 db klíma előkészítés
*utcafronti kerítés zsalukő erősített fa lécezés
*szaniterek, beltéri ajtók a műszaki leírásban meghatározott értékben választhatók.
Hiteligény esetén az ügyintézést szakszerűen, gyorsan és díjmentesen biztosítjuk ügyfeleink számára, így a legkedvezőbb megoldást tudjuk kínálni az ingatlan megvásárlásához.
Várom megtisztelő érdeklődését, akár hétvégén is! FIX 3% lakáshitelre megvehető


