- >>
- eladó ingatlanok
- >>
- eladó ház
- >>
- eladó ház Villány
- >>
Eladó felújítandó ház - Villány
| | |||
| Kedvencnek jelölöm | Elküldöm emailben | Megosztás | Szavazás |
| FIX 3% lakáshitelre megvehető | |||
| 22 900 000 HUF | |||
Ingatlan adatai
- Eladó vagy kiadó:Eladó
- Település:Villány
- Kategória:Ház
- Alkategória:Családi ház
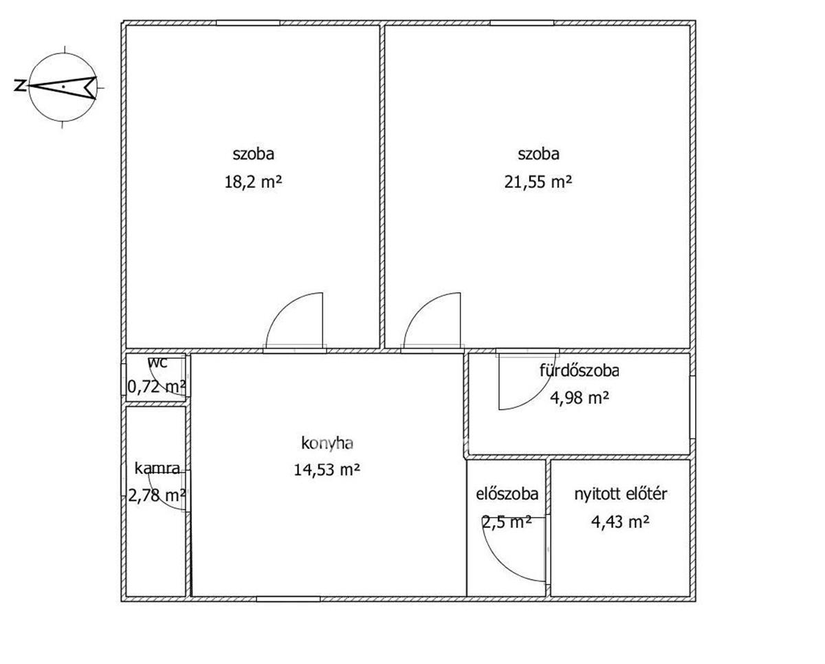
- Alapterület:72 m2
- Telekterület:307 m2
- Csere is:Nem
- Hirdető:Cég
- Élő videón megtekinthető:Nem
- Építés éve:1980
- Szobaszám:2
- Állapot:Felújítandó
- Hány szintes az ingatlan:Földszintes
- Tetőtér:nincs megadva
- Komfortosság:nincs megadva
- Parkolási lehetőség:Teremgarázsban
- Fűtés:Elektromos
- Bútorozottság:nincs megadva
- Fényviszony:Napfényes
- Tájolás:nincs megadva
- Kilátás:nincs megadva
- Internet:nincs megadva
- Akadálymentesített:nincs megadva
- Energiatanúsítvány:nincs megadva
- Villany:Telken belül
- Víz:Telken belül
- Gáz:Telken belül
- Csatorna:nincs megadva
- Üzenetküldés
- Hívás

Vincze László György
Mondd meg a hirdetőnek, hogy a megveszLAK-on találtad a hirdetést.
Referencia szám: M276199

Hitel ajánlat
Ingatlan hirdetés leírása
Eladó Ház, Villány, Eladó felújítandó ház - Villány
Eladó Villány központjában, a Damjanich utcában, vegyes szerkezetű 72, 5 négyzetméteres ház 307m2- es rendezett telken!Jelen állapotában felújításra szorul. Az a megoldás is lehetséges, hogy a mostani tulajdonos a vevő kérésére teljesen újjáépíti, egy megállapodott összegért a vételár felett.
Jelenleg a fűtést klíma adja, víz, szennyvíz, villany van, de a gázcsonk az udvarban van. Parkolni a garázsban, és az udvarban is lehet.
Közvetlen környezetében minden kiszolgáló egység megtalálható: iskola 700 méter; pizzéria, Tom Market, pékség, hentes 450 méter; OTP bank, fagyizó és a gyógyszertár 600 méter távolságra van.
Elhelyezkedése miatt kiváló választás lehet befektetőknek, családoknak és időseknek egyaránt!
A ház tehermentes, a teljes vételár megfizetését követően azonnal birtokba vehető!
Refenciszám: m276199
22900000 Ft
Referencia szám: m276199 FIX 3% lakáshitelre megvehető

