Eladó jó állapotú ház Zamárdi
| Kedvencbe | Megosztás | Árfigyelő |
| FIX 3% lakáshitelre megvehető | ||
| 88 800 000 HUF | ||
Ingatlan adatai
- Eladó vagy kiadó:Eladó
- Település:Zamárdi
- Kategória:Ház
- Alkategória:Családi ház
- Alapterület:136 m2
- Telekterület:444 m2
- Csere is:Nem
- Hirdető:Cég
- Élő videón megtekinthető:Nem
- Építés éve:2005
- Szobaszám:4 + 2 fél
- Állapot:Jó állapotú
- Hány szintes az ingatlan:2 szintes
- Tetőtér:nincs megadva
- Komfortosság:nincs megadva
- Parkolási lehetőség:Garázsban
- Fűtés:Gáz (cirko)
- Bútorozottság:nincs megadva
- Fényviszony:nincs megadva
- Tájolás:nincs megadva
- Kilátás:nincs megadva
- Internet:nincs megadva
- Akadálymentesített:nincs megadva
- Energiatanúsítvány:nincs megadva
- Villany:nincs megadva
- Víz:nincs megadva
- Gáz:nincs megadva
- Csatorna:nincs megadva
- Üzenetküldés
- Hívás


Hitel ajánlat
Ingatlan hirdetés leírása
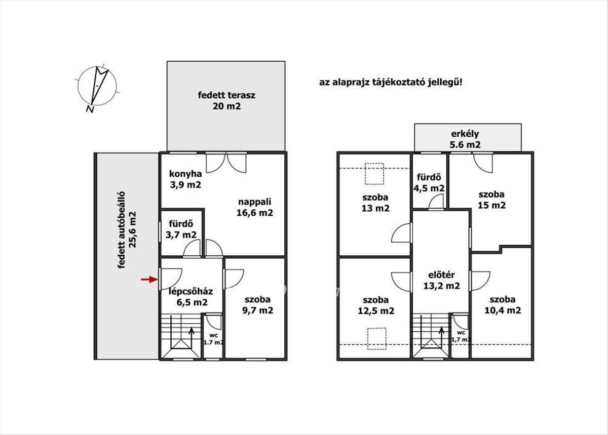
A Balaton déli partján, Zamárdiban 136 m2-es 4 hálószobás ház ...
A Balaton déli partján, Zamárdiban 136 m2-es 4 hálószobás ház eladó. a város zöldövezeti részén, 444 m2-en telken fekvő kétszintes ház földszinti helyiségei: amerikai konyhás nappali, fedett terasz, háló, fürdő, wc, az emeleten 3 háló, fürdőszoba, wc és egy jelenleg tároló/gardrób szobaként funkcionáló helyiség, amiből igény esetén még egy szoba kialakítható. Az emeleten egy szoba erkélyre nyílik, a földszinten az amerikai konyhás nappali pedig terasz kapcsolatos. a szomszédos egységeket dupla 38 cm-es Porotherm tégla választja el, a két egység között légréssel, így az ingatlan teljesen szeparált. a ház 2005-ben épült, azóta többszöri felújításon esett át, kívül-belül jó állapotú. Automata kapunyitás és riasztó vezetékes előkészítése megtörtént. Fűtéséről cirkó gázkazán gondoskodik, radiátoros hőleadással, az emeleten hűtő-fűtő klíma biztosítja a kellemes hőmérsékletet. a lakótér alapterülete 109 m2, a terasz, erkély, autóbeálló 50%-kal került beszámításra. Parkolásra az épülethez csatlakozó garázsban, az első és hátsó kertrészekben nyitott beállón, és az utcán ingyenesen van lehetőség.Családi házas, nyugodt környék. a közelben iskola, orvosi rendelő, élelmiszerbolt. a Balaton- parttól 1, 5 km távolságra található az ingatlan.
Lakóingatlan vásárláshoz az OTP bank pénzügyi termékeivel hitel, CSOK ügyintézésben vevőinknek segítséget adunk! FIX 3% lakáshitelre megvehető

