- >>
- eladó ingatlanok
- >>
- eladó vendéglátási ingatlan
- >>
- eladó vendéglátási ingatlan Bátaszék
- >>
Eladó vendéglátási ingatlan - Bátaszék
| | |||
| Kedvencnek jelölöm | Elküldöm emailben | Megosztás | Szavazás |
| Kedvezményes lakáshitel ajánlatok | |||
| 85 000 000 HUF | |||
Ingatlan adatai
- Eladó vagy kiadó:Eladó
- Település:Bátaszék
- Kategória:Vendéglátás
- Alkategória:Étterem, vendéglő
- Alapterület:326 m2
- Telekterület:2917 m2
- Csere is:Nem
- Hirdető:Cég
- Élő videón megtekinthető:Nem
- Építés éve:1980
- Hány szintes az ingatlan:nincs megadva
- Hányadik emeleti:nincs megadva
- Parkolási lehetőség:nincs megadva
- Bútorozottság:nincs megadva
- Fényviszony:nincs megadva
- Tájolás:nincs megadva
- Internet:nincs megadva
- Akadálymentesített:nincs megadva
- Energiatanúsítvány:nincs megadva
- Üzenetküldés
- Hívás

Dániel Lilla Anna
Mondd meg a hirdetőnek, hogy a megveszLAK-on találtad a hirdetést.

Hitel ajánlat
Ingatlan hirdetés leírása
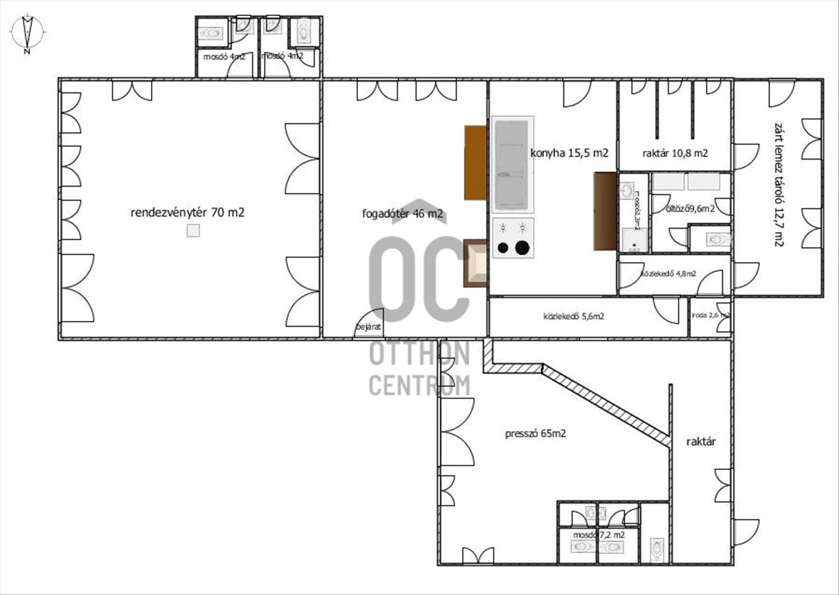
Az ingatlan jelenleg három funkcióra van kialakítva. Utoljára ...
Az ingatlan jelenleg három funkcióra van kialakítva.Utoljára mint motel, rendezvényház konyhával, és italmérés működött.
Az összese 326 négyzetméteres épület 2917 m2-es telken fekszik.
A telken elegendő hely áll rendelkezésre a parkoláshoz is.
Az épület tégla falazatú az italmérő és kiszolgáló helyiségei kivételével. Ez, utólagos hozzáépítés, mely könnyűszerkezetes.
Fűtése központi gázfűtés, de a kandalló is működik.
A tetőn napelemek lettek elhelyezve, amik jelentősen csökkentik az épület fenntartási költségét.
A nyílászárók egy része fa, egy része hőszigetelt műanyag.
A konyha alkalmas nagyobb társasági rendezvényeket- akár lakodalmakat is-kiszolgálni.
Az emeleten 4 apartman és 4 szoba található.
Az ingatlan egy alapos takarítást követően akár használatba is vehető.
A bútorzat a vételár részét képezheti.
Kedves Ügyfelünk, az ingatlanról videót is készítettünk. Ha ezt a hirdetést az Otthon Centrum weboldalán nézi, akkor a videóra a képek után tud kattintani. Ha egy másik weboldalon találta ezt a hirdetést, kérem nyissa meg az Otthon Centrum weboldalát, kattintson a „Regisztrációs szám keresése” menüpontra, és írja be ezt a regisztrációs számot a keresőbe: uz017788. Itt meg tudja tekinteni az ingatlanról készült videót. Vagy írjon nekem, és szívesen elküldöm a videót.
Ha lát benne fantáziát, ne habozzon!
Hívjon és megmutatom!
Ha a vásárláshoz hitelre lenne szüksége, kollégánk díjmentes, bankfüggetlen szolgáltatással, személyre szabott ajánlatokkal és teljes körű ügyintézéssel áll rendelkezésére!
Üzleti ingatlan motel rendezvényház vendéglátás kocsma nagy telek két szintes tégla napelem uz017788 Hitel.hu - Hasonlítsa össze a bankok lakáshitel ajánlatait

