- >>
- eladó ingatlanok
- >>
- eladó vendéglátási ingatlan
- >>
- eladó vendéglátási ingatlan Győr
- >>
Eladó vendéglátási ingatlan - Győr
| | |||
| Kedvencnek jelölöm | Elküldöm emailben | Megosztás | Szavazás |
| Kedvezményes lakáshitel ajánlatok | |||
| 650 000 000 HUF | |||
Ingatlan adatai
- Eladó vagy kiadó:Eladó
- Település:Győr
- Kategória:Vendéglátás
- Alkategória:Étterem, vendéglő
- Alapterület:nincs megadva
- Telekterület:nincs megadva
- Csere is:Nem
- Hirdető:Cég
- Élő videón megtekinthető:Nem
- Hány szintes az ingatlan:nincs megadva
- Hányadik emeleti:nincs megadva
- Parkolási lehetőség:nincs megadva
- Bútorozottság:nincs megadva
- Fényviszony:nincs megadva
- Tájolás:nincs megadva
- Internet:nincs megadva
- Akadálymentesített:nincs megadva
- Energiatanúsítvány:nincs megadva
- Üzenetküldés
- Hívás

Hitel ajánlat
Ingatlan hirdetés leírása
Győr Belvárosában több üzleti tevékenységre alkalmas épület eladó
Szeretne egy patinás épületben exkluzív éttermet, cukrászdát, üzletközpontot vagy magánklinikát kialakítani? Nézze meg ezt az ingatlant! Akár több funkcióval is elláthatja ezt az épületet.Győr Belvárosának legforgalmasabb részén eladó egy patinás épület, amely számtalan hasznosítási lehetőséggel bír.
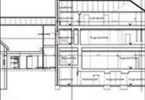
A 3 helyrajzi számon szereplő, 3 utcáról is megközelíthető, sok hatalmas kirakattal rendelkező sarok épületben csak a fantáziája szab határt, hogy milyen tevékenységeket tud elhelyezni egymás mellett.
A 4 szintes ház hasznos alapterülete összesen 1136 m2.
- a pince szinten egy teljesen felújított, berendezett, nyitásra kész borozó várja az új tulajdonost.
- a földszinten egy tágas, színvonalas étterem és cukrászda alakítható ki, melyhez tartozik egy teljesen felújított berendezésekkel felszerelt meleg konyha, hűtőkamrák, vizes blokk, raktárak.
Itt található egy üveg tetejű átrium is, fantasztikus mozaikképekkel kirakva. Az épület egy részén kialakíthatóak a dolgozói öltözők, vizesblokkok.
- Az emeleten szintén található egy berendezett konyha, és kiszolgálótér.
- a tetőtérben jelenleg egy kompletten felszerelt cukrászat, és irodák találhatóak.
Az épület teljes felújítása megtörtént az elmúlt években. Felújításra került a tető szerkezet.
A homlokzat nagyon szép állapotú.
A villamos hálózat, légtechnika, gépészet is megújult. Kialakításra került egy étel- és egy teherlift is.
A belső falak egy része még az elképzeléseknek megfelelően módosítható.
Az ingatlanban padlófűtés található, melyet 2 gázkazán üzemeltet.
Az ingatlanban kialakítható egy rendkívül elegáns 2 szintes étterem, cukrászda, söröző, kávéház, delikatesz bolt a hozzá tartozó konyhákkal, kiszolgáló helyiségekkel.
Az épület alkalmas egy szépészeti komplexum kialakítására, akár plasztikai sebészettel együtt.
Ha egy komplex magánklinikában gondolkodik, akkor is kitűnő választás.
Bemutatóterem, művészeti galéria, üzletház? Bármelyik megvalósítható!
A fenti tevékenységekből több is megvalósítható akár egyszerre is.
Amennyiben étterem, cukrászatban gondolkodik rendelkezésére áll egy igényes alapossággal kidolgozott, részletes látványterv.
Az ingatlan tehermentes és azonnal birtokba vehető.
Amennyiben vállalkozásához hitelre lenne szüksége, felkészült kollégám megkeresi Önnek a legjobb megoldást.
Pályázati lehetőségekről is tudunk beszélni.
Amennyiben felkeltettem érdeklődését, kérem forduljon hozzám bizalommal!
A hirdetésben feltüntetett adatok Megbízóim tájékoztatása által rendelkezésemre bocsátott információkon alapulnak.
Illésné Edvi Zsuzsanna
Etikus Ingatlanos (hivatkozási szám: m98400) Hitel.hu - Hasonlítsa össze a bankok lakáshitel ajánlatait

