Eladó vendéglátási ingatlan - Mezőkovácsháza
- INGYENES HIRDETÉS FELADÁS
Ingatlan adatai
- Eladó vagy kiadó:Eladó
- Település:Mezőkovácsháza
- Kategória:Vendéglátás
- Alkategória:Étterem, vendéglő
- Alapterület:nincs megadva
- Telekterület:nincs megadva
- Csere is:Nem
- Hirdető:Cég
- Élő videón megtekinthető:Nem
- Szobaszám:nincs megadva
- Hány szintes az ingatlan:nincs megadva
- Hányadik emeleti:nincs megadva
- Parkolási lehetőség:nincs megadva
- Bútorozottság:nincs megadva
- Fényviszony:nincs megadva
- Tájolás:nincs megadva
- Kilátás:nincs megadva
- Internet:nincs megadva
- Klíma:nincs megadva
- Akadálymentesített:nincs megadva
- Energiatanúsítvány:nincs megadva
- Kapcsolatfelvétel

Pócsik Attila
+36-(20)-405-4500
Mondd meg a hirdetőnek, hogy a megveszLAK-on találtad a hirdetést.
Referencia szám: M309192
Hitel ajánlatok
Ingatlan hirdetés leírása
Eladó Söröző, Mezőkovácsháza
*** Vállalkozók figyelem *** Szeretne egy jól működő vállalkozáshoz jó helyet találni?
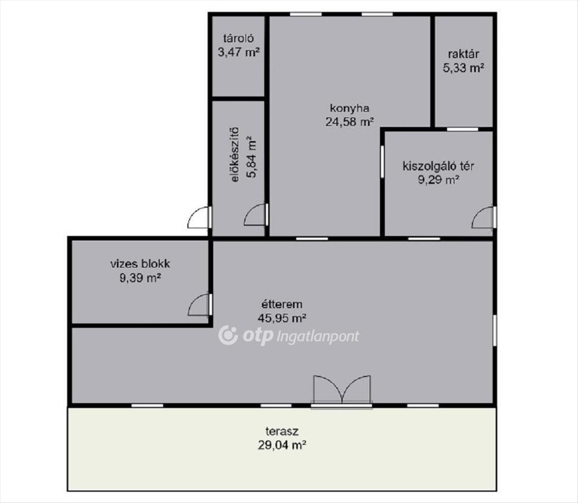
Mezőkovácsházán kedvező ár/érték arányú vendéglő eladó a strandnál. a 104 m2-es ingatlanban 50 fő, a teraszon további 12 fő kényelmesen kiszolgálható. a konyha felújítandó, az alapok adottak, van gáz, ipari áram, pára elszívó stb.
A fürdő gyógyvizének hőmérséklete a környéken egyedülállóan magas, 72 fokos. a fürdőt tápláló termálvíz magas ásványianyag tartalmú, nátrium-hidrogénkarbonátos, kloridos, jodidos, fluoridos, szulfidos ásványvíznek minősül, magas metabórsav és metakovasav tartalommal. Főként mozgásszervi betegségek, nőgyógyászati panaszok esetén javasolt, valamint kiváló stresszoldó hatása is van.
A városi rendezvények a vendéglő melletti területen kerülnek megrendezésre, alkalmi rendezvények lebonyolítására kiváló. Az ingatlan kiváló hosszútávú befektetési lehetőség.
Keressen bizalommal, ne hagyja ki ezt a lehetőséget. Az OTP Ingatlanpont a banki háttérrel eladóink, és vevőink igényeit teljeskörűen ki tudja szolgálni, az eladástól a vevői finanszírozásig. Hitel igénylés esetén akár egyedi kamatkedvezménnyel, jogosultság esetén az állami támogatásokhoz kapcsolódó felvilágosítással, teljeskörű pénzügyi tanácsadással és ügyintézéssel állunk ügyfeleink rendelkezésére.
Referencia szám: m309192-ml Hitel.hu - Hasonlítsa össze a bankok lakáshitel ajánlatait
Tetszett ez az eladó Mezőkovácsházai vendéglátási ingatlan? Hívd fel a hirdetőt most, és tudj meg mindent erről az eladó vendéglátási ingatlanról! Ha gondolod nézelődj tovább az eladó vendéglátási ingatlan Mezőkovácsháza oldal hirdetései között.
Az eladó vendéglátási ingatlanok menüpontban további hirdetések között is böngészhetsz. Ha van kedved, akkor böngészhetsz a Pócsik Attila összes hirdetése között, vagy akár a/az OTPip Csongrád Fő utca 54 - OTP Ingatlanpont Iroda összes hirdetése között is.

