Eladó újszerű állapotú vendéglátási ingatlan - Nagykovácsi
- INGYENES HIRDETÉS FELADÁS
Ingatlan adatai
- Eladó vagy kiadó:Eladó
- Település:Nagykovácsi
- Kategória:Vendéglátás
- Alkategória:Étterem, vendéglő
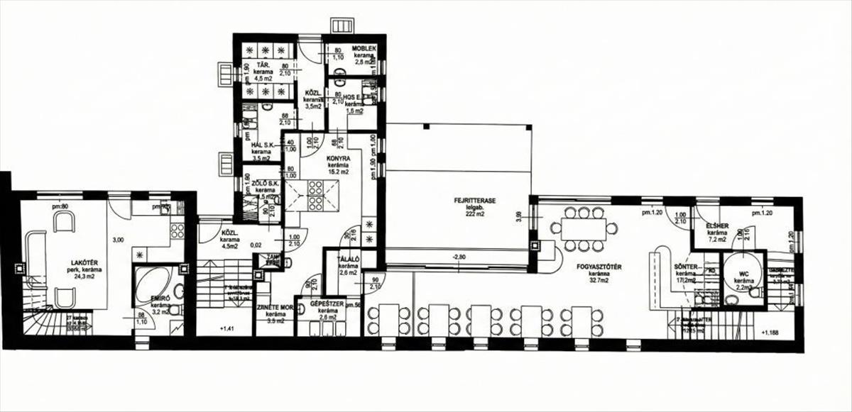
- Alapterület:337 m2
- Telekterület:1567 m2
- Csere is:Nem
- Hirdető:Cég
- Élő videón megtekinthető:Nem
- Építés éve:2007
- Szobaszám:nincs megadva
- Hány szintes az ingatlan:3 szintes
- Hányadik emeleti:nincs megadva
- Parkolási lehetőség:Beállóban
- Bútorozottság:nincs megadva
- Fényviszony:nincs megadva
- Tájolás:nincs megadva
- Kilátás:nincs megadva
- Internet:nincs megadva
- Klíma:nincs megadva
- Akadálymentesített:nincs megadva
- Energiatanúsítvány:nincs megadva
- Kapcsolatfelvétel

Szarka Pál
+36-(70)-658-7471
Mondd meg a hirdetőnek, hogy a megveszLAK-on találtad a hirdetést.
Hitel ajánlatok
Ingatlan hirdetés leírása
Gasztró központ nagykovácsi szívében!
Befektetés a hangulatba – Eladó a patinás stübli vendéglő Nagykovácsi szívében!
A Stübli Vendéglő nem csupán egy étterem, hanem egy kész hangulat, ahol a rusztikus elegancia és a családias vendégszeretet találkozik. Nagykovácsi Budapest környékének egyik legkeresettebb, prémium célpontja, így az elhelyezkedés önm agában is hatalmas érték.
Nagykovácsi központjában, a templom szomszédságában eladásra kínáljuk ezt a minden részletében igényesen kialakított, 3 szinten összesen 337 m² alapterületű éttermet. Az ingatlan nem csupán egy épület: három különböző világ találkozik benne, ami számtalan üzleti lehetőséget rejt magában.
HÁROM szint, három STÍLUS:
A földszint: világos, barátságos, klasszikus polgári vendéglő hangulat piros kockás abrosszal, elegáns bárpulttal – ideális napi forgalomhoz és családi ebédekhez.
AZ elegáns tetőtér: meghitt, faborítású, melegséget sugárzó helyszín. Kiválóan alkalmas romantikus vacsorákhoz vagy exkluzív rendezvényekhez.
A rusztikus pince: látványos téglafalak, hosszú asztalok, igazi borpince-hangulat. Borvacsorák, baráti társaságok és zártkörű rendezvények tökéletes helyszíne.
ÁRNYAS keerthelyiség: a közel 300 m²-es kert a nyári szezon motorja. a hatalmas napernyők alatt a vendégek élvezhetik a friss levegőt és a templomkert közelségének nyugalmát.
MŰKÖDŐ üzletmenet: Az étterem jelenleg is üzemel, bevezetett, stabil vendégkörrel rendelkezik. Önnek csak át kell vennie a kulcsokat!
KIVÁLÓ lokáció: Nagykovácsi központi részén, frekventált, mégis hangulatos helyen található, ahol a parkolás és a megközelíthetőség is biztosított.
Ez az ingatlan tökéletes választás azoknak, akik értékelik a hagyományt, de látják benne a modern vendéglátás lehetőségét is. a három szint lehetővé teszi, hogy egyszerre több típusú rendezvényt bonyolítson le.
EGYEDÜLÁLLÓ bővítési LEHETŐSÉG!
Az ingatlanegyüttes részeként – külön megállapodás keretében – megvásárolható a közvetlenül szomszédos, nagy múltú és népszerű Lilipop Cukrászda is.
Miért érdemes egyben gondolkodnia?
Szinergia: a két egység együtt lefedi a teljes vendéglátói palettát a reggeli kávétól és süteménytől az elegáns vacsorákig.
Domináns piaci jelenlét: Nagykovácsi legfrekventáltabb pontján egy összefüggő, nagy területű gasztronómiai központot alakíthat ki.
Rendezvények: a cukrászda és az étterem összekapcsolásával még nagyobb létszámú esküvők, céges események vagy kulturális programok helyszínévé válhat az ingatlan.
Ez a két ingatlan együtt nem csupán egy üzlet, hanem Nagykovácsi társadalmi életének meghatározó központja. Használja ki a lehetőséget, és vigye tovább a Stübli és a Lilipop örökségét egyetlen professzionális portfólióban!
További információkért és megtekintési időpontért hívjon bizalommal, hétvégén is!
Szívügyünk az otthonod!
Egy ingatlannak mérete és ára van. Az otthon igazi értéke viszont felbecsülhetetlen - ezért az értékbecsléstől a birtokbaadásig végigkísérünk az ingatlan adásvétel folyamatán, hogy anyagi, jogi és érzelmi biztonságban legyél.
Szarka Pál
0670/658-7471
szarka. Pal@gacsohaz. Hu
Gacsó Ház Ingatlanközvetítő Kft.
INGATLAN HITEL BIZTOSÍTÁS
Irodáink:
1163 Budapest, Veres Péter út 39.
2440 Százhalombatta, Erkel Ferenc körút 1. (Üzletsor) Hitel.hu - Hasonlítsa össze a bankok lakáshitel ajánlatait
Tetszett ez az eladó Nagykovácsi újszerű állapotú vendéglátási ingatlan? Hívd fel a hirdetőt most, és tudj meg mindent erről az eladó vendéglátási ingatlanról! Ha gondolod nézelődj tovább az eladó vendéglátási ingatlan Nagykovácsi oldal hirdetései között.
Az eladó vendéglátási ingatlanok menüpontban további hirdetések között is böngészhetsz. Ha van kedved, akkor böngészhetsz a Szarka Pál összes hirdetése között, vagy akár a/az Gacsó Ház Kft. összes hirdetése között is.

