- >>
- eladó ingatlanok
- >>
- eladó vendéglátási ingatlan
- >>
- eladó vendéglátási ingatlan Szentgyörgyvár
- >>
Eladó vendéglátási ingatlan - Szentgyörgyvár
| | |||
| Kedvencnek jelölöm | Elküldöm emailben | Megosztás | Szavazás |
| Kedvezményes lakáshitel ajánlatok | |||
| 21 000 000 HUF | |||
Ingatlan adatai
- Eladó vagy kiadó:Eladó
- Település:Szentgyörgyvár
- Kategória:Vendéglátás
- Alkategória:Étterem, vendéglő
- Alapterület:nincs megadva
- Telekterület:nincs megadva
- Csere is:Nem
- Hirdető:Cég
- Élő videón megtekinthető:Nem
- Hány szintes az ingatlan:nincs megadva
- Hányadik emeleti:nincs megadva
- Parkolási lehetőség:nincs megadva
- Bútorozottság:nincs megadva
- Fényviszony:nincs megadva
- Tájolás:nincs megadva
- Internet:nincs megadva
- Akadálymentesített:nincs megadva
- Energiatanúsítvány:nincs megadva
- Üzenetküldés
- Hívás

Bonczföldi Bianka
Mondd meg a hirdetőnek, hogy a megveszLAK-on találtad a hirdetést.

Hitel ajánlat
Ingatlan hirdetés leírása
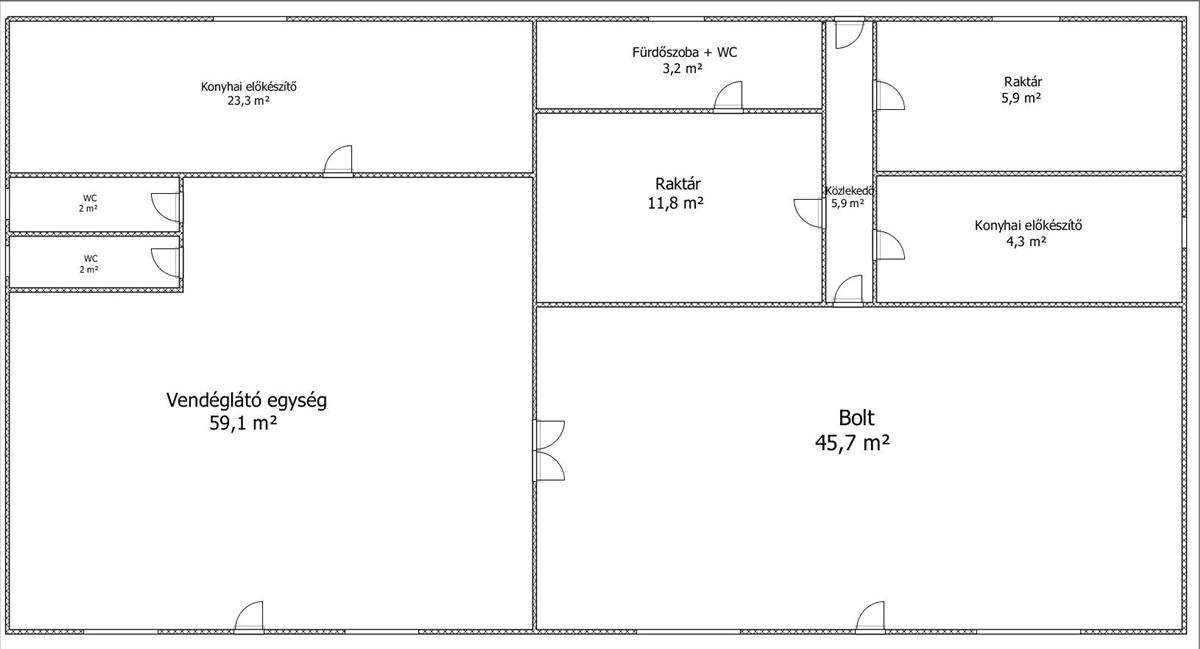
Eladó vendéglátóipari egység Szentgyörgyváron! Kiváló befektetés!
A lido home Keszthely eladásra kínálja a 163603279-es szentgyörgyvári vendéglátóipari EGYSÉGÉT.A lido home Keszthely által kínált szentgyörgyvári vendéglátóipari egység jellemzői:
- a vendéglátóegység Szentgyörgyvár központjában található
- az ingatlan 2016-ig kisboltként és kávézóként üzemelt, jelenleg azonban nincs a településen élelmiszerbolt és vendéglátó egység sem ezáltal kiváló befektetés
- a telek területe 200 m², a ház 163 m², melyhez tartozik még 3 melléképület
- az egyszintes, tégla építésű ingatlanhoz egy külső terasz is tartozik
- az ingatlan vendéglátó egységnek kialakított részén: egy 59 m²-es kávézó, egy tágas konyha, illetve konyhai előkészítő és 2 wc lett kialakítva
- a kisboltként működő részen egy 45, 7 m²-es bolt, konyhai előkészítő és 2 raktár van
- összközműves, fűtése kályhával megoldott
- jó állapotú pala teteje van
- az épületben fa nyílászárók vannak, melyek biztonsági ráccsal felszereltek
Szentgyörgyvár Hévíztől 5 km-re, a Balatontól 13 km-re a Hévíz- Balaton Repülőtértől pedig 6 km-re található csendes, nyugodt település.
Amennyiben a 163603279-es számú a lido home által kínált szentgyörgyvári vendéglátó egység, vagy bármely a kínálatunkban található ingatlan felkeltette érdeklődését, hívjon bizalommal a megadott telefonszámon.
Amennyiben ingatlant keres díjmentes keresőszolgálattal állok rendelkezésére.
Vásárolna, de nincs rá keret? Kollégám díjmentes, bank semleges hitelügyintézéssel áll rendelkezésére.
LIDO home - Ingatlanok egy életen át! Hitel.hu - Hasonlítsa össze a bankok lakáshitel ajánlatait

