- >>
- eladó ingatlanok
- >>
- eladó vendéglátási ingatlan
- >>
- eladó vendéglátási ingatlan Szilvásvárad
- >>
Eladó átlagos állapotú vendéglátási ingatlan - Szilvásvárad
| | |||
| Kedvencnek jelölöm | Elküldöm emailben | Megosztás | Szavazás |
| Kedvezményes lakáshitel ajánlatok | |||
| 150 000 000 HUF | |||
Ingatlan adatai
- Eladó vagy kiadó:Eladó
- Település:Szilvásvárad
- Kategória:Vendéglátás
- Alkategória:Étterem, vendéglő
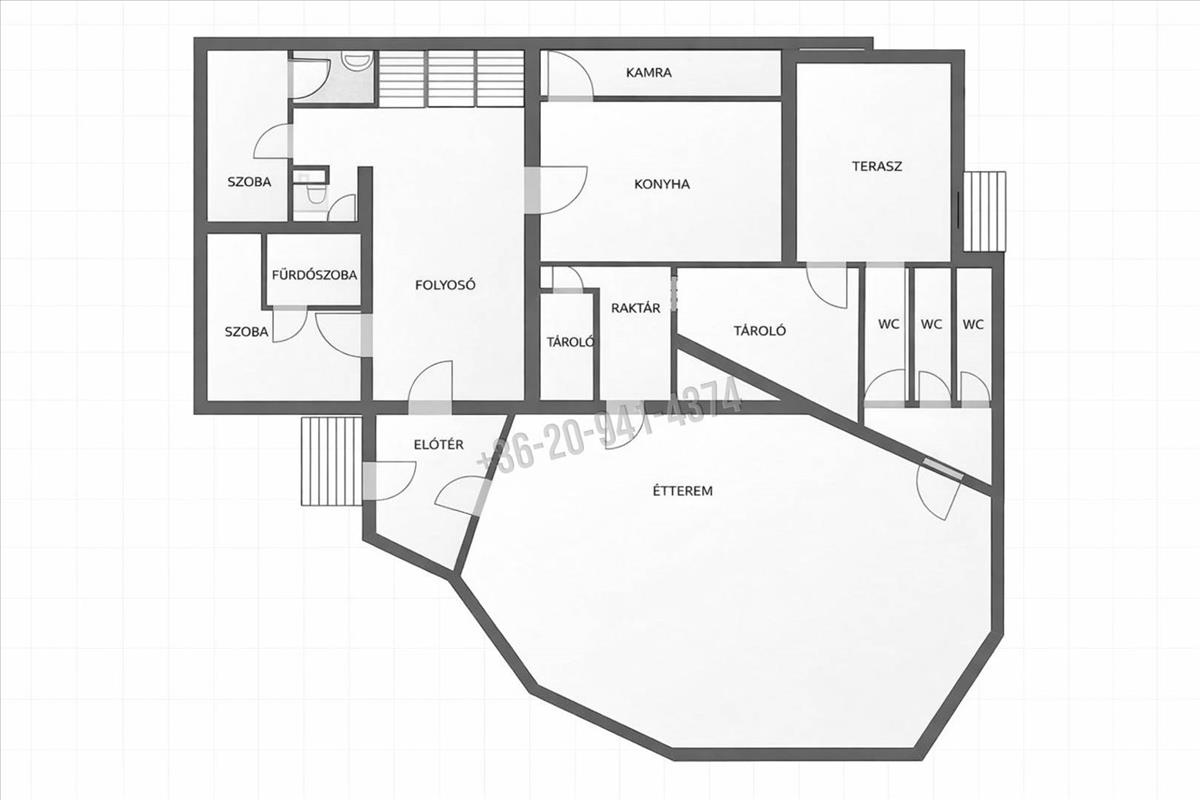
- Alapterület:510 m2
- Telekterület:824 m2
- Csere is:Nem
- Hirdető:Cég
- Élő videón megtekinthető:Nem
- Építés éve:1990
- Hány szintes az ingatlan:nincs megadva
- Hányadik emeleti:2
- Parkolási lehetőség:Udvaron
- Bútorozottság:nincs megadva
- Fényviszony:nincs megadva
- Tájolás:nincs megadva
- Internet:nincs megadva
- Akadálymentesített:nincs megadva
- Energiatanúsítvány:nincs megadva
- Üzenetküldés
- Hívás


Hitel ajánlat
Ingatlan hirdetés leírása
Eladó Vendéglátóhely, Szilvásvárad, 510nm, 150000000 Ft
Szilvásvárad mesés völgyében, ahol a csend és a természet ölelése mindent átjár, egy különleges 510nm-es panzió várja leendő tulajdonosát.Egy hely, ahol a reggeli fény aranyszínűre festi a hegyeket, ahol az erdei levegő friss illata kíséri a vendégeket, és ahol minden pillanat új élménnyé válik.
A kétszintes, hangulatos tégla épület tágas, kényelmes, saját fürdőszobás szobákat kínál — összesen 10-et — mindet otthonos, barátságos atmoszférával. a hatalmas tetőtéri terasz lélegzetelállító panorámát ad a környező hegyekre: napfelkelte közös kávéval, naplemente pohár borral kézben, romantikus beszélgetések a csillagok alatt… ez itt mind a mindennapok része.
A panzió földszintjén tágas közösségi terek, saját étterem és bár, valamint szauna biztosítja a kényelmet és a kikapcsolódást. a nagy étkező- és rendezvénytér tökéletesen alkalmas céges események, tréningek, csapatépítők megtartására, míg a különleges famennyezetes, óriási fedett terasz a baráti összejövetelek, kisebb rendezvények kedvenc helyszíne lehet.
A zöld kertben 10 autó számára biztosított parkolás, a környék pedig végtelen túra- és kirándulási lehetőséget kínál — a Szalajka-völgy, Fátyol-vízesés, erdei kisvasút és a környék csodái mind csupán pár perc. a közelben, pár perces gyalogos járásra rendezik minden évben a nemzeti vágtát a Lipicai Lovasközpontban, ami fantasztikus élményeket kínál a lovas sport és lovak kedvelőinek.
Ez az ingatlan több, mint egy panzió: egy hely, ahova visszavágynak a vendégek, és ahol minden nap új történettel kezdődik.
Befektetőknek, vállalkozóknak, vendéglátás iránt lelkes érdeklődőknek kivételes lehetőség — hiszen egy gondos vállalkozó kezében általad újratervezve ismét működő, jól felszerelt, szerethető és hatalmas potenciállal rendelkező hely várja új gazdáját.
Ha valódi hegyvidéki romantikát, stabil vállalkozási alapot és egy jövőálló befektetést keresel, itt megtaláltad. Hitel.hu - Hasonlítsa össze a bankok lakáshitel ajánlatait

