- >>
- eladó ingatlanok
- >>
- eladó vendéglátási ingatlan
- >>
- eladó vendéglátási ingatlan Vonyarcvashegy
- >>
Eladó vendéglátási ingatlan - Vonyarcvashegy
| | |||
| Kedvencnek jelölöm | Elküldöm emailben | Megosztás | Szavazás |
| Kedvezményes lakáshitel ajánlatok | |||
| 110 000 000 HUF | |||
Ingatlan adatai
- Eladó vagy kiadó:Eladó
- Település:Vonyarcvashegy
- Kategória:Vendéglátás
- Alkategória:Étterem, vendéglő
- Alapterület:nincs megadva
- Telekterület:nincs megadva
- Csere is:Nem
- Hirdető:Cég
- Élő videón megtekinthető:Nem
- Hány szintes az ingatlan:nincs megadva
- Hányadik emeleti:nincs megadva
- Parkolási lehetőség:nincs megadva
- Bútorozottság:nincs megadva
- Fényviszony:nincs megadva
- Tájolás:nincs megadva
- Internet:nincs megadva
- Akadálymentesített:nincs megadva
- Energiatanúsítvány:nincs megadva
- Üzenetküldés
- Hívás


Hitel ajánlat
Ingatlan hirdetés leírása
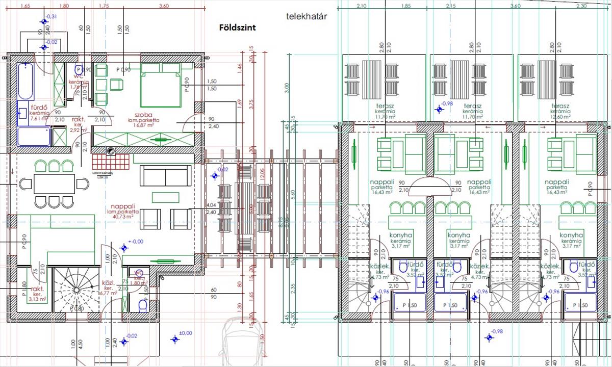
Befektető, beruházók! - két egységből álló: üdülőépület és apa...
A Gold Balaton Home ingatlaniroda megvételre kínálja a 183100227-es sorszámú, építés alatt álló vonyarcvashegyi „üdülőépület és APARTMANHÁZAT"Kizárólag a Gold Balaton Home kínálatában!
A turizmus /nyaraltatás/ kiszolgálására épülő, két egységből álló épületegyüttes a település déli oldalán, jól megközelíthető helyen, 1500 méterre található a méltán népszerű Lido strandtól.
Műszaki paraméterek:
- 2019-ben elkezdett építés, porotherm 30-as falazóblokkból
- fehér színű, fokozott hőszigetelésű, műanyag nyílászárók 2 rétegű üvegezéssel
- tervezet fűtése: gáz-cirkó kazán, radiátoros hőleadással
- az épületek fedése, (jelenleg az apartmanház) piros színű betoncseréppel
- üdülőépület 40%-os készültségi fokban, az apartmanház szerkezetkész állapotban
- mindkét épület, külön közüzemi mérőórákkal (víz, gáz, villany)
Az ingatlan egyéb jellemzői:
- körbe határolt építési telek
- tervezett gépkocsi beállók, a három apartmanból álló, külön bejáratú apartmanház déli oldalán
- teljes terv és műszaki dokumentáció a vételárban
- megnyitott e napló (lejárt)
Az ingatlan ára a jelenlegi készültségi fokra értendő és tartalmazza a több millió forint értékű építőanyagot, mely az épületben található. Amennyiben hirdetésem felkeltette érdeklődését, kérem keressen bizalommal!
Irodánk szolgáltatásai igény esetén: ügyvéd, energetikai tanúsítvány, hitelügyintézés, értékbecslés, statikus, földmérő, belsőépítész
Biztonság, szakértelem - gold Balaton home - „Élj ott, ahol mások nyaralnak” Hitel.hu - Hasonlítsa össze a bankok lakáshitel ajánlatait

