Eladó fejlesztési terület - Diósd
- INGYENES HIRDETÉS FELADÁS
Ingatlan adatai
- Eladó vagy kiadó:Eladó
- Település:Diósd
- Kategória:Fejlesztési terület
- Alkategória:Lakóterület
- Alapterület:nincs megadva
- Telekterület:1509 m2
- Csere is:Nem
- Hirdető:Cég
- Élő videón megtekinthető:Nem
- Villany:nincs megadva
- Víz:nincs megadva
- Gáz:nincs megadva
- Csatorna:nincs megadva
- Kapcsolatfelvétel

Fábrik-Csendes Zsuzsanna
+36-(30)-656-4440
Mondd meg a hirdetőnek, hogy a megveszLAK-on találtad a hirdetést.
Referencia szám: M318830
Hitel ajánlatok
Ingatlan hirdetés leírása
Eladó Ipari terület, Diósd
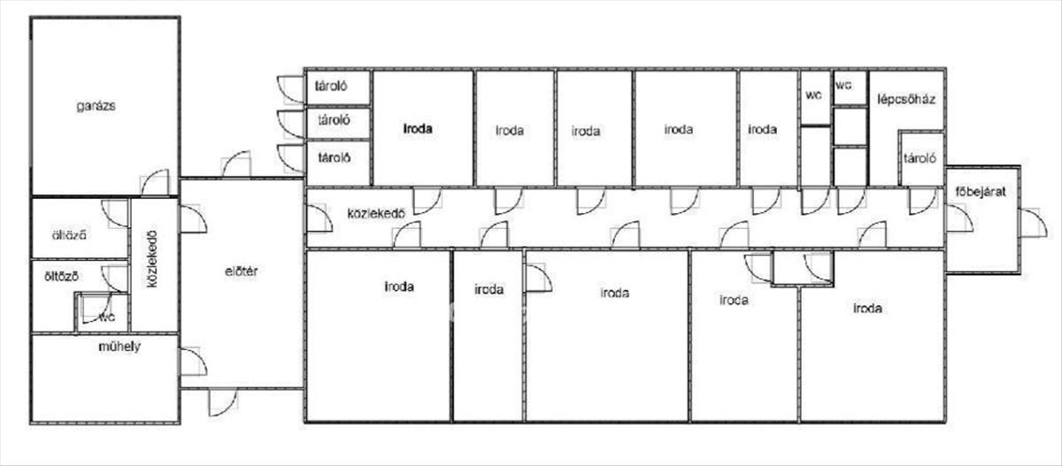
*** Csak az OTP Ingatlanpont kínálatában! *** Diósdon a 7-es főúttól pár percre, csendes, családias környezetben egy 1509 m2-es sík, körbekerített telken, 541 m2-es 2002. Évi építésű, újszerű; családi házjellegű, belső két szintes épület eladó!
Az ingatlan jó műszaki, esztétikai állapotú. Az épület különálló mérőórákkal felszerelt. Az épület hátsó részében egy 28 m2-es fűtött garázs áll rendelkezésre, valamint az épület mögött a telken, 6-8 helyes parkoló helyezkedik el, továbbá a telek előtt az utcán 3 autó is meg tud állni. Két fő épületrészből álló ingatlant kínálunk megvételre az m0 autóút közelségében, mégis csendes helyen. 450 m2-es kétszintes középfolyosós főépületből és 91 m2-es szociális és garázs blokkból áll. 2 Kazán látja el az ingatlan fűtését. 3X80 a áram van bekötve.
Két éve nincs használatban, laborként üzemelt. Az ingatlan könnyen más funkcióra is átalakítható, jól hasznosítható. Az ingatlan jelenleg üres. Ár 240. 000. 000. -Ft+áfa.
Az OTP Bankcsoport teljes körű ügyintézéssel áll az eladók és a vevők rendelkezésére! a kínálatunkból választott ingatlan finanszírozásához kedvezményes hitel konstrukciókat kínálunk. Legújabb szolgáltatásként ajánlom minden kedves ügyfelem részére az OTP Bank által közvetített Babaváró, csok, vagy egyéb kölcsönök intézését. Az adásvételi szerződés megkötéséhez igény szerint megbízható ügyvédi közreműködést biztosítunk, és segítséget nyújtunk az adásvételhez kapcsolódó ügyek intézéséhez. Akár hétvégén is hívható vagyok! Amennyiben igényli, kérem küldjön sms-t és szívesen visszahívom!
Referencia szám: m318830-ml Hitel.hu - Hasonlítsa össze a bankok lakáshitel ajánlatait
Tetszett ez az eladó Diósdi fejlesztési terület? Hívd fel a hirdetőt most, és tudj meg mindent erről az eladó fejlesztési területről! Ha gondolod nézelődj tovább az eladó fejleszttési terület Diósd oldal hirdetései között.
Az eladó fejlesztési területek menüpontban további hirdetések között is böngészhetsz. Ha van kedved, akkor böngészhetsz a Fábrik-Csendes Zsuzsanna összes hirdetése között, vagy akár a/az OTPip Szentes Petőfi utca 12 - OTP Ingatlanpont Iroda összes hirdetése között is.

