Eladó fejlesztési terület - Szentes
- INGYENES HIRDETÉS FELADÁS
Ingatlan adatai
- Eladó vagy kiadó:Eladó
- Település:Szentes
- Kategória:Fejlesztési terület
- Alkategória:Lakóterület
- Alapterület:nincs megadva
- Telekterület:5809 m2
- Csere is:Nem
- Hirdető:Cég
- Élő videón megtekinthető:Nem
- Villany:nincs megadva
- Víz:nincs megadva
- Gáz:nincs megadva
- Csatorna:nincs megadva
- Kapcsolatfelvétel

Jószai Olívia
+36-(70)-677-4669
Mondd meg a hirdetőnek, hogy a megveszLAK-on találtad a hirdetést.
Referencia szám: M321010
Hitel ajánlatok
Ingatlan hirdetés leírása
Eladó Ipari terület, Szentes
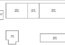
*** Csak az OTP ingatlanpont kínálatában *** Eladó telephely Csongrád-Csanád megyében, Szentesen. a közel 6000 nm -es telken elterülő, több raktárépületből álló, összesen 2024 nm raktárterülettel rendelkező telephely irányára 289 millió Ft. + Áfa. a rendkívül jó adottságokkal rendelkező terület kiválóan alkalmas 1 vagy több vállalkozás működtetésére, gyártás üzemeltetésére, raktározásra. a szabad területeken számtalan jármű parkoltatására van lehetőség. a 66 nm -es irodaépületben 4 irodahelyiség található 1 fürdő- és 2 wc helyiséggel. Ide be van vezetve a gáz, de konvektorok helyett elektromos panelek gondoskodnak a fűtésről, villanybojler a melegvízellátásról. Az 1. Raktárépület fel van osztva 3 különböző méretű raktárra, egyenként 468, 216 és 792 nm -esek. a 2. Raktárépület 224 nm . a 3. Raktárépület 324 nm , fűthető, hőszigetelt elektromos kapukkal van ellátva. a vegyestüzelésű kazánt egy külön épületben helyezték el. Az épületek téglából készültek, fém tetőszerkezettel, a legkisebb raktárépület pedig fa tetőszerkezettel. Van olyan 200 nm nagyságú tetőfelület, ahová napelemes rendszer telepíthető. a hatalmas telephely udvarát közvilágítással látták el, ipari áram van az egész területen. Kamionos rakodási lehetőség adott a telephelyen belül. a telephely Szentes belterületén, autóút mellett, könnyen megközelíthető helyen található. Amennyiben az OTP Ingatlanpont kínálatából választ, számíthat szakmai támogatásunkra a teljes vételi folyamat során az adásvételi szerződés megkötésétől a hitel-ügyintézésen át az ingatlan átadásáig. Ajánlom minden kedves ügyfelem részére az OTP Bank által közvetített Babaváró, CSOK plusz, Otthon Start Hitelprogram vagy egyéb kölcsönök intézését. Az OTP Ingatlanpont kedvezményes pénzügyi konstrukciókkal áll ügyfelei rendelkezésére, és VIP-szolgáltatást nyújt az OTP-hiteltermékek, ügyintézésben. Kedvező hitelajánlatokkal (babaváró hitel, piaci hitel, és szabadfelhasználású hitel) várjuk jelentkezését. Számos konstrukció közül választhatnak. ***VÁLASSZUK ki együtt az önnek legmegfelelőbb ajánlatot! Banki sorban állás nélkül! ***
Referencia szám: m321010-ml Hitel.hu - Hasonlítsa össze a bankok lakáshitel ajánlatait
Tetszett ez az eladó Szentesi fejlesztési terület? Hívd fel a hirdetőt most, és tudj meg mindent erről az eladó fejlesztési területről! Ha gondolod nézelődj tovább az eladó fejleszttési terület Szentes oldal hirdetései között.
Az eladó fejlesztési területek menüpontban további hirdetések között is böngészhetsz. Ha van kedved, akkor böngészhetsz a Jószai Olívia összes hirdetése között, vagy akár a/az OTPip Szentes Petőfi utca 12 - OTP Ingatlanpont Iroda összes hirdetése között is.

