Eladó új építésű garázs - Szeged
- INGYENES HIRDETÉS FELADÁS
Ingatlan adatai
- Feladva:62 napja a megveszLAK-on
- Eladó vagy kiadó:Eladó
- Település:Szeged
- Kategória:Garázs
- Alkategória:Egyéb
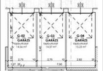
- Alapterület:15 m2
- Csere is:Nem
- Hirdető:Cég
- Élő videón megtekinthető:Nem
- Állapot:Új építésű
- Energiatanúsítvány:nincs megadva
- Villany:nincs megadva
- Víz:nincs megadva
- Gáz:nincs megadva
- Csatorna:nincs megadva
- Kapcsolatfelvétel

Szűcs Zoltán
+36-(70)-602-8706
Mondd meg a hirdetőnek, hogy a megveszLAK-on találtad a hirdetést.
Hitel ajánlatok
Ingatlan hirdetés leírása
Udvari garázsok eladók Szeged belvárosában – Apáca utca Szege...
Udvari garázsok eladók Szeged belvárosában – Apáca utca
Szeged belvárosában, az Apáca utcában, új építésű társasház udvarában kínálunk megvételre önálló garázsokat, amelyek kiváló lehetőséget jelentenek saját használatra vagy befektetési célra.
A belvárosban a parkolás egyre nagyobb kihívás, ezért a garázsok iránt folyamatos és stabil kereslet tapasztalható.
Főbb jellemzők
- udvari elhelyezkedés
- külön helyrajzi egységként kialakítva
- aljzatbetonozott kivitel
- vakolt falak
- villanykiállás (kapcsoló, dugalj, lámpahely)
- billenő garázskapu
Átadás ütemezése
- 2026 év vége: emelt szerkezetkész állapot
- 2027 év eleje: kulcsrakész átadás
Miért jó befektetés?
- Belvárosban korlátozott garázskínálat
- folyamatos bérlői kereslet
- alacsony fenntartási költség
- gyorsan kiadható
- hosszú távon értéknövekedés várható
Kinek ajánljuk?
- Környéken lakóknak (parkolás megoldása)
- lakásvásárlóknak (értéknövelő kiegészítés)
- befektetőknek (könnyen bérbe adható)
Lokáció
- belvárosi elhelyezkedés
- zárt, udvari környezet
- biztonságos parkolás
A belvárosi garázsok egyre ritkábbak, ezért stabil, alacsony kockázatú befektetésnek számítanak, amelyek könnyen hasznosíthatók bérbeadással.
További információért keressen bizalommal! Hitel.hu - Hasonlítsa össze a bankok lakáshitel ajánlatait
Tetszett ez az eladó Szegedi új építésű garázs? Hívd fel a hirdetőt most, és tudj meg mindent erről az eladó garázsról! Ha gondolod nézelődj tovább az eladó garázs Szeged oldal hirdetései között.
Az eladó garázsok menüpontban további hirdetések között is böngészhetsz. Ha van kedved, akkor böngészhetsz a Szűcs Zoltán összes hirdetése között, vagy akár a/az GDN Ingatlanhálózat összes hirdetése között is.

