Eladó új építésű ház - Ajka
- INGYENES HIRDETÉS FELADÁS
Ingatlan adatai
- Eladó vagy kiadó:Eladó
- Település:Ajka
- Kategória:Ház
- Alkategória:Egyéb
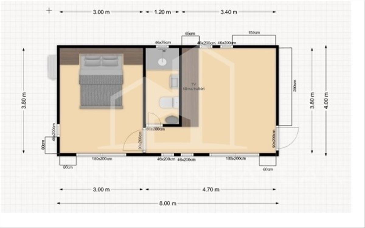
- Alapterület:32 m2
- Telekterület:nincs megadva
- Csere is:Nem
- Hirdető:Cég
- Élő videón megtekinthető:Nem
- Építés éve:2023
- Szobaszám:1
- Állapot:Új építésű
- Hány szintes az ingatlan:Földszintes
- Tetőtér:nincs megadva
- Komfortosság:Összkomfortos
- Pince:nincs megadva
- Parkolási lehetőség:nincs megadva
- Fűtés:Egyéb
- Bútorozottság:nincs megadva
- Fényviszony:nincs megadva
- Tájolás:nincs megadva
- Kilátás:nincs megadva
- Internet:nincs megadva
- Klíma:nincs megadva
- Akadálymentesített:nincs megadva
- Energiatanúsítvány:nincs megadva
- Villany:nincs megadva
- Víz:nincs megadva
- Gáz:nincs megadva
- Csatorna:nincs megadva
- Kapcsolatfelvétel
Szélessy Georgina
+36-(70)-300-3560
Mondd meg a hirdetőnek, hogy a megveszLAK-on találtad a hirdetést.
Hitel ajánlatok
Ingatlan hirdetés leírása
Eladó ház Ajka, Eladó új építésű ház - Ajka
Szeretne új otthonba költözni, pár hónapon BELÜL?
ITT a kihagyhatatlan LEHETŐSÉG!
ELADÁSRA kínálok 32 m2- es, négy évszakos, új MOBILHÁZAT!
A legfontosabb tudnivaló, hogy a mobilház teljes egésze, a kivitelező telephelyén készül, és az kész állapotban kerül LESZÁLLÍTÁSRA.
Nem téveszthető össze, a konténerházzal és a készházzal sem!
ALAPADATOK
- a gyártmány 2 tengelyen és 4 keréken áll.
- a stabil elhelyezkedését 3 +1 pár letalpaló láb biztosítja.
- Az épület falai és tetőzete hőszigetelt szendvicspanelekből épül, melynek szerkezete szinterezéssel festett, acéllemezek közötti (ipn) habkitöltésből áll.
•Külső fal vastagság:100 mm
•Belső fal vastagság:40 mm
•Belső fal színe:RAL 9002 törtfehér
• Külső fal színe: ral 7016 antracit
- tetőfedés: féltetős kivitel, tetőlemez antracit színben.
- Külső nyílászárók : hőszigetelt kivitelben, műanyag tokozással, kívül- belül fehér színben.
- a víz, szennyvíz csatlakozásai a ház alján vannak kiépítve a fürdőszoba alatt.
- Tető csapadék víz elvezetése, a csatorna kifolyó nyílásán történik, csatorna felszereléssel.
- Villany csatlakozás, a ház alján kiépítve: 3 fázis (400v) kialakítással, (szerelő doboz)
- belső világítás 250V-os konnektorok, villanykapcsolók, tv csatlakozó.
INVERTERES, hűtő- fűtő klíma beépítve, beüzemelve, időzítőkapcsolóval
- Nyitásérzékelők az ablakokon (klíma kikapcsolás), kivéve a fürdőszoba ablaka
- telepítés tervezett típusa: alacsony (süllyesztett kivitel)
MOBILHÁZ, HELYISÉGEI:
- Szoba
- Nappali
- Fürdőszoba/ WC
LEHETŐSÉG van egyedi és egyéni ajánlat alapján, mobilházak KIVITELEZÉSÉRE!
A feltöltött képek, ILLUSZTRÁCIÓK.
A feltüntetett irányár az áfát, nem tartalmazza!
A mobilház telepítésével kapcsolatos információkért, keressen BIZALOMMAL!
FONTOS! !
KIVÁLÓ választás minden korosztály SZÁMÁRA!
További információkért forduljon hozzám bizalommal, akár hétvégén is! :)
Kérem hivatkozzon irodai referencia számunkra!
Irodai referenciaszám: 305633 FIX 3% lakáshitelre megvehető
Tetszett ez az eladó Ajkai új építésű 1 szobás ház? Hívd fel a hirdetőt most, és tudj meg mindent erről az eladó házról! Ha gondolod nézelődj tovább az eladó ház Ajka oldal hirdetései között. Ennek az eladó háznak az ára 14880000 Ft és mivel az alapterülete 32 négyzetméter, ezért az átlagos négyzetméterára 465000 HUF/m2.
Az eladó házak menüpontban további hirdetések között is böngészhetsz. Ha van kedved, akkor böngészhetsz a Szélessy Georgina összes hirdetése között, vagy akár a/az Pannon Ingatlan és Hiteliroda összes hirdetése között is.

