Eladó jó állapotú ház Miskolc
| Kedvencbe | Megosztás | Árfigyelő |
| FIX 3% lakáshitelre megvehető | ||
| 18 500 000 HUF | ||
Ingatlan adatai
- Eladó vagy kiadó:Eladó
- Település:Miskolc
- Kategória:Ház
- Alkategória:Egyéb
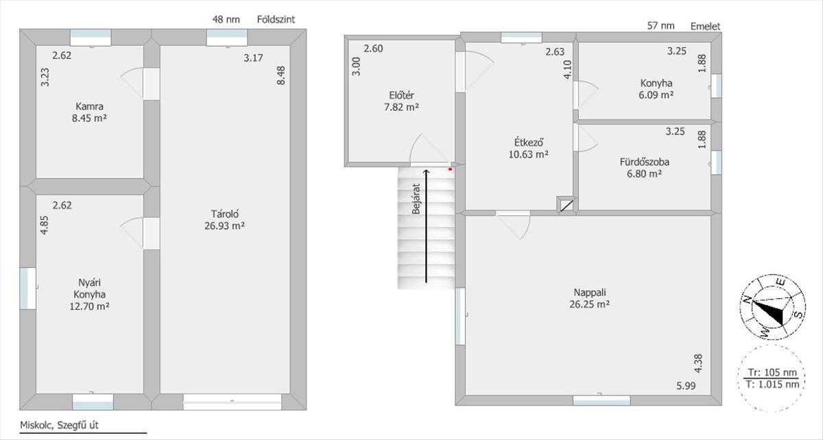
- Alapterület:64 m2
- Telekterület:1800 m2
- Csere is:Nem
- Hirdető:Cég
- Élő videón megtekinthető:Nem
- Szobaszám:2
- Állapot:Jó állapotú
- Hány szintes az ingatlan:2 szintes
- Tetőtér:nincs megadva
- Komfortosság:Komfortos
- Parkolási lehetőség:Udvaron
- Fűtés:Gáz (konvektor)
- Bútorozottság:nincs megadva
- Fényviszony:nincs megadva
- Tájolás:nincs megadva
- Kilátás:nincs megadva
- Internet:nincs megadva
- Akadálymentesített:nincs megadva
- Energiatanúsítvány:nincs megadva
- Villany:nincs megadva
- Víz:nincs megadva
- Gáz:nincs megadva
- Csatorna:nincs megadva
- Üzenetküldés
- Hívás

Haluska Szilveszter
Mondd meg a hirdetőnek, hogy a megveszLAK-on találtad a hirdetést.

Hitel ajánlat
Ingatlan hirdetés leírása
Eladó ház Miskolc, Eladó jó állapotú ház - Miskolc
Eladó Miskolcon egy tégla építésű 2 szintes, 64 nm-es, 2 szobás jó állapotú családi ház a Szegfű Dűlő utcában. a tárgyi ingatlan faszerkezetű nyílászárókkal és redőnyökkel szerelt, fűtését radiátorok, kazán illetve hőszivattyú biztosítja. Az ingatlan 3 fázisú áramellátással és riasztóval felszerelt. a környék biztonságos, az utcát jó lakóközösség jellemzi.Helységlista:
Alsó szint:
●garázs
●nyári konyha
●tároló
Emelet:
●nappali
●konyha
●étkező
●fürdőszoba
●előszoba
●terasz
Ha szeretne többet megtudni erről az ingatlanról, vagy személyesen szeretné megtekinteni, kérjük, vegye fel velünk a kapcsolatot még ma!
Hitelügyintézésben segítünk!
További információkért keressen minket a megadott telefonszámon vagy E-mail címen.
Várjuk érdeklődését! FIX 3% lakáshitelre megvehető

