- >>
- eladó ingatlanok
- >>
- eladó ház
- >>
- eladó ház Vác
- >>
Eladó ház - Vác
| | |||
| Kedvencnek jelölöm | Elküldöm emailben | Megosztás | Szavazás |
| Kedvezményes lakáshitel ajánlatok | |||
| 258 000 000 HUF | |||
Ingatlan adatai
- Eladó vagy kiadó:Eladó
- Település:Vác
- Kategória:Ház
- Alkategória:Egyéb
- Alapterület:nincs megadva
- Telekterület:2697 m2
- Csere is:Nem
- Hirdető:Cég
- Élő videón megtekinthető:Nem
- Szobaszám:nincs megadva
- Állapot:nincs megadva
- Hány szintes az ingatlan:nincs megadva
- Tetőtér:nincs megadva
- Komfortosság:nincs megadva
- Parkolási lehetőség:nincs megadva
- Fűtés:nincs megadva
- Bútorozottság:nincs megadva
- Fényviszony:nincs megadva
- Tájolás:nincs megadva
- Kilátás:nincs megadva
- Internet:nincs megadva
- Akadálymentesített:nincs megadva
- Energiatanúsítvány:nincs megadva
- Villany:nincs megadva
- Víz:nincs megadva
- Gáz:nincs megadva
- Csatorna:nincs megadva
- Üzenetküldés
- Hívás


Hitel ajánlat
Ingatlan hirdetés leírása
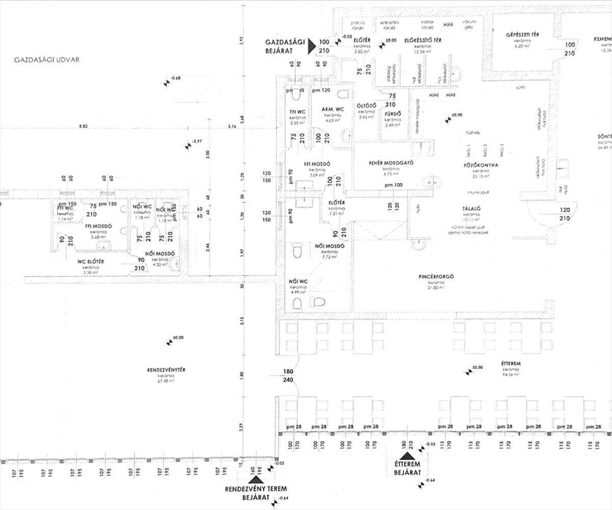
Különleges befektetési lehetőség az agglomerációban. Vác város...
Különleges befektetési lehetőség az agglomerációban. Vác város északnyugati részén, közvetlenül a kerékpárút mellett eladó egy rendezvényekre és szálláshely szolgáltatására is alkalmas, jól bejáratott vendégkörrel rendelkező vendéglátó egység.Ez az ingatlan a környék és a saját adottságait figyelembe véve értéktartó befektetés, akár másfajta elképzelés megvalósítása mellett is. Fekvésének és kialakításának köszönhetően könnyen és kényelmesen megközelíthető. a 2-es számú főútról nyíló 34 férőhelyes saját parkoló lehetővé teszi a kényelmes parkolást akár autóbuszok számára is, a kerékpárútról kialakított bejárata pedig csábító felfrissülési és pihenési lehetőséget kínál a fáradt, gyalogosan vagy kerékpárral érkező kirándulóknak.
Az étterem a földszinten, 404. 28 Négyzetméteres területen helyezkedik el, jelenlegi állapotában azonnal üzemeltethető. a belső enteriőr könnyed, pihentető érzést kelt, barátságos és természetközeli hangulatáról az üveg oldalfalak és a félig nyitott látványkonyha gondoskodnak. a földszint helyiségeit tekintve, található benne a nyitott, világos és szellős étterem, rendezvény-, és tánctér mellett 2 db söntés, kemence tér, gépészeti tér, pincérfogó, tálaló, főzőkonyha, előkészítő tér, előtér, fehér mosogató, öltözők és mellékhelyiségek. Az épület 2697 négyzetméteres telken fekszik, így rengeteg hely áll rendelkezésre. Jelenleg külső vendégtérnek két teraszrész lett kialakítva, igény esetén ez tovább fejleszthető, bővíthető.
A szálláshely szolgáltatáshoz négy darab fürdőszobával ellátott szoba áll rendelkezésre az emeleten, ennek hasznos alapterülete 52 négyzetméter.
Az épület rendelkezik továbbá egy 98 négyzetméteres alagsorral, ahol jelenleg tárolók, feldolgozók és hűtőszobák találhatóak, de alkalmas lehet üzlethelyiség, bolt kialakítására is.
Az ingatlan több részletben épült, az építkezés kezdete a 2018-as év volt. Az épület nagyobb része téglaépítésű, a többi könnyűszerkezettel épült, 10 cm-es szigeteléssel ellátva. Nyílászárói műanyagok. Fűtését gázcirkó biztosítja padlófűtéssel, az emeleten található helyiségek klímával fűthetőek. Rendelkezésre áll egy 500 literes puffertartály és 3 darab napkollektor.
A ingatlan területén kamera és riasztórendszer került kiépítésre.
Vételár: 258. 000. 000 Ft.
Vác a Dunakanyar központjaként ismert város, Pest megyében, a Duna bal partján, a Naszály hegy lábánál helyezkedik el. a 900 éves történelemmel rendelkező városban sétálva számos építészeti és vallási emléket fedezhet fel az ide látogató, mint a monumentális és gyönyörű székesegyház, a Diadalív, a nemrég felújított barokk főtér, melyet különleges hangulatú, keskeny kis utcákon keresztül tudunk megközelíteni, a Remete szobor, a Hétkápolna, a Gombás-patak hídja. a múzeumok számtalan érdekes látnivalót és régészeti kincset tartogatnak. a város ezen kívül kivételesen szép Duna parti sétánnyal rendelkezik, mely a belváros alatti partszakaszon helyezkedik el. Vác gyermekbarát, kerékpáros-barát és kutyabarát város. Pest megye negyedik legnagyobb lélekszámmal rendelkező városa, mégis sikerült megőriznie nyugodt és romantikus kisvárosi hangulatát.
A közlekedés kiváló, több irányból könnyen megközelíthető város, a fővárosi ingázás sem jelent akadályt, mivel Budapest gyorsan elérhető autóval az m2-es autóúton és a 2-es számú főúton. Amióta megépült az m2-es autóút, a Budapest-Ipolyság-Krakkó útvonal teljesen elkerüli a várost. a tömegközlekedést tekintve a leggyorsabban a Nyugati pályaudvarról zónázó vonatokkal, alig 25 perc alatt elérhető, ezen kívül autóbusszal, biciklivel, a Duna mellett futó gyönyörű, teljesen kiépített kerékpárúton, nyáron pedig a Budapest és Esztergom között közlekedő kiránduló hajókkal is. a Dunán egész évben közlekedő rév köti össze Tahitótfaluval, így Esztergom vagy Szentedre felől is megközelíthető. Hitel.hu - Hasonlítsa össze a bankok lakáshitel ajánlatait

