Eladó új építésű ház - Balatonakarattya
- INGYENES HIRDETÉS FELADÁS
Ingatlan adatai
- Eladó vagy kiadó:Eladó
- Település:Balatonakarattya
- Kategória:Ház
- Alkategória:Házrész
- Alapterület:140 m2
- Telekterület:400 m2
- Csere is:Nem
- Hirdető:Cég
- Élő videón megtekinthető:Nem
- Építés éve:2026
- Szobaszám:5
- Állapot:Új építésű
- Hány szintes az ingatlan:2 szintes
- Tetőtér:nincs megadva
- Komfortosság:Dupla komfortos
- Pince:nincs megadva
- Parkolási lehetőség:Udvaron
- Fűtés:Geotermikus
- Bútorozottság:nincs megadva
- Fényviszony:nincs megadva
- Tájolás:nincs megadva
- Kilátás:nincs megadva
- Internet:nincs megadva
- Klíma:nincs megadva
- Akadálymentesített:nincs megadva
- Energiatanúsítvány:nincs megadva
- Villany:nincs megadva
- Víz:nincs megadva
- Gáz:nincs megadva
- Csatorna:nincs megadva
- Kapcsolatfelvétel

Fórizs Edit - Cent-R ...
+36-(30)-624-2983
Mondd meg a hirdetőnek, hogy a megveszLAK-on találtad a hirdetést.
Hitel ajánlatok
Ingatlan hirdetés leírása
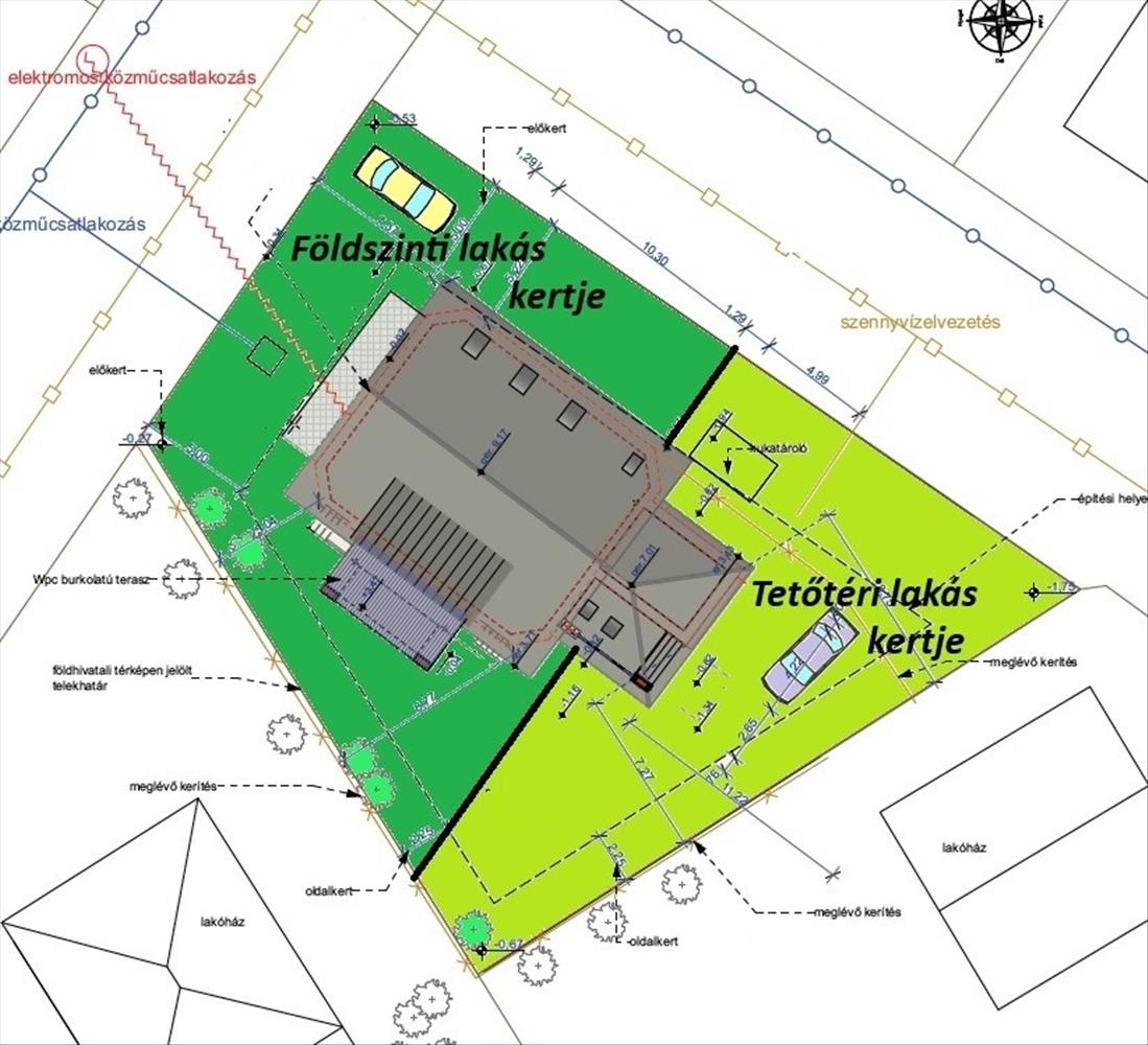
Eladó házrész Balatonakarattya
✨ Falusi CSOK igénybe vehető! Balatonakarattyán új építésű, tetőtéri lakás eladó saját kerttel! ✨
Balatonakarattya csendes, kedvelt részén eladó egy modern, kétlakásos családi ház tetőtéri lakása, amely külön bejárattal és saját kerttel biztosít teljes intimitást. a Balaton közelsége tovább növeli az ingatlan értékét.
Főbb ADATOK:
•bruttó alapterület: 140 m²
•amerikai konyhás nappali + 4 szoba
•2 fürdőszoba
•terasz
•saját lépcsőház tárolóval
•saját, kb. 400 M²-es kert.
Műszaki JELLEMZŐK:
•korszerű hőszivattyús fűtés-hűtés
•15 cm homlokzati szigetelés
•minőségi kivitelezés
•letisztult megjelenés
•csendes, nyugodt környezet.
Ár: 140 000 000 Ft
Részletekért keressen!
Várható átadás: 2026. Április
További képek hamarosan! FIX 3% lakáshitelre megvehető
Tetszett ez az eladó Balatonakarattyai új építésű 5 szobás házrész? Hívd fel a hirdetőt most, és tudj meg mindent erről az eladó házrészről! Ha gondolod nézelődj tovább az eladó ház Balatonakarattya oldal hirdetései között. Ennek az eladó háznak az ára 140000000 Ft és mivel az alapterülete 140 négyzetméter, ezért az átlagos négyzetméterára 1000000 HUF/m2.
Az eladó házak menüpontban további hirdetések között is böngészhetsz. Ha van kedved, akkor böngészhetsz a Fórizs Edit - Cent-R Ingatlan összes hirdetése között.

