- >>
- eladó ingatlanok
- >>
- eladó ház
- >>
- eladó ház Budapest III. kerület
- >>
Eladó felújítandó ház - Budapest III. kerület
| | |||
| Kedvencnek jelölöm | Elküldöm emailben | Megosztás | Szavazás |
| FIX 3% lakáshitelre megvehető | |||
| 58 500 000 HUF | |||
Ingatlan adatai
- Eladó vagy kiadó:Eladó
- Település:Budapest III. kerület
- Kategória:Ház
- Alkategória:Házrész
- Alapterület:39 m2
- Telekterület:350 m2
- Csere is:Nem
- Hirdető:Cég
- Élő videón megtekinthető:Nem
- Építés éve:1965
- Szobaszám:2 + 1 fél
- Állapot:Felújítandó
- Hány szintes az ingatlan:Földszintes
- Tetőtér:nincs megadva
- Komfortosság:nincs megadva
- Parkolási lehetőség:Beállóban
- Fűtés:Gáz (konvektor)
- Bútorozottság:nincs megadva
- Fényviszony:nincs megadva
- Tájolás:nincs megadva
- Kilátás:nincs megadva
- Internet:nincs megadva
- Akadálymentesített:nincs megadva
- Energiatanúsítvány:nincs megadva
- Villany:Van
- Víz:Van
- Gáz:Van
- Csatorna:Van
- Üzenetküldés
- Hívás


Hitel ajánlat
Ingatlan hirdetés leírása
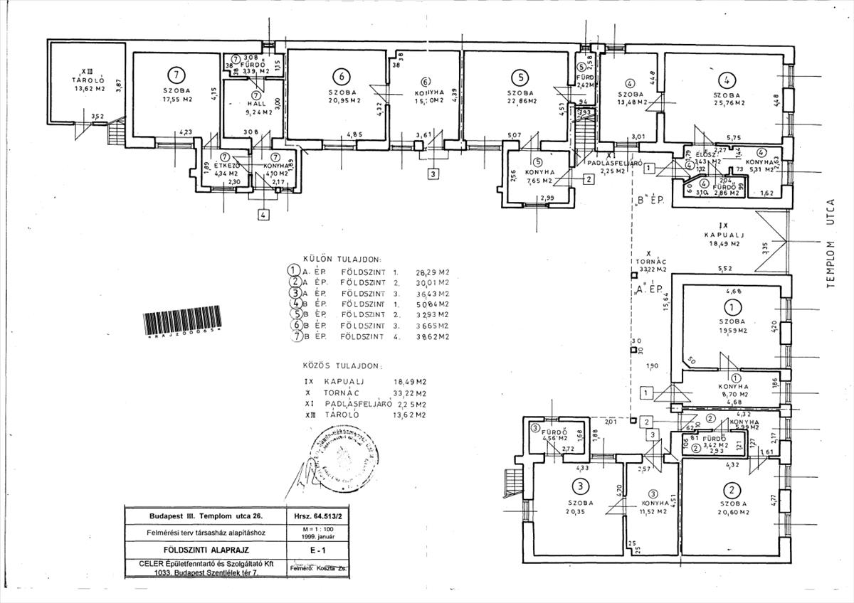
BEFEKTETŐKNEK – RITKA LEHETŐSÉG BÉKÁSMEGYER ÓFALUBAN!
Teljese...
Befektetőknek – ritka lehetőség békásmegyer ÓFALUBAN! Teljesen felújítandó 2 szobás lakás eladó, udvarral rendelkező házban, Ófaluban, ahol a szomszédok az önkormányzat, így biztos a nyugodt környezet. a ház udvarában összesen 7 lakás található.
Az alaprajzon a 7-es számmal jelölt lakás, ami ennek a lakásnak az alaprajza.
A ház csak önkormányzati engedéllyel bontható, de felújításával értékes, kis költségű projekt válhat belőle.
✔ Kis alapterület – alacsony felújítási költség
✔ Összközműves ingatlan
✔ Viszonylag jó állapotú tető és elfogadható nyílászárók
✔ Parkolás az udvarban
Bónusz befektetőknek:
A házhoz ingyenesen használható +71 m² nem lakás célú ingatlan, több tárolóval és egyéb melléképülettel!
Ráadásként van pályázó a telekre, aki tartós bérletet vállalna – ez akár a hitelköltség felét is kitermelheti.
Az ingatlan 3%-os fix Otthon Start hitelre alkalmas lehet.
Ha jó befektetést keresel, amit minimális ráfordítással értéknövelni lehet, ez az egyik legjobb lehetőség Ófaluban!
Több információ miatt, telefonon érdeklődj.
Vereb Attila – +36 20 263 9995
Több mint 15 éves szakmai tapasztalattal segítek az adásvétel teljes folyamatában – a megtekintéstől a birtokbaadásig. FIX 3% lakáshitelre megvehető

