Eladó átlagos állapotú ház - Budapest XXII. kerület
- INGYENES HIRDETÉS FELADÁS
Ingatlan adatai
- Eladó vagy kiadó:Eladó
- Település:Budapest XXII. kerület
- Kategória:Ház
- Alkategória:Házrész
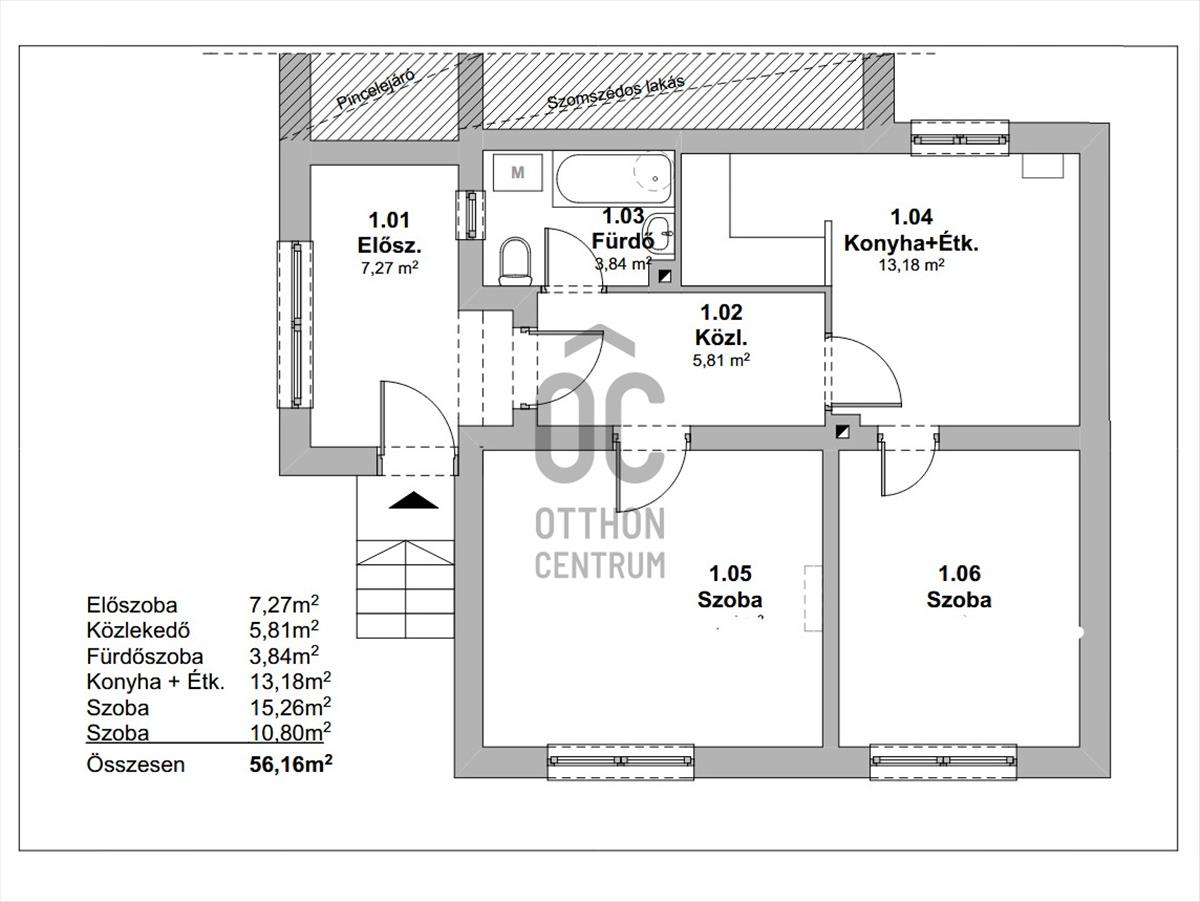
- Alapterület:56 m2
- Telekterület:100 m2
- Csere is:Nem
- Hirdető:Cég
- Élő videón megtekinthető:Nem
- Építés éve:1960
- Szobaszám:2
- Állapot:Átlagos állapotú
- Hány szintes az ingatlan:nincs megadva
- Tetőtér:nincs megadva
- Komfortosság:nincs megadva
- Pince:nincs megadva
- Parkolási lehetőség:nincs megadva
- Fűtés:Gáz (cirko)
- Bútorozottság:nincs megadva
- Fényviszony:nincs megadva
- Tájolás:ÉK
- Kilátás:Kertre néző
- Internet:nincs megadva
- Klíma:nincs megadva
- Akadálymentesített:nincs megadva
- Energiatanúsítvány:nincs megadva
- Villany:Van
- Víz:Van
- Gáz:Van
- Csatorna:Van
- Kapcsolatfelvétel

Boros Ildikó
+36-(70)-716-8116
Mondd meg a hirdetőnek, hogy a megveszLAK-on találtad a hirdetést.
Hitel ajánlatok
Ingatlan hirdetés leírása
22.kerületben, Budafok kertvárosi részén, közkedvelt utcában m...
22. kerületben, Budafok kertvárosi részén, közkedvelt utcában megvételre kínálok egy földszintes házrészt (lakást).
Három lakásos társasházon belül az eladó ingatlan a földszinten helyezkedik el.
Részlegesen már felújították, a nyílászárókat, parkettát és a kazánt kicserélték, jelenleg a fürdőszoba és az előszoba még felújítást igényel.
Saját, lekerített kertrész és pince tartozik a lakáshoz.
Kellemes, családias hangulatú házrész, kedves szomszédokkal. a kertet és a kertészkedést kedvelőknek kifejezetten a figyelmébe ajánlom.
Jogilag rendezett, osztatlan közös tulajdonú, ügyvédi ellenjegyzéssel ellátott használati megosztással rendelkezik.
Időseknek, de fiatal párnak is, kezdő lakásként ideális otthona lehet.
Rugalmasan megtekinthető, azonnal költözhető. FIX 3% lakáshitelre megvehető
Tetszett ez az eladó Budapest XXII. kerületi átlagos állapotú 2 szobás házrész? Hívd fel a hirdetőt most, és tudj meg mindent erről az eladó házrészről! Ha gondolod nézelődj tovább az eladó ház Budapest XXII. kerület oldal hirdetései között. Ennek az eladó háznak az ára 76900000 Ft és mivel az alapterülete 56 négyzetméter, ezért az átlagos négyzetméterára 1373214 HUF/m2.
Az eladó házak menüpontban további hirdetések között is böngészhetsz. Ha van kedved, akkor böngészhetsz a Boros Ildikó összes hirdetése között, vagy akár a/az Otthon Centrum XXII. kerület - Mária Terézia utca összes hirdetése között is.

