Eladó jó állapotú ház - Budapest XXII. kerület (74452773)
ELADÓ INGATLANOK
KIADÓ INGATLANOK
CSERE INGATLANOK
KÜLFÖLDI INGATLANOK
RÉSZLETES KERESÉS
INGATLAN HÍREK
HIRDETÉS FELADÁS
BELÉPÉS
REGISZTRÁCIÓ
hirdetés 1. fotó
hirdetés 2. fotóhirdetés 3. fotó
hirdetés 4. fotóhirdetés 5. fotó
hirdetés 6. fotó
+ 8 fotó
hirdetés 7. fotó
+ 5 fotó
hirdetés 7. fotóhirdetés 8. fotóhirdetés 9. fotóhirdetés 10. fotóhirdetés 11. fotó

Ingatlan adatai

  • Eladó vagy kiadó:Eladó
  • Település:Budapest XXII. kerület
  • Kategória:Ház
  • Alkategória:Házrész
  • Alapterület:56 m2
  • Telekterület:440 m2
  • Csere is:Nem
  • Hirdető:Cég
  • Élő videón megtekinthető:Nem
  • Építés éve:1960
  • Szobaszám:1
  • Állapot:Jó állapotú
  • Hány szintes az ingatlan:Földszintes
  • Tetőtér:nincs megadva
  • Komfortosság:nincs megadva
  • Pince:nincs megadva
  • Parkolási lehetőség:Udvaron
  • Fűtés:Gáz (cirko)
  • Bútorozottság:nincs megadva
  • Fényviszony:Közepes
  • Tájolás:K
  • Kilátás:nincs megadva
  • Internet:nincs megadva
  • Klíma:nincs megadva
  • Akadálymentesített:nincs megadva
  • Energiatanúsítvány:nincs megadva
  • Villany:Telken belül
  • Víz:Telken belül
  • Gáz:Telken belül
  • Csatorna:nincs megadva
  • Kapcsolatfelvétel
Antal Enikő
Antal Enikő
+36-(20)-371-2105
Mondd meg a hirdetőnek, hogy a megveszLAK-on találtad a hirdetést.
Referencia szám: M311350
Érdekel kedvezményes lakáshitel ajánlat is
Az ASZF-et és az Adatkezelési tájékoztatót elfogadom

Hitel ajánlatok

 

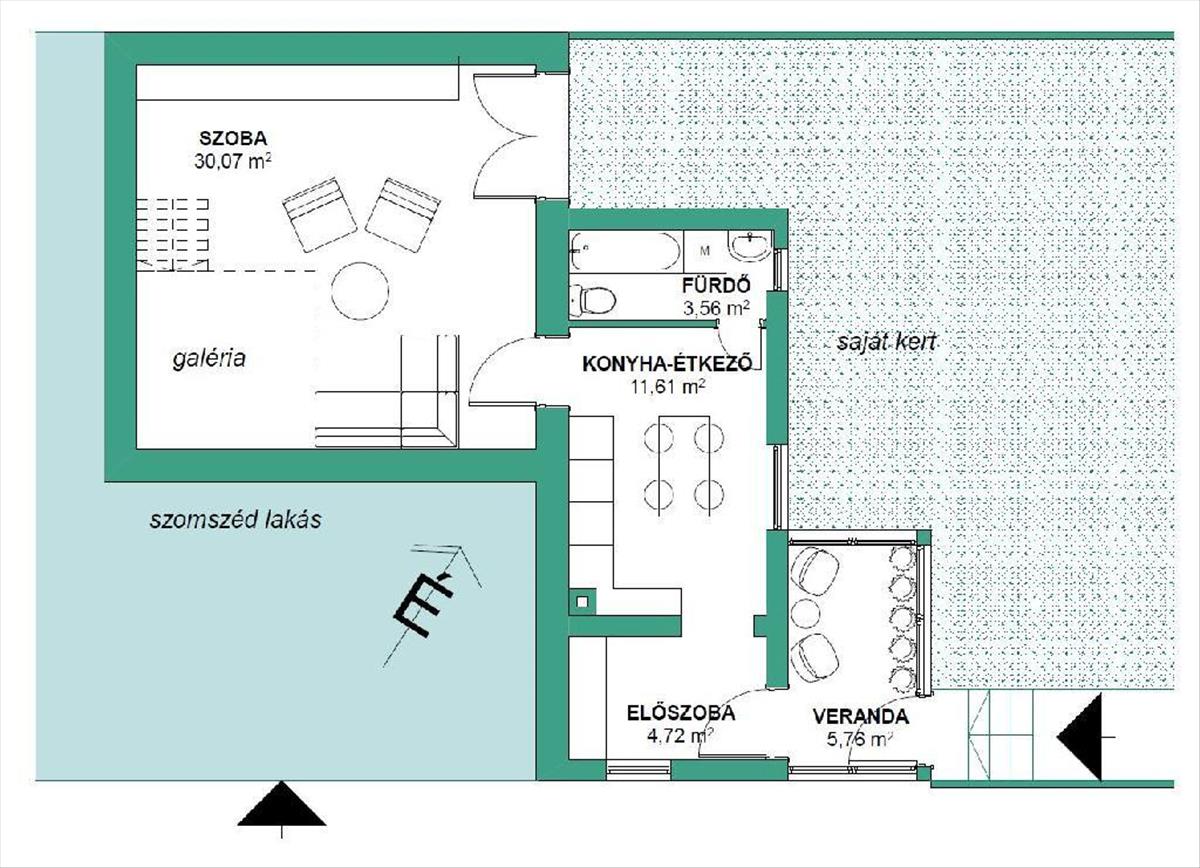
Ingatlan hirdetés leírása

Eladó Ház, Budapest 22. ker.


Budatétényben kertesház. Otthon start hitelre IS.
A XXII. kerület kertvárosi lakóövezetében kiváló lokációban vált eladóvá egy saját nagy kerttel rendelkező házrész.
AZ INGATLAN
Az osztatlan közös tulajdonú telek rendelkezik használati megosztási szerződéssel és vázrajzzal, ezért hitelre is megvásárolható.
A 440 m2-es hangulatos kert 11 méteres utcafronttal bír. Az utcán saját parkolóhely, a kertben autóbeálló található. Az ingatlan megközelítése és használata független a szomszédoktól. Az utca csendes, kis forgalmú.
A LAKÁS:
A kerten keresztül érkezünk a bejárati verandára, majd az előszobába. a lakásban egy jól felszerelt konyha-étkező, egy fürdőszoba és egy nagy méretű, nagy belmagasságú, alvó galériával kibővített szoba található. Innen egy terasz ajtón keresztül a kertbe juthatunk.
A fűtés gáz cirko kazán radiátoros hőleadókkal.
A falazat kő és tégla. a külső nyílászárók két rétegű hőszigetelt üvegezésű műanyag szerkezetű ablakok. Az ingatlan jó állapotú, költözhető.
Igény esetén a tetőtér beépíthető.
A KÖRNYÉK:
Budatétény kedvelt kertvárosi övezetében helyezkedik el. Kiváló közlekedés és infrastruktúra szempontjából. Buszmegálló a háztól 50 méterre, óvoda, bölcsőde, boltok 500 méteren belül találhatók. Egy kilométer távolságban Campona bevásárló központ, Művelődési ház, Tanuszoda, vasútállomás.
A parkolás díjmentes az utcákban.
Otthon Start Hitelprogram igénybevehető. a lakás megfelel a törvényi kritériumoknak, és az ügyintézésben is segítünk.
Antal Enikő
+36/20-371-2105 FIX 3% lakáshitelre megvehető

Tetszett ez az eladó Budapest XXII. kerületi jó állapotú 1 szobás házrész? Hívd fel a hirdetőt most, és tudj meg mindent erről az eladó házrészről! Ha gondolod nézelődj tovább az eladó ház Budapest XXII. kerület oldal hirdetései között. Ennek az eladó háznak az ára 64900000 Ft és mivel az alapterülete 56 négyzetméter, ezért az átlagos négyzetméterára 1158929 HUF/m2.

Az eladó házak menüpontban további hirdetések között is böngészhetsz. Ha van kedved, akkor böngészhetsz a Antal Enikő összes hirdetése között, vagy akár a/az OTPip Budapest I. kerület Krisztina körút 32 - OTP Ingatlanpont Iroda összes hirdetése között is.

 
 
© megveszLAK.hu - Az egyszerűen jó ingatlan hirdetési oldal