Eladó átlagos állapotú ház - Tárnok
- INGYENES HIRDETÉS FELADÁS
Ingatlan adatai
- Eladó vagy kiadó:Eladó
- Település:Tárnok
- Kategória:Ház
- Alkategória:Házrész
- Alapterület:58 m2
- Telekterület:500 m2
- Csere is:Nem
- Hirdető:Cég
- Élő videón megtekinthető:Nem
- Építés éve:1960
- Szobaszám:2
- Állapot:Átlagos állapotú
- Hány szintes az ingatlan:2 szintes
- Tetőtér:nincs megadva
- Komfortosság:nincs megadva
- Pince:nincs megadva
- Parkolási lehetőség:Udvaron
- Fűtés:Gáz (konvektor)
- Bútorozottság:nincs megadva
- Fényviszony:Közepes
- Tájolás:K
- Kilátás:nincs megadva
- Internet:nincs megadva
- Klíma:nincs megadva
- Akadálymentesített:nincs megadva
- Energiatanúsítvány:nincs megadva
- Villany:nincs megadva
- Víz:nincs megadva
- Gáz:nincs megadva
- Csatorna:nincs megadva
- Kapcsolatfelvétel

Hegedűs Tibor
+36-(70)-329-4529
Mondd meg a hirdetőnek, hogy a megveszLAK-on találtad a hirdetést.
Referencia szám: M323403
Hitel ajánlatok
Ingatlan hirdetés leírása
Eladó Ház, Tárnok, Eladó átlagos állapotú ház - Tárnok
Tárnok központjában, csendes, privát hátsó házrész eladó, azonnal költözhető
Tárnok központi, mégis nyugodt részén eladásra kínálok egy 58 m2-es, kétszintes (földszint + beépített tetőtér) házrészt, amely egy rendezett, családias környezetben található társasházi ingatlan leghátsó, úttól legtávolabb eső egysége, így kifejezetten csendes, privát hangulatot biztosít.
Az ingatlan azonnal birtokba vehető, tehermentes és hitelezhető.
Jogviszony és kialakítás
Egy eredetileg egyben épült házból került kialakításra 2 házrész (1/2 1/2 tulajdonrésszel)
Egy ütemben épült
Építési engedélyek és dokumentáció rendezettek
Jogilag rendezett, osztatlan közös tulajdon használati megosztással
A telken összesen 3 lakrész található, az eladó ingatlan a leghátsó, legcsendesebb
Főbb műszaki adatok
Alapterület: 58 m2 (a fedett terasz területének fele beleszámítva)
Telekrész: kb. 500 m2, rendezett, gondozott kert gyümölcsfákkal
Épület szerkezete: tégla
Tető: cseréptető, nem szigetelt
Tetőtér: beépített
Fűtés: gázkonvektor (gáz főmérő kizárólag ehhez a lakrészhez tartozik)
Közművek: víz, villany, gáz, csatorna telken belül
Nyílászárók jó állapotúak, beázás vagy penészesedés nem volt
Pince nincs, viszont tároló rendelkezésre áll
Utca aszfaltos
Parkolás közterületen, ingyenesen
Rezsi költség: kb. 20. 000 Ft / hó
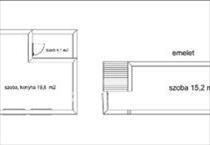
Elrendezés
Földszint:
Szoba
Konyha
Fürdőszoba
Tetőtér:
Tágas hálószoba
Kültér:
Rendkívül hangulatos fedett terasz
Saját, 500 m2-es kert gyümölcsfákkal
Ideális pihenéshez, kertészkedéshez, kutyatartáshoz
Környezet és elhelyezkedés
Központi, mégis zöldövezeti, csendes környezet
Buszmegálló, bolt, iskola, óvoda néhány perc sétával elérhető
M7-es autópálya gyorsan megközelíthető
Budapest kb. 25 Perc
Tömegközlekedés könnyen elérhető
Jó lakóközösség, rendezett szomszédság
A tulajdonos jó kapcsolatot ápol a szomszédokkal, konfliktusmentes környezet.
Kinek ajánlom?
Ez az ingatlan elsősorban 1 2 fő részére ideális, több személy számára a lakótér már szűk lehet.
Kiváló választás fiatal pároknak vagy egyedülállóknak, akik:
Saját kertre vágynak
Csendes, mégis központi elhelyezkedést keresnek
Azonnal költözhető otthont szeretnének
Az ingatlan tehermentes, hitelezhető és azonnal birtokba adható.
Ingatlanjogász ügyvédi iroda vagyunk 25 éve.
Az OTP Csoport teljes körű ügyintézéssel áll az eladók és a vevők rendelkezésére! Cégünk digitális rendszerrel dolgozik már közel 6 éve, így akár online, személyes találkozó nélkül is zökkenőmentesen vásárolhatja meg a kiválasztott ingatlant! a kínálatunkból választott ingatlan finanszírozásához kedvezményes hitel- és lízing konstrukciót, állami támogatásokat, lakás-takarékpénztári megoldásokat kínálunk. Az adásvételi szerződés megkötéséhez igény szerint megbízható ügyvédi közreműködést biztosítunk, és segítséget nyújtunk az adásvételhez kapcsolódó ügyek intézésében is. Bővebb tájékoztatásért hívjon bizalommal akár hétvégén is! Fontos: Ha még nem volt ingatlan a nevén, vagy gyermekeinek szeretné megvásárolni ezt a kiváló adottságokkal rendelkező lakást, az új kedvezményes 3%-os kamatozású hitelt az OTP Bank hátterével 22 napon belül tudjuk biztosítani!
Referencia szám: m323403-ml FIX 3% lakáshitelre megvehető
Tetszett ez az eladó Tárnoki átlagos állapotú 2 szobás házrész? Hívd fel a hirdetőt most, és tudj meg mindent erről az eladó házrészről! Ha gondolod nézelődj tovább az eladó ház Tárnok oldal hirdetései között. Ennek az eladó háznak az ára 45000000 Ft és mivel az alapterülete 58 négyzetméter, ezért az átlagos négyzetméterára 775862 HUF/m2.
Az eladó házak menüpontban további hirdetések között is böngészhetsz. Ha van kedved, akkor böngészhetsz a Hegedűs Tibor összes hirdetése között, vagy akár a/az OTPip Budapest I. kerület Krisztina körút 32 - OTP Ingatlanpont Iroda összes hirdetése között is.

