Eladó átlagos állapotú nyaraló - Balatonföldvár
- INGYENES HIRDETÉS FELADÁS
Ingatlan adatai
- Eladó vagy kiadó:Eladó
- Település:Balatonföldvár
- Kategória:Nyaraló
- Alkategória:Hétvégi ház
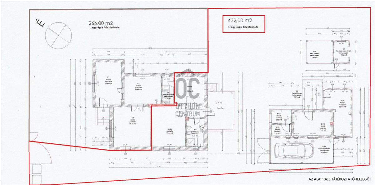
- Alapterület:60 m2
- Telekterület:nincs megadva
- Csere is:Nem
- Hirdető:Cég
- Élő videón megtekinthető:Nem
- Építés éve:1961
- Szobaszám:2
- Állapot:Átlagos állapotú
- Hány szintes az ingatlan:nincs megadva
- Tetőtér:nincs megadva
- Komfortosság:nincs megadva
- Pince:nincs megadva
- Parkolási lehetőség:nincs megadva
- Fűtés:Gáz (konvektor)
- Téliesített:nincs megadva
- Bútorozottság:nincs megadva
- Fényviszony:nincs megadva
- Tájolás:DNY
- Kilátás:Kertre néző
- Internet:nincs megadva
- Klíma:nincs megadva
- Akadálymentesített:nincs megadva
- Energiatanúsítvány:nincs megadva
- Villany:Van
- Víz:Van
- Gáz:Van
- Csatorna:Van
- Kapcsolatfelvétel

Hitel ajánlatok
Ingatlan hirdetés leírása
Balatonföldváron, a Keleti strandtól mindössze 1 km-re, csende...
Balatonföldváron, a Keleti strandtól mindössze 1 km-re, csendes, átmenő forgalomtól mentes utcában kínálunk megvételre egy 2 lakásos családi házban kialakított,
teljesen szeparált lakást, saját udvarrésszel és külön nyári lakrésszel.
Az ingatlan ideális választás állandó lakhatásra, nyaralónak vagy befektetésnek is.
FŐBB ADATOK:
*Lakás: 49 m²
*Nyári lakrész: 26 m²
*Fedett terasz
*Garázs: 20 m²
*Fedett szaletli
*Kerti tároló
*Telek: 432 m² (leválasztott, kizárólagos használatú)
AZ épület JELLEMZŐI:
*2 lakásos családi ház, társasházzá alapítva
*Teljesen elkülönített udvar, külön kertbejárattal
*A közös fal hangszigeteléssel ellátott
*Kétrétegű műanyag nyílászárók, szúnyoghálóval és redőnnyel
*Födém kőzetgyapot szigeteléssel
*Teljes közműellátottság
*Külön közműórák
*Melegvíz: villanybojler
*Fűtés: gázkonvektor, hűtő-fűtő klíma, elektromos fűtőpanel
*Ügyvéd által ellenjegyzett társasházi alapító okirat, használati megosztással
LAKÁS ELOSZTÁSA:
*2 szoba
*Konyha étkezővel
*Közlekedő
*Fürdőszoba WC-vel
NYÁRI LAKRÉSZ:
*2 szoba
*Fürdőszoba WC-vel
*Fedett terasz + terasz
*A nyári lakrészt korábban nyaraltatásra hasznosították, bejáratott vendégkörrel – kiváló befektetési lehetőség!
GARÁZS
*Egy autó és akár plusz egy motor is kényelmesen elfér
ELHELYEZKEDÉS:
*Keleti strand: 1 km
*Bevásárlóközpont: 600 m
*Vasútállomás: 1, 7 km
ÖSSZEGZÉS:
*Saját udvar
*Külön nyári lakrész – extra bevételi lehetőség
*Csendes utca
*Strand közelsége
*Rendezett jogi háttér
Érdeklődj bizalommal, és tekintsd meg ezt a sokoldalúan hasznosítható balatonföldvári ingatlant!
Ez az ingatlan a "Felező csomag" megbízási portfólióhoz tartozik. Részletek az Otthon Centrum weboldalán. Hitel.hu - Hasonlítsa össze a bankok lakáshitel ajánlatait
Tetszett ez az eladó Balatonföldvári átlagos állapotú 2 szobás nyaraló? Hívd fel a hirdetőt most, és tudj meg mindent erről az eladó nyaralóról! Ha gondolod nézelődj tovább az eladó nyaraló Balatonföldvár oldal hirdetései között. Ennek az eladó nyaralónak az ára 54900000 Ft és mivel az alapterülete 60 négyzetméter, ezért az átlagos négyzetméterára 915000 HUF/m2.
Az eladó nyaralók menüpontban további hirdetések között is böngészhetsz. Ha van kedved, akkor böngészhetsz a Csizmadia-Schveiger Eszter összes hirdetése között, vagy akár a/az Otthon Centrum Balatonboglár összes hirdetése között is.
További hirdetéseket találsz az eladó Balaton déli parti nyaralók között. Ha a teljes régió kínálata érdekel, nézd meg az eladó Balatoni nyaralók oldalt.

