Eladó átlagos állapotú nyaraló Biri
| Kedvencbe | Megosztás | Árfigyelő |
| Kedvezményes lakáshitel ajánlatok | ||
| 17 500 000 HUF | ||
Ingatlan adatai
- Eladó vagy kiadó:Eladó
- Település:Biri
- Kategória:Nyaraló
- Alkategória:Hétvégi ház
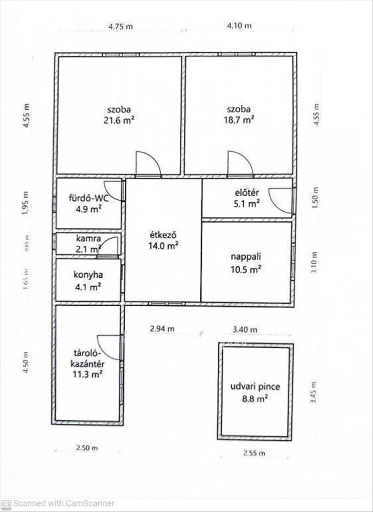
- Alapterület:65 m2
- Telekterület:3000 m2
- Csere is:Nem
- Hirdető:Cég
- Élő videón megtekinthető:Nem
- Építés éve:1960
- Szobaszám:2
- Állapot:Átlagos állapotú
- Hány szintes az ingatlan:Földszintes
- Tetőtér:nincs megadva
- Komfortosság:nincs megadva
- Parkolási lehetőség:Udvaron
- Fűtés:Gáz (konvektor)
- Téliesített:nincs megadva
- Bútorozottság:nincs megadva
- Fényviszony:Közepes
- Tájolás:nincs megadva
- Kilátás:nincs megadva
- Internet:nincs megadva
- Akadálymentesített:nincs megadva
- Energiatanúsítvány:nincs megadva
- Villany:Telken belül
- Víz:Telken belül
- Gáz:Utcában
- Csatorna:nincs megadva
- Üzenetküldés
- Hívás

Referencia szám: M296223

Hitel ajánlat
Ingatlan hirdetés leírása
Eladó Ház, Biri, Eladó átlagos állapotú nyaraló - Biri
Biriben nagyon csendes helyen elhelyezkedő, 65 nm alapterületű, 2 szoba, konyhás családi ház eladó.A ház egy zsákutca végén található.
A tetőt pala fedi, a falazata vályog, a nyílászárók fából készültek és redőnnyel felszereltek.
Két szoba, konyha, kamra, fürdőszoba, előtér és külön bejárattal nyári konyha részekből áll.
Fűtése gáz konvektoros és van benne két cserépkályha is.
A ház előtt zárt, beüvegezett terasz található.
A nyári konyha szemben a házzal, külön bejárattal megközelíthető.
Kamra tartozik hozzá, alapterülete 16 nm.
A ház mellett pince, tárolók és egyéb melléképületek vannak.
A telek 6000 nm nagyságú, fele akácfákkal van beültetve, ami biztosítja a téli tüzelőt.
Elsősorban készpénzes vevőt várnak, mert 0 a HRSZ-a.
Ha egy csendes helyen lévő családi házat keres, megtalálta.
Amennyiben a hirdetés felkeltette az érdeklődését, keressen bizalommal!
Irodánkban díjmentesen intézhető hitel, falusi csok, CSOK Plusz, Babaváró. Vevőink számára minden szogáltatás díjmentes! Hitel.hu - Hasonlítsa össze a bankok lakáshitel ajánlatait

