Eladó átlagos állapotú nyaraló - Biri
- INGYENES HIRDETÉS FELADÁS
Ingatlan adatai
- Feladva:82 napja a megveszLAK-on
- Eladó vagy kiadó:Eladó
- Település:Biri
- Kategória:Nyaraló
- Alkategória:Hétvégi ház
- Alapterület:65 m2
- Telekterület:3000 m2
- Csere is:Nem
- Hirdető:Cég
- Élő videón megtekinthető:Nem
- Építés éve:1960
- Szobaszám:2
- Állapot:Átlagos állapotú
- Hány szintes az ingatlan:Földszintes
- Tetőtér:nincs megadva
- Komfortosság:nincs megadva
- Pince:nincs megadva
- Parkolási lehetőség:Udvaron
- Fűtés:Gáz (konvektor)
- Téliesített:nincs megadva
- Bútorozottság:nincs megadva
- Fényviszony:Közepes
- Tájolás:nincs megadva
- Kilátás:nincs megadva
- Internet:nincs megadva
- Klíma:nincs megadva
- Akadálymentesített:nincs megadva
- Energiatanúsítvány:nincs megadva
- Villany:Telken belül
- Víz:Telken belül
- Gáz:Utcában
- Csatorna:nincs megadva
- Kapcsolatfelvétel

Kardos Zoltán
+36-(70)-561-8841
Mondd meg a hirdetőnek, hogy a megveszLAK-on találtad a hirdetést.
Referencia szám: M296223
Hitel ajánlatok
Ingatlan hirdetés leírása
Eladó Ház, Biri, Eladó átlagos állapotú nyaraló - Biri
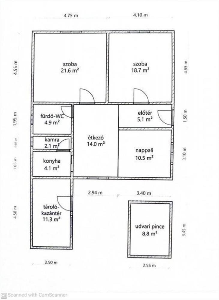
Biriben nagyon csendes helyen elhelyezkedő, 65 nm alapterületű, 2 szoba, konyhás családi ház eladó.
A ház egy zsákutca végén található.
A tetőt pala fedi, a falazata vályog, a nyílászárók fából készültek és redőnnyel felszereltek.
Két szoba, konyha, kamra, fürdőszoba, előtér és külön bejárattal nyári konyha részekből áll.
Fűtése gáz konvektoros és van benne két cserépkályha is.
A ház előtt zárt, beüvegezett terasz található.
A nyári konyha szemben a házzal, külön bejárattal megközelíthető.
Kamra tartozik hozzá, alapterülete 16 nm .
A ház mellett pince, tárolók és egyéb melléképületek vannak.
A telek 6000 nm nagyságú, fele akácfákkal van beültetve, ami biztosítja a téli tüzelőt.
Elsősorban készpénzes vevőt várnak, mert 0 a HRSZ-a.
Ha egy csendes helyen lévő családi házat keres, megtalálta.
Amennyiben az ingatlan megvásárlásához CSOK Pluszt, Babaváró támogatást, illetve hitelt szeretne igénybe venni, sorban állás nélkül, ingyenes pénzügyi tanácsadással és teljes körű ügyintézéssel is segítjük Önt! Hitel.hu - Hasonlítsa össze a bankok lakáshitel ajánlatait
Tetszett ez az eladó Biri átlagos állapotú 2 szobás nyaraló? Hívd fel a hirdetőt most, és tudj meg mindent erről az eladó nyaralóról! Ha gondolod nézelődj tovább az eladó nyaraló Biri oldal hirdetései között. Ennek az eladó nyaralónak az ára 17500000 Ft és mivel az alapterülete 65 négyzetméter, ezért az átlagos négyzetméterára 269231 HUF/m2.
Az eladó nyaralók menüpontban további hirdetések között is böngészhetsz. Ha van kedved, akkor böngészhetsz a Kardos Zoltán összes hirdetése között, vagy akár a/az OTPip Nyíregyháza Sólyom utca 4 - OTP Ingatlanpont Iroda összes hirdetése között is.

