Eladó átlagos állapotú nyaraló - Gárdony
- INGYENES HIRDETÉS FELADÁS
Ingatlan adatai
- Eladó vagy kiadó:Eladó
- Település:Gárdony
- Kategória:Nyaraló
- Alkategória:Hétvégi ház
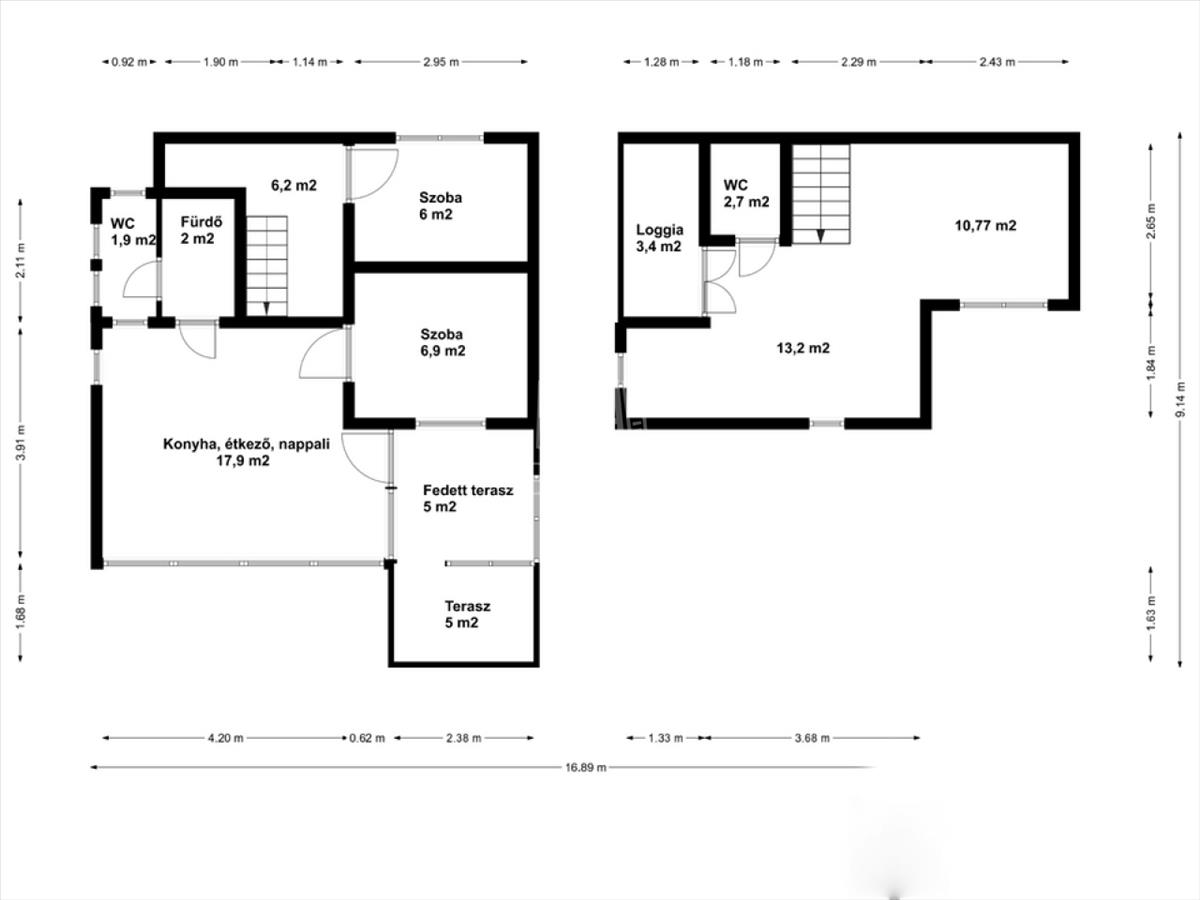
- Alapterület:64 m2
- Telekterület:233 m2
- Csere is:Nem
- Hirdető:Cég
- Élő videón megtekinthető:Nem
- Építés éve:1975
- Szobaszám:2 + 2 fél
- Állapot:Átlagos állapotú
- Hány szintes az ingatlan:2 szintes
- Tetőtér:nincs megadva
- Komfortosság:nincs megadva
- Pince:nincs megadva
- Parkolási lehetőség:Utcán
- Fűtés:Gáz (konvektor)
- Téliesített:nincs megadva
- Bútorozottság:nincs megadva
- Fényviszony:nincs megadva
- Tájolás:nincs megadva
- Kilátás:nincs megadva
- Internet:nincs megadva
- Klíma:nincs megadva
- Akadálymentesített:nincs megadva
- Energiatanúsítvány:nincs megadva
- Villany:Van
- Víz:Van
- Gáz:Van
- Csatorna:Van
- Kapcsolatfelvétel

Szegedi Éva
+36-(20)-927-8422
Mondd meg a hirdetőnek, hogy a megveszLAK-on találtad a hirdetést.
Hitel ajánlatok
Ingatlan hirdetés leírása
4804. Gárdonyban, 1 km távolságra a tóparttól, csendes kertvár...
4804. Gárdonyban, 1 km távolságra a tóparttól, csendes kertvárosi utcában, 1975-ben épült favázas könnyűszerkezetes "Éva faház" ikernyaraló, a földszinten tégla bővítményi résszel, gázkonvektor fűtéssel, kis melléképülettel, fedett terasszal, 233 m2-es telekrésszel, közepes-felújítandó állapotban eladó. Részleges felújítások történtek az elmúlt 10 évben: fémlemez héjazat, részleges homlokzati hőszigetelés, külső nyílászárók részleges cseréje. Irányár: 39, 99 Mft Hitel.hu - Hasonlítsa össze a bankok lakáshitel ajánlatait
Tetszett ez az eladó Gárdonyi átlagos állapotú 2 egész és 2 fél szobás nyaraló? Hívd fel a hirdetőt most, és tudj meg mindent erről az eladó nyaralóról! Ha gondolod nézelődj tovább az eladó nyaraló Gárdony oldal hirdetései között. Ennek az eladó nyaralónak az ára 39990000 Ft és mivel az alapterülete 64 négyzetméter, ezért az átlagos négyzetméterára 624844 HUF/m2.
Az eladó nyaralók menüpontban további hirdetések között is böngészhetsz. Ha van kedved, akkor böngészhetsz a Szegedi Éva összes hirdetése között, vagy akár a/az GDN Ingatlanhálózat összes hirdetése között is.

