Eladó átlagos állapotú nyaraló - Gárdony
- INGYENES HIRDETÉS FELADÁS
Ingatlan adatai
- Eladó vagy kiadó:Eladó
- Település:Gárdony
- Kategória:Nyaraló
- Alkategória:Hétvégi ház
- Alapterület:243 m2
- Telekterület:1300 m2
- Csere is:Nem
- Hirdető:Cég
- Élő videón megtekinthető:Nem
- Építés éve:1970
- Szobaszám:10
- Állapot:Átlagos állapotú
- Hány szintes az ingatlan:Földszintes
- Tetőtér:nincs megadva
- Komfortosság:nincs megadva
- Pince:nincs megadva
- Parkolási lehetőség:Beállóban
- Fűtés:Egyéb
- Téliesített:nincs megadva
- Bútorozottság:nincs megadva
- Fényviszony:nincs megadva
- Tájolás:nincs megadva
- Kilátás:nincs megadva
- Internet:nincs megadva
- Klíma:nincs megadva
- Akadálymentesített:nincs megadva
- Energiatanúsítvány:nincs megadva
- Villany:Van
- Víz:Van
- Gáz:Utcában
- Csatorna:Van
- Kapcsolatfelvétel

Kovács Attila
+36-(30)-768-7582
Mondd meg a hirdetőnek, hogy a megveszLAK-on találtad a hirdetést.
Hitel ajánlatok
Ingatlan hirdetés leírása
4800. Agárd legszebb, ősfákkal övezett csendes utcájában a Ges...
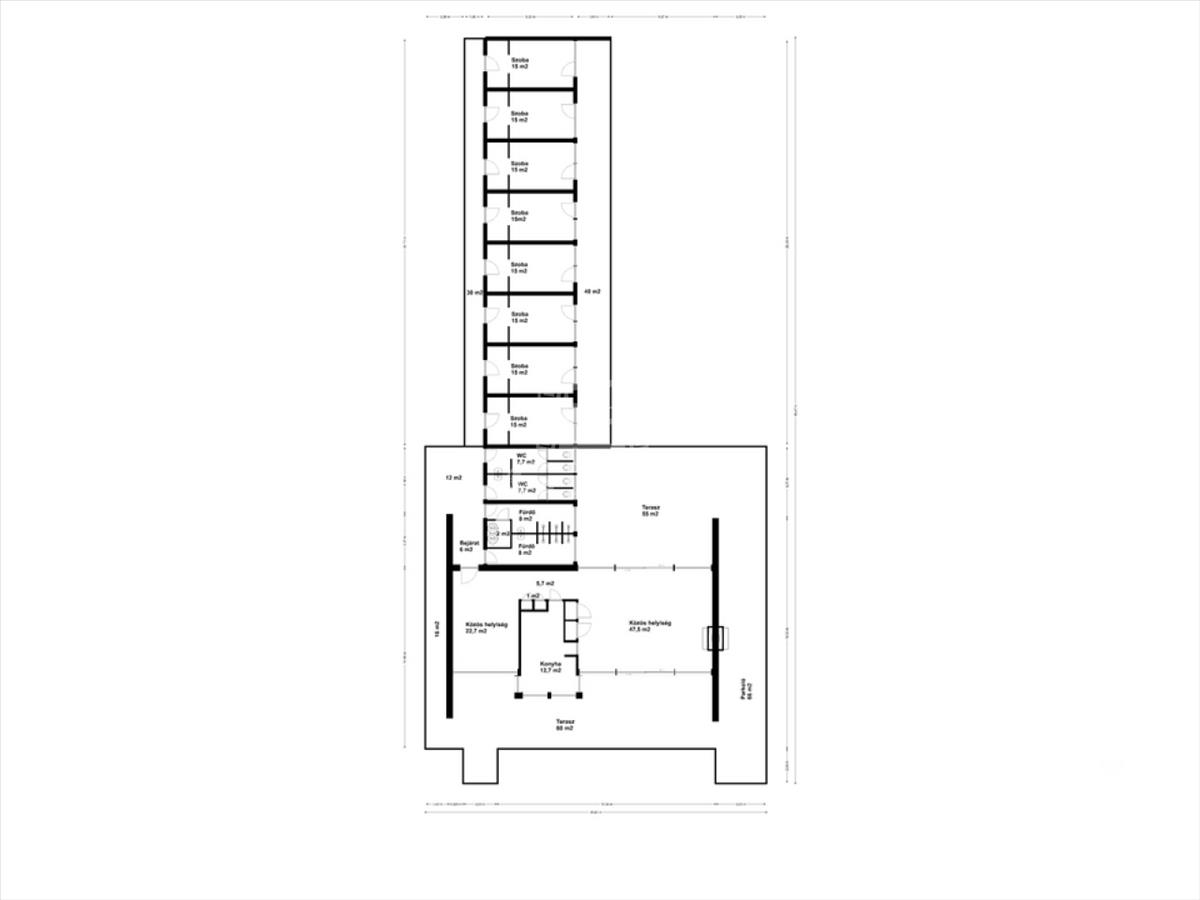
4800. Agárd legszebb, ősfákkal övezett csendes utcájában a Gesztenye soron, 400 m-re a központtól, 1300 m2-es dupla telken, 70-es években épült, masszív vasbeton szerkezetű, statikus által ellenőrzött, a szerkezeti állapotot tekintve kiváló állapotú, 243 m2 nettó alapterületű üdülőépület 8 szobával, felújított vizes blokkokkal és konyhával, új bojlerekkel, új 25*a ipari árammal, nagy közösségi terekkel és teraszokkal, új tetőszigeteléssel eladó.
Az épület kis felújítással jelenleg is alkalmas táborok vagy csoportok szezonális fogadására, a szálláshely 8 szobával üzemeltethető. a szobák előterében megtalálható a víz és vízelvezetés, nagyobb ráfordítással 8 stúdió apartman alakítható ki benne saját wc-vel, saját fürdővel, saját minikonyhával.
A lokációnak, kialakításnak és stabil épület szerkezetnek köszönhetően egy modern luxus lakóépületté is átépíthető.
Méretek:
Közösségi tér (nappali, étkező, konyha) 90 m2
Vizesblokk ( 2 zuhanyzó, 2 wc, bojler helyiség) 33 m2
Szobák (8 *15 m2) 120 m2
Teraszok:
Nappali utca felől: 60 m2
Nappali kert felől: 55 m2
Bejárat: 20, 6 m2
Térkövezett parkoló: 60 m2
Térkövezett bejáró: 16 m2
Szobák mögött: 30, 5 m2
Szobák előtt kert felől: 44 m2
Ár: 180 Mft Hitel.hu - Hasonlítsa össze a bankok lakáshitel ajánlatait
Tetszett ez az eladó Gárdonyi átlagos állapotú 10 szobás nyaraló? Hívd fel a hirdetőt most, és tudj meg mindent erről az eladó nyaralóról! Ha gondolod nézelődj tovább az eladó nyaraló Gárdony oldal hirdetései között. Ennek az eladó nyaralónak az ára 180000000 Ft és mivel az alapterülete 243 négyzetméter, ezért az átlagos négyzetméterára 740741 HUF/m2.
Az eladó nyaralók menüpontban további hirdetések között is böngészhetsz. Ha van kedved, akkor böngészhetsz a Kovács Attila összes hirdetése között, vagy akár a/az GDN Ingatlanhálózat összes hirdetése között is.

