Eladó felújítandó nyaraló - Komló
- INGYENES HIRDETÉS FELADÁS
Ingatlan adatai
- Eladó vagy kiadó:Eladó
- Település:Komló
- Kategória:Nyaraló
- Alkategória:Hétvégi ház
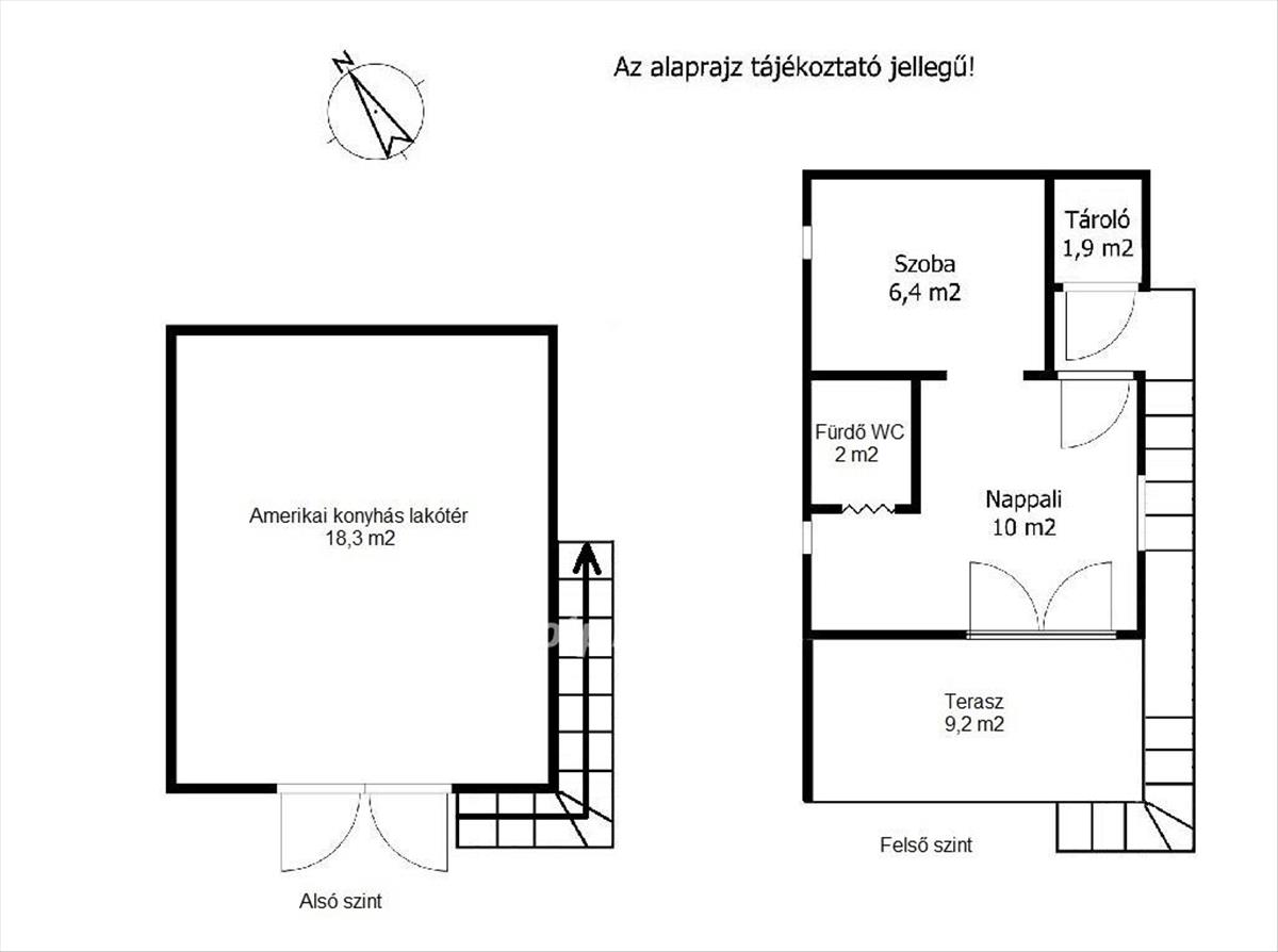
- Alapterület:43 m2
- Telekterület:301 m2
- Csere is:Nem
- Hirdető:Cég
- Élő videón megtekinthető:Nem
- Építés éve:1960
- Szobaszám:1 + 1 fél
- Állapot:Felújítandó
- Hány szintes az ingatlan:2 szintes
- Tetőtér:nincs megadva
- Komfortosság:nincs megadva
- Pince:nincs megadva
- Parkolási lehetőség:Garázsban
- Fűtés:Elektromos
- Téliesített:nincs megadva
- Bútorozottság:nincs megadva
- Fényviszony:nincs megadva
- Tájolás:nincs megadva
- Kilátás:nincs megadva
- Internet:nincs megadva
- Klíma:nincs megadva
- Akadálymentesített:nincs megadva
- Energiatanúsítvány:nincs megadva
- Villany:nincs megadva
- Víz:nincs megadva
- Gáz:nincs megadva
- Csatorna:nincs megadva
- Kapcsolatfelvétel

Vajda Eszter
+36 70 374 8484
Mondd meg a hirdetőnek, hogy a megveszLAK-on találtad a hirdetést.
Hitel ajánlatok
Ingatlan hirdetés leírása
A Mecsek lombos erdőkkel ölelt völgyében, Sikondán, 43 m2-es, ...
A Mecsek lombos erdőkkel ölelt völgyében, Sikondán, 43 m2-es, panorámás nyaraló eladó. Az ingatlan csendes üdülőházas övezetben, átmenő forgalomtól mentes, közvetlen tóparti utcában helyezkedik el. a felújítandó épület alsó szintje konyha, étkező és háló funkcióra hasznosított, a felső szinten nappali, háló, zuhanyzó wc, tároló és fedett terasz lett kialakítva. a 301 m2-es, panorámás telek két utcáról megközelíthető. a telken víz, csatorna és villany közművek vannak. Gázvezeték az utcában van. Termálfürdővel is rendelkező wellness hotel gyalog 900 méterre, 12 perc séta távolságban elérhető. Az ingatlan kiváló választás nyaralásra, felújítást követően akár kiadásra is. a csodálatos természeti környezetben garantált a kikapcsolódás és pihenés. a telek 20%-ig beépíthető, legnagyobb építmény magasság 6 méter. Az eladó tervekkel rendelkezik egy két egységes új ház építésére. Sikonda, Komló város közkedvelt településrésze, Pécs központjától 18 km-re, főútvonalon, könnyen és gyorsan megközelíthető. Bővebb információért, megtekintésért keressen telefonon! Hitel.hu - Hasonlítsa össze a bankok lakáshitel ajánlatait
Tetszett ez az eladó Komlói felújítandó 1 egész és 1 fél szobás nyaraló? Hívd fel a hirdetőt most, és tudj meg mindent erről az eladó nyaralóról! Ha gondolod nézelődj tovább az eladó nyaraló Komló oldal hirdetései között. Ennek az eladó nyaralónak az ára 29500000 Ft és mivel az alapterülete 43 négyzetméter, ezért az átlagos négyzetméterára 686047 HUF/m2.
Az eladó nyaralók menüpontban további hirdetések között is böngészhetsz. Ha van kedved, akkor böngészhetsz a Vajda Eszter összes hirdetése között, vagy akár a/az Siófok Fő utca 83 - OTP Ingatlanpont Iroda összes hirdetése között is.

