- >>
- eladó ingatlanok
- >>
- eladó nyaraló
- >>
- eladó nyaraló Kulcs
- >>
Eladó átlagos állapotú nyaraló - Kulcs
| | |||
| Kedvencnek jelölöm | Elküldöm emailben | Megosztás | Szavazás |
| Kedvezményes lakáshitel ajánlatok | |||
| 16 500 000 HUF | |||
Ingatlan adatai
- Eladó vagy kiadó:Eladó
- Település:Kulcs
- Kategória:Nyaraló
- Alkategória:Hétvégi ház
- Alapterület:90 m2
- Telekterület:898 m2
- Csere is:Nem
- Hirdető:Cég
- Élő videón megtekinthető:Nem
- Építés éve:1974
- Szobaszám:2
- Állapot:Átlagos állapotú
- Hány szintes az ingatlan:3 szintes
- Tetőtér:nincs megadva
- Komfortosság:nincs megadva
- Parkolási lehetőség:Utcán
- Fűtés:Elektromos
- Téliesített:nincs megadva
- Bútorozottság:nincs megadva
- Fényviszony:nincs megadva
- Tájolás:nincs megadva
- Kilátás:nincs megadva
- Internet:nincs megadva
- Akadálymentesített:nincs megadva
- Energiatanúsítvány:nincs megadva
- Villany:nincs megadva
- Víz:nincs megadva
- Gáz:nincs megadva
- Csatorna:nincs megadva
- Üzenetküldés
- Hívás

Mankovics Attila Pálné
Mondd meg a hirdetőnek, hogy a megveszLAK-on találtad a hirdetést.

Hitel ajánlat
Ingatlan hirdetés leírása
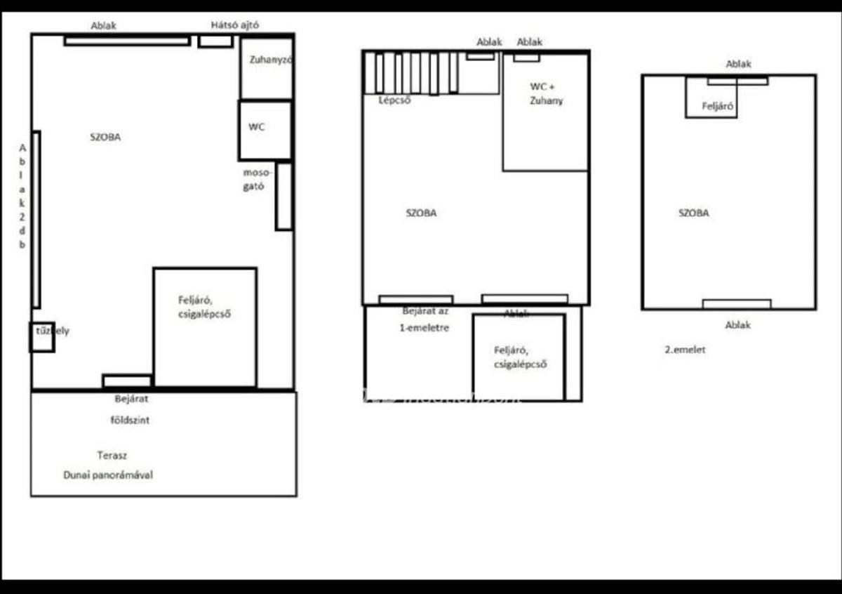
Nyaraló Kulcson, csodás kilátással!
Eladásra kínálok egy nya...
Nyaraló Kulcson, csodás kilátással! Eladásra kínálok egy nyaralót Kulcson üdülőövezetben, a Dunától rövid sétányi távolságra.
A nyaraló 50 m2 alapterületű, 3 szintes, összesen kb 90 m2-es, mely 898 m2-es telken helyezkedik el. Az épület téliesített, állandó lakhatásra alkalmas szigetelt faház, terasszal.
Az ingatlanban 2 szoba, nappali konyhával, zuhanyzós fürdőszoba, 2 wc található.
Keletre néző ablakaiból gyönyörű örök panorámás kilátás esik a Dunára. Vezetékes víz, villany a házban, emésztő a ház mellett lett kiépítve.
2 Autónak alkalmas betonozott beálló a ház előtt található.
Iskola, óvoda, bölcsőde 15 perc séta.
Az M6-os ill. 6-Os út közelségének köszönhetően könnyen megközelíthető Dunaújváros, illetve Budapest és környéke is.
A faluban sportpálya, játszótér, orvosi rendelő is van.
Megtekintésért, vagy ha kérdése lenne, forduljon hozzám bizalommal, akár hétvégén is. Hitel.hu - Hasonlítsa össze a bankok lakáshitel ajánlatait

