Eladó átlagos állapotú nyaraló - Kulcs
- INGYENES HIRDETÉS FELADÁS
Ingatlan adatai
- Eladó vagy kiadó:Eladó
- Település:Kulcs
- Kategória:Nyaraló
- Alkategória:Hétvégi ház
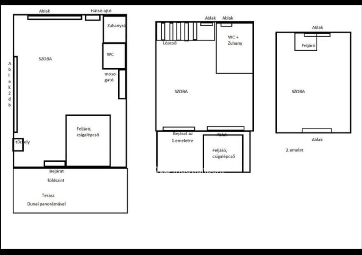
- Alapterület:90 m2
- Telekterület:898 m2
- Csere is:Nem
- Hirdető:Cég
- Élő videón megtekinthető:Nem
- Építés éve:1974
- Szobaszám:2
- Állapot:Átlagos állapotú
- Hány szintes az ingatlan:3 szintes
- Tetőtér:nincs megadva
- Komfortosság:nincs megadva
- Pince:nincs megadva
- Parkolási lehetőség:nincs megadva
- Fűtés:Elektromos
- Téliesített:nincs megadva
- Bútorozottság:nincs megadva
- Fényviszony:Jó
- Tájolás:nincs megadva
- Kilátás:nincs megadva
- Internet:nincs megadva
- Klíma:nincs megadva
- Akadálymentesített:nincs megadva
- Energiatanúsítvány:nincs megadva
- Villany:nincs megadva
- Víz:nincs megadva
- Gáz:nincs megadva
- Csatorna:nincs megadva
- Kapcsolatfelvétel

Máté Katalin
+36-(70)-324-2430
Mondd meg a hirdetőnek, hogy a megveszLAK-on találtad a hirdetést.
Referencia szám: M298308
Hitel ajánlatok
Ingatlan hirdetés leírása
Eladó Ház, Kulcs, Eladó átlagos állapotú nyaraló - Kulcs
Nyaraló Kulcson, csodás kilátással!
Eladásra kínálok egy nyaralót Kulcson üdülőövezetben, a Dunától rövid sétányi távolságra.
A nyaraló 50 m2 alapterületű, 3 szintes, összesen kb 90 m2-es, mely 898 m2-es telken helyezkedik el. Az épület téliesített, állandó lakhatásra alkalmas szigetelt faház, terasszal.
Az ingatlanban 2 szoba, nappali konyhával, zuhanyzós fürdőszoba, 2 wc található.
Keletre néző ablakaiból gyönyörű örök panorámás kilátás esik a Dunára. Vezetékes víz, villany a házban, emésztő a ház mellett lett kiépítve.
2 Autónak alkalmas betonozott beálló a ház előtt található.
Iskola, óvoda, bölcsőde 15 perc séta.
Az M6-os ill. 6-Os út közelségének köszönhetően könnyen megközelíthető Dunaújváros, illetve Budapest és környéke is.
A faluban sportpálya, játszótér, orvosi rendelő is van.
Megtekintésért, vagy ha kérdése lenne, forduljon hozzám bizalommal, akár hétvégén is. Hitel.hu - Hasonlítsa össze a bankok lakáshitel ajánlatait
Tetszett ez az eladó Kulcsi átlagos állapotú 2 szobás nyaraló? Hívd fel a hirdetőt most, és tudj meg mindent erről az eladó nyaralóról! Ha gondolod nézelődj tovább az eladó nyaraló Kulcs oldal hirdetései között. Ennek az eladó nyaralónak az ára 16500000 Ft és mivel az alapterülete 90 négyzetméter, ezért az átlagos négyzetméterára 183333 HUF/m2.
Az eladó nyaralók menüpontban további hirdetések között is böngészhetsz. Ha van kedved, akkor böngészhetsz a Máté Katalin összes hirdetése között, vagy akár a/az OTPip Dunaújváros Kőműves utca 7 - OTP Ingatlanpont Iroda összes hirdetése között is.

