- >>
- eladó ingatlanok
- >>
- eladó nyaraló
- >>
- eladó nyaraló Nagycserkesz
- >>
Eladó jó állapotú nyaraló - Nagycserkesz
| | |||
| Kedvencnek jelölöm | Elküldöm emailben | Megosztás | Szavazás |
| Kedvezményes lakáshitel ajánlatok | |||
| 24 500 000 HUF | |||
Ingatlan adatai
- Eladó vagy kiadó:Eladó
- Település:Nagycserkesz
- Kategória:Nyaraló
- Alkategória:Hétvégi ház
- Alapterület:88 m2
- Telekterület:2000 m2
- Csere is:Nem
- Hirdető:Cég
- Élő videón megtekinthető:Nem
- Építés éve:1958
- Szobaszám:3
- Állapot:Jó állapotú
- Hány szintes az ingatlan:Földszintes
- Tetőtér:nincs megadva
- Komfortosság:nincs megadva
- Parkolási lehetőség:Teremgarázsban
- Fűtés:Gáz (konvektor)
- Téliesített:nincs megadva
- Bútorozottság:nincs megadva
- Fényviszony:Napfényes
- Tájolás:nincs megadva
- Kilátás:nincs megadva
- Internet:nincs megadva
- Akadálymentesített:nincs megadva
- Energiatanúsítvány:nincs megadva
- Villany:Telken belül
- Víz:Telken belül
- Gáz:Telken belül
- Csatorna:nincs megadva
- Üzenetküldés
- Hívás

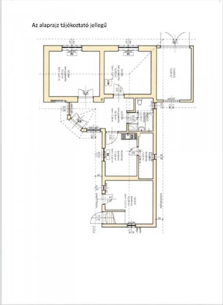
Referencia szám: M317553

Hitel ajánlat
Ingatlan hirdetés leírása
Eladó Ház, Nagycserkesz
Eladó családi ház (tanya jellegű), nagy telekkel Nyírtelek és Nagycserkesz között - csend, természet, lehetőségek!Nyírtelek és Nagycserkesz között, a környék egyik kedvelt bokrában eladásra kínálunk egy 2000 m2-es telken álló, 88 m2-es lakóingatlant, garázzsal és pincével. a terület rendezett, parkosított udvarral, tágas terekkel és kiváló lehetőségekkel várja új tulajdonosát.
A ház vályogfalazatú, terméskő alapra épült, stabil szerkezetű, lakható és költözhető állapotú, ugyanakkor igény szerint korszerűsíthető vagy tovább szépíthető.
Helyiségek:
-3 különnyíló szoba
- konyha
- étkező
- fürdőszoba
-külön WC
- előszoba
-kamra
A belső terek napfényesek, jól elrendezettek, a ház pedig rendkívül barátságos atmoszférát áraszt.
Fűtés: gázkonvektor + cserépkályha - így a rezsi alacsonyan tartható, és a hagyományos fűtés hangulata is megmarad.
Opció -extra lehetőség növénytermesztőknek:
A ház mellett található egy további 2000 m2-es telek, amely +2 millió forintért megvásárolható. Ezzel összesen 4000 m2-es birtok jön létre, amely mezőgazdasági művelésre, állattartásra, növénytermesztésre vagy akár hobbi gazdálkodásra kiváló.
Összegzés:
-csendes, természetközeli elhelyezkedés
- rendezett, parkosított udvar
- lakható, tágas családi ház
-garázs + pince
- kiegészíthető extra szántóval
- kiváló ár-érték arány
- ideális családoknak, gazdálkodóknak, természetkedvelőknek
Hitelben vagy támogatásokban gondolkodik?
Irodánkban sorban állás nélkül, személyre szabottan intézheti az OTP teljes hitel- és támogatási kínálatát, legyen szó CSOK-ról, Babaváróról vagy lakáshitelről.
Az adásvétel teljes folyamatát megbízható ügyvédünkkel együtt végigkísérjük, így Önnek csak a költözésre kell koncentrálnia. Hitel.hu - Hasonlítsa össze a bankok lakáshitel ajánlatait

