Eladó átlagos állapotú nyaraló - Nyíregyháza
- INGYENES HIRDETÉS FELADÁS
Ingatlan adatai
- Eladó vagy kiadó:Eladó
- Település:Nyíregyháza
- Kategória:Nyaraló
- Alkategória:Hétvégi ház
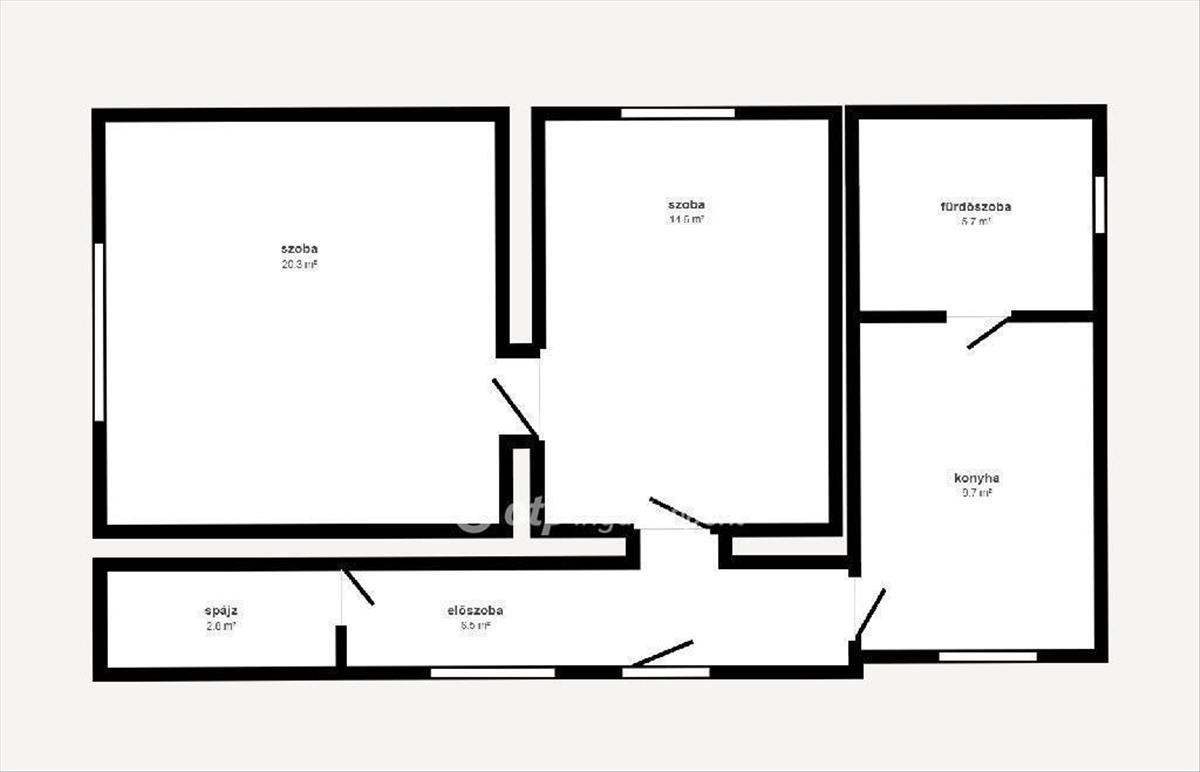
- Alapterület:58 m2
- Telekterület:1680 m2
- Csere is:Nem
- Hirdető:Cég
- Élő videón megtekinthető:Nem
- Építés éve:1963
- Szobaszám:2
- Állapot:Átlagos állapotú
- Hány szintes az ingatlan:Földszintes
- Tetőtér:nincs megadva
- Komfortosság:nincs megadva
- Pince:nincs megadva
- Parkolási lehetőség:Udvaron
- Fűtés:Egyéb
- Téliesített:nincs megadva
- Bútorozottság:nincs megadva
- Fényviszony:Napfényes
- Tájolás:nincs megadva
- Kilátás:nincs megadva
- Internet:nincs megadva
- Klíma:nincs megadva
- Akadálymentesített:nincs megadva
- Energiatanúsítvány:nincs megadva
- Villany:nincs megadva
- Víz:nincs megadva
- Gáz:nincs megadva
- Csatorna:nincs megadva
- Kapcsolatfelvétel

Kiszely Valéria Erzsébet
+36-(20)-279-4535
Mondd meg a hirdetőnek, hogy a megveszLAK-on találtad a hirdetést.
Referencia szám: M307028
Hitel ajánlatok
Ingatlan hirdetés leírása
Eladó Ház, Nyíregyháza
Eladó egy 58 négyzetméteres, vegyesfalazatú, 2 szobás családi ház Nyíregyháza Felsősima területén, 1680 négyzetméteres telken. a külterületű ingatlan -kivett lakóház, udvar, gazdasági épület besorolású - kifüggeszteni nem kell. Az ingatlan tehermentes, 2 szoba, előszoba, konyha, fürdőszoba, tároló helyiségekkel rendelkezik. Jó állapotú, összkomfortos, műanyag nyílászárókkal, felújított tető szerkezettel és új vízvezeték rendszerrel a központi fűtés vegyes tüzelésű kazánnal. OTP Banki hátterünknek köszönhetően finanszírozási igényekben (pl. Babaváró, Falusi csok, CSOK Plusz, Lakáshitel, Személyi kölcsön stb. ), Illetve biztosítások tekintetében is díjmentesen, soron kívüli ügyintézéssel segítem ügyfeleim! Referenciaszám: m307028 Hitel.hu - Hasonlítsa össze a bankok lakáshitel ajánlatait

