Eladó átlagos állapotú nyaraló - Nyíregyháza (94939669)
INGYENES HIRDETÉS FELADÁS
+ 17 fotó
hirdetés 1. fotó
tetszik ez a hirdetés
nem tetszik ez a hirdetés
Kedvencnek
jelölöm
Elküldöm
emailben
Megosztás Szavazás
Kedvezményes lakáshitel ajánlatok
21 800 000 HUF árcsökkenés figyelő

Ingatlan adatai

  • Eladó vagy kiadó:Eladó
  • Település:Nyíregyháza
  • Kategória:Nyaraló
  • Alkategória:Hétvégi ház
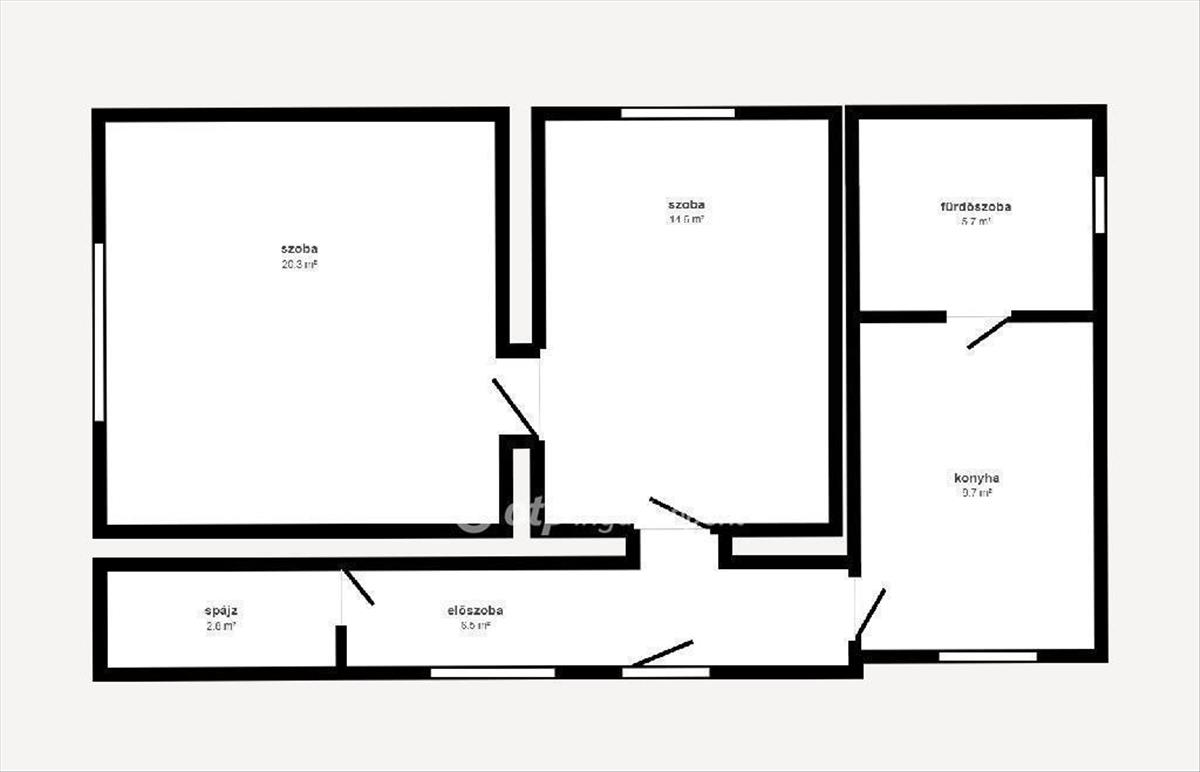
  • Alapterület:58 m2
  • Telekterület:1680 m2
  • Csere is:Nem
  • Hirdető:Cég
  • Élő videón megtekinthető:Nem
  • Építés éve:1963
  • Szobaszám:2
  • Állapot:Átlagos állapotú
  • Hány szintes az ingatlan:Földszintes
  • Tetőtér:nincs megadva
  • Komfortosság:nincs megadva
  • Parkolási lehetőség:Udvaron
  • Fűtés:Egyéb
  • Téliesített:nincs megadva
  • Bútorozottság:nincs megadva
  • Fényviszony:Napfényes
  • Tájolás:nincs megadva
  • Kilátás:nincs megadva
  • Internet:nincs megadva
  • Akadálymentesített:nincs megadva
  • Energiatanúsítvány:nincs megadva
  • Villany:nincs megadva
  • Víz:nincs megadva
  • Gáz:nincs megadva
  • Csatorna:nincs megadva
INGYENES HIRDETÉS FELADÁS
  • Üzenetküldés
  • Hívás
Érdekel az OTP Bank kedvezményes lakáshitel ajánlata is
Az ASZF-et és az Adatkezelési tájékoztatót elfogadom
Szanyi Alexandra
Szanyi Alexandra
Mondd meg a hirdetőnek, hogy a megveszLAK-on találtad a hirdetést.
Referencia szám: M307028
ingatlan mutatása térképen

Hitel ajánlat

Ingatlan hirdetés leírása

Eladó Ház, Nyíregyháza

Eladó egy 58 négyzetméteres, vegyesfalazatú, 2 szobás családi ház Nyíregyháza Felsősima területén, 1680 négyzetméteres telken. a külterületű ingatlan -kivett lakóház, udvar, gazdasági épület besorolású - kifüggeszteni nem kell. Az ingatlan tehermentes, 2 szoba, előszoba, konyha, fürdőszoba, tároló helyiségekkel rendelkezik. Jó állapotú, összkomfortos, műanyag nyílászárókkal, felújított tető szerkezettel és új vízvezeték rendszerrel a központi fűtés vegyes tüzelésű kazánnal. OTP Banki hátterünknek köszönhetően finanszírozási igényekben (pl. Babaváró, Falusi csok, CSOK Plusz, Lakáshitel, Személyi kölcsön stb. ), Illetve biztosítások tekintetében is díjmentesen, soron kívüli ügyintézéssel segítem ügyfeleim! Referenciaszám: m307028 Hitel.hu - Hasonlítsa össze a bankok lakáshitel ajánlatait

Hasonló ingatlan hirdetések




Felhívom
© megveszLAK.hu
Az egyszerűen jó ingatlan hirdetési oldal