+ 15 fotó

Eladó átlagos állapotú nyaraló Sukoró
| |  |
| Kedvencbe | Megosztás | Árfigyelő |
- Eladó vagy kiadó:Eladó
- Település:Sukoró
- Kategória:Nyaraló
- Alkategória:Hétvégi ház
- Alapterület:126 m2
- Telekterület:532 m2
- Csere is:Nem
- Hirdető:Cég
- Élő videón megtekinthető:Nem
- Építés éve:1985
- Szobaszám:2 + 3 fél
- Állapot:Átlagos állapotú
- Hány szintes az ingatlan:3 szintes
- Tetőtér:nincs megadva
- Komfortosság:nincs megadva
- Parkolási lehetőség:Beállóban
- Fűtés:Gáz (cirko)
- Téliesített:nincs megadva
- Bútorozottság:nincs megadva
- Fényviszony:nincs megadva
- Tájolás:nincs megadva
- Kilátás:nincs megadva
- Internet:nincs megadva
- Akadálymentesített:nincs megadva
- Energiatanúsítvány:nincs megadva
- Villany:Van
- Víz:Van
- Gáz:Van
- Csatorna:Van

Radics Bálint
Mondd meg a hirdetőnek, hogy a megveszLAK-on találtad a hirdetést.

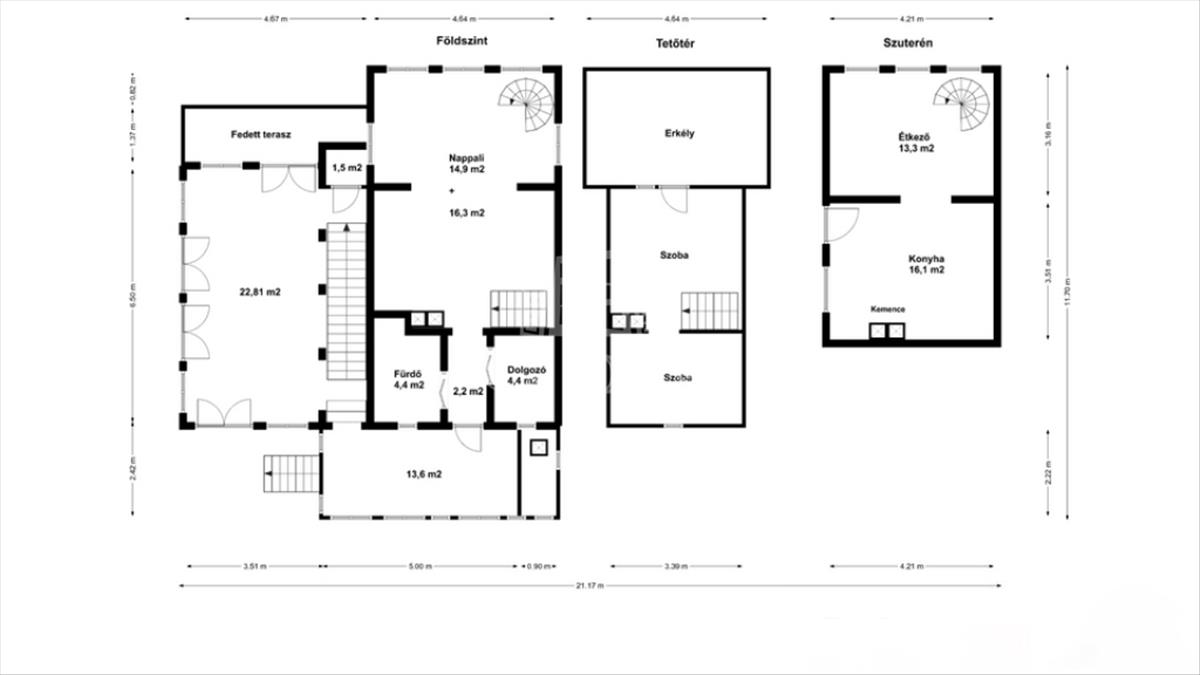
4748. Sukorón, 1997-ben bővített és hőszigetelt, 80-as években...
4748. Sukorón, 1997-ben bővített és hőszigetelt, 80-as években épült, háromszintes, egész évben lakható, gázközponti fűtéses, iker jellegű faház nyaraló eladó. Az alsó szuterén szinten található az étkező és a konyha kemencével. a faház földszinti lakóteréhez kapcsolódik 13, 6 m2-es és 22, 8 m2-es fedett, fűtött lakótér. a tetőtérben két félszoba és erkély található. a nyaralóhoz 532 m2-es, összközműves telekrész tartozik. Parkolás telken belül, nagy méretű fedett kocsibeállón lehetséges. Ár: 55 Mft
Hitel.hu - Hasonlítsa össze a bankok lakáshitel ajánlatait Hasonló ingatlan hirdetések