- >>
- eladó ingatlanok
- >>
- eladó nyaraló
- >>
- eladó nyaraló Szentantalfa
- >>
Eladó jó állapotú nyaraló - Szentantalfa
| | |||
| Kedvencnek jelölöm | Elküldöm emailben | Megosztás | Szavazás |
| Kedvezményes lakáshitel ajánlatok | |||
| 83 000 000 HUF | |||
Ingatlan adatai
- Eladó vagy kiadó:Eladó
- Település:Szentantalfa
- Kategória:Nyaraló
- Alkategória:Hétvégi ház
- Alapterület:90 m2
- Telekterület:3500 m2
- Csere is:Nem
- Hirdető:Cég
- Élő videón megtekinthető:Nem
- Szobaszám:3
- Állapot:Jó állapotú
- Hány szintes az ingatlan:nincs megadva
- Tetőtér:nincs megadva
- Komfortosság:nincs megadva
- Parkolási lehetőség:Udvaron
- Fűtés:nincs megadva
- Téliesített:nincs megadva
- Bútorozottság:nincs megadva
- Fényviszony:nincs megadva
- Tájolás:nincs megadva
- Kilátás:nincs megadva
- Internet:nincs megadva
- Akadálymentesített:nincs megadva
- Energiatanúsítvány:nincs megadva
- Villany:Van
- Víz:Van
- Gáz:nincs megadva
- Csatorna:nincs megadva
- Üzenetküldés
- Hívás
Vukman-Galló Anita
Mondd meg a hirdetőnek, hogy a megveszLAK-on találtad a hirdetést.

Ingatlan hirdetés leírása
Eladó hétvégi ház, Eladó jó állapotú nyaraló - Szentantalfa
Eladó egy különleges hangulatú nyaraló vagy családi ház gyönyörű panorámával, hatalmas TELEKKEL!GYÖNYÖRŰ panorámával és nagy területtel rendelkező ház eladó Szentantalfa csendes DOMBOLDALÁN!
AZ ingatlan nyaralónak, állandó lakhatásra vagy akár kiadásra is kiváló lehetőséget NYÚJT!
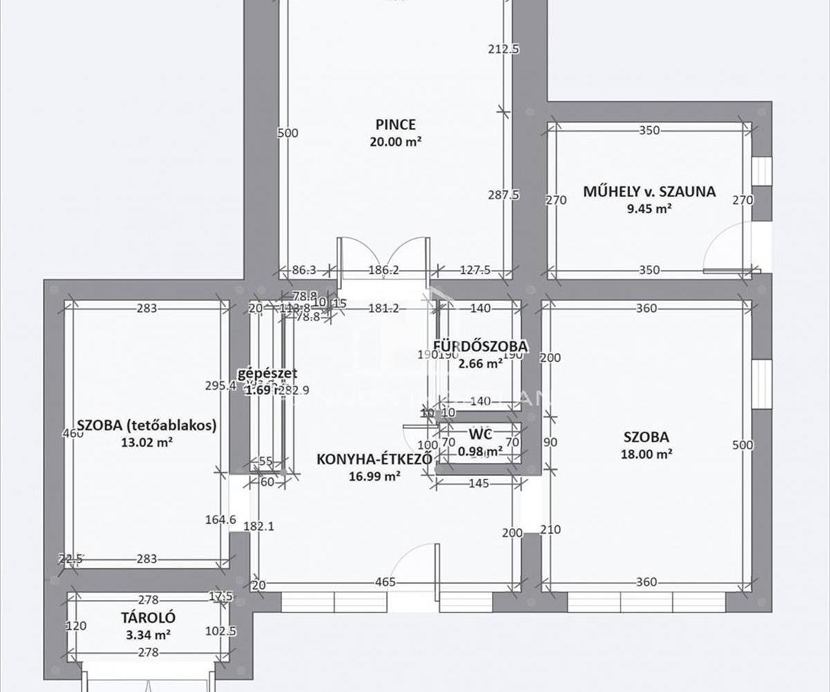
A tágas helyiségekkel rendelkező, 2021-ben felújított ház földszinti lakóterének alapterülete ~51 m2, melyben:
-2 hálószoba, 1 konyha-étkező és 1 fürdőszoba található.
EZEK mellett a konyhából nyílik egy borospince, ami 1900-ban épült, (~20 m2), továbbá az udvarról nyílik még egy tároló (~3, 3 m2) és a ház másik oldalánál szintén az udvarról nyílik egy külön bejáratú helyiség (~9, 5 m2), melyből lehet még szoba, műhely vagy akár szauna is.
A mostani tulajdonosok terve a szauna kialakítása volt a 9, 5 m2-es külön bejáratú helyiségből.
A tetőtér, mely 1995-ben került felhúzásra, beépíthető, így a lakóteret bővíthetjük vagy kialakíthatunk egy plusz LAKÓRÉSZT.
Az alapépület az 1950-es években lett készen, ehhez épült hozzá 1970-ben a szoba, a konyha és az étkező, 1995-ben a tetőtér és a garázs, melyből a 2021-es felújítás során hálószoba lett.
Az ingatlan földszinti lakórésze 2021-ben felújításra került:
-teljes víz és áramhálózat cseréje
-új burkolatok az összes helyiségben
-új alapozás, új vízzáró réteg
-új nyílászárók
-garázsátépítés lakószobává
-Bramac tetőfedés
A tetőtér és a plusz helyiség felújítást igényel!
MŰSZAKI ADATOK:
- meleg víz: villanybojler
- fűtés: elektromos fűtés és cserépkályha
- vízvezetékek: felújítva
- villanyhálózat: cserélve rézkábelre
- szerkezet: kő és tégla
- tetőszerkezet: jó állapotú, nehézszerkezet
- héjazat: Bramac betoncserép
- tetőszigetelés: 10 cm kőzetgyapot
- födém: vasbeton
- nyílászárók: földszinten új, műanyag, hőszigetelő, tetőtérben eredeti fa
- tv/internet: Vidanet
A telek mérete megközelítőleg 3500 m2, melyen gyümölcsfák és levendulás található, szőlőtermesztésre pedig kiváló lehet!
A terület tetején erdő fekszik, a telek erdőhatáros, igény szerint az erdő is megvásárolható a TELEKHEZ.
ELHELYEZKEDÉS:
A ház a balázs-hegy oldalán áll.
Majdnem végig aszfaltos úton haladva, de az utolsó ~500 méteren földúton érhető el.
A közelben elszórva több pincészet és borház, levendulás, illetve vendégházak és nyaralók fekszenek, de a szent balázs templomromot is könnyen megközelíthetjük.
A település központja autóval ~5 perc alatt elérhető.
Itt többek között az Önkormányzati Hivatal, az óvoda, éttermek, tekéző, egy benzinkút, egy edzőterem és a nivegy-ligeti rendezvénytér is megtalálható, utóbbiban különböző rendezvényeken és piacnapokon vehetünk részt.
ZÁNKA központja autóval ~10 perc alatt, a strand ~14 perc alatt elérhető.
AZ ingatlan tehermentes, 2 hónapon belül birtokba vehető, az ár IRÁNYÁR!
További információkért forduljon hozzám bizalommal! :)
Irodai referenciaszám: 308930
– megbízható ügyvédi HÁTTÉR
– energetikai tanúsítvány és ingatlan értékbecslés KÉSZÍTÉSE
– ingyenes, bankfüggetlen hitelek és állami támogatások ÜGYINTÉZÉSE
- több, mint 10 éves szakmai TAPASZTALAT
– Az esetleges elírások és változtatások jogát fenntartjuk!
KERESÜNK eladó/kiadó ingatlanokat Veszprém megyében és a Balaton környékén! Hitel.hu - Hasonlítsa össze a bankok lakáshitel ajánlatait


