Eladó vendéglátási ingatlan Balatonkenese
| Kedvencbe | Megosztás | Árfigyelő |
| Kedvezményes lakáshitel ajánlatok | ||
| 319 000 000 HUF | ||
Ingatlan adatai
- Eladó vagy kiadó:Eladó
- Település:Balatonkenese
- Kategória:Vendéglátás
- Alkategória:Hotel, szálloda, panzió
- Alapterület:nincs megadva
- Telekterület:nincs megadva
- Csere is:Nem
- Hirdető:Cég
- Élő videón megtekinthető:Nem
- Szobaszám:nincs megadva
- Hány szintes az ingatlan:nincs megadva
- Hányadik emeleti:nincs megadva
- Parkolási lehetőség:nincs megadva
- Bútorozottság:nincs megadva
- Fényviszony:nincs megadva
- Tájolás:nincs megadva
- Internet:nincs megadva
- Akadálymentesített:nincs megadva
- Energiatanúsítvány:nincs megadva
- Üzenetküldés
- Hívás

Vincze László György
Mondd meg a hirdetőnek, hogy a megveszLAK-on találtad a hirdetést.
Referencia szám: M318158

Hitel ajánlat
Ingatlan hirdetés leírása
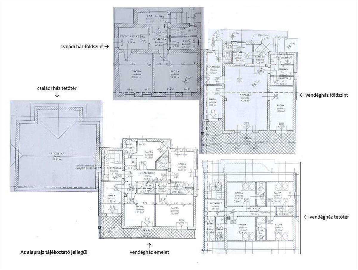
Eladó Panzió, Balatonkenese
Balaton keleti medence, Balatonkenese, 309 m2 panzió, 73 m2 családi ház, 60 m2 vendéglő, 1. 482 m2 telek eladó. a vízparthoz közeli ingatlan kiváló befektetési akár a vendéglátás továbbvitelére, akár annak továbbfejlesztésére, de nagyobb családok számára állandó otthonként és nyaralóként is kivételes lehetőség. a 2009-ben épült három szintes vendégház 8 apartmannal és a földszinten egy nappali + 2 szobás lakással rendelkezik. a visszatérő vendégek teljes ellátását a telken épült kisvendéglő biztosíthatja, a korábban épült családi ház pedig jó megoldás lehet az üzemeltetők számára. a kiegészítő épületek átalakítása vagy bontása ugyanakkor számos további lehetőséget rejt magában. a jól megtervezett, praktikus kialakítású panzió fűtése gázkazánnal és vegyes tüzelésű kazánnal is megoldható, a megfelelő hőmérsékletről korszerű falhűtő és falfűtő rendszer gondoskodik. Az ingatlan értékét napkollektor és 8 autó elhelyezésére alkalmas, zárt, kamerával felszerelt parkoló növeli. a folyamatosan karban tartott, kiváló minőségű ingatlan egyedülálló befektetés egy jól működő, egész évben nyitva tartó panzió továbbvitelére, de tökéletes választás lehet céges üdülő működtetésére vagy egyéb üzleti vállalkozásra is. a lokáció tekintetében egyedülálló, ritka lehetőség. Az ingatlan megvásárlásához OTP Otthon Start Lakáshitel is igényelhető! Bővebb információért keressen telefonon! M318158319000000 Ft
Referencia szám: m318158 Hitel.hu - Hasonlítsa össze a bankok lakáshitel ajánlatait

