Eladó vendéglátási ingatlan - Budapest VI. kerület
- INGYENES HIRDETÉS FELADÁS
Ingatlan adatai
- Eladó vagy kiadó:Eladó
- Település:Budapest VI. kerület
- Kategória:Vendéglátás
- Alkategória:Hotel, szálloda, panzió
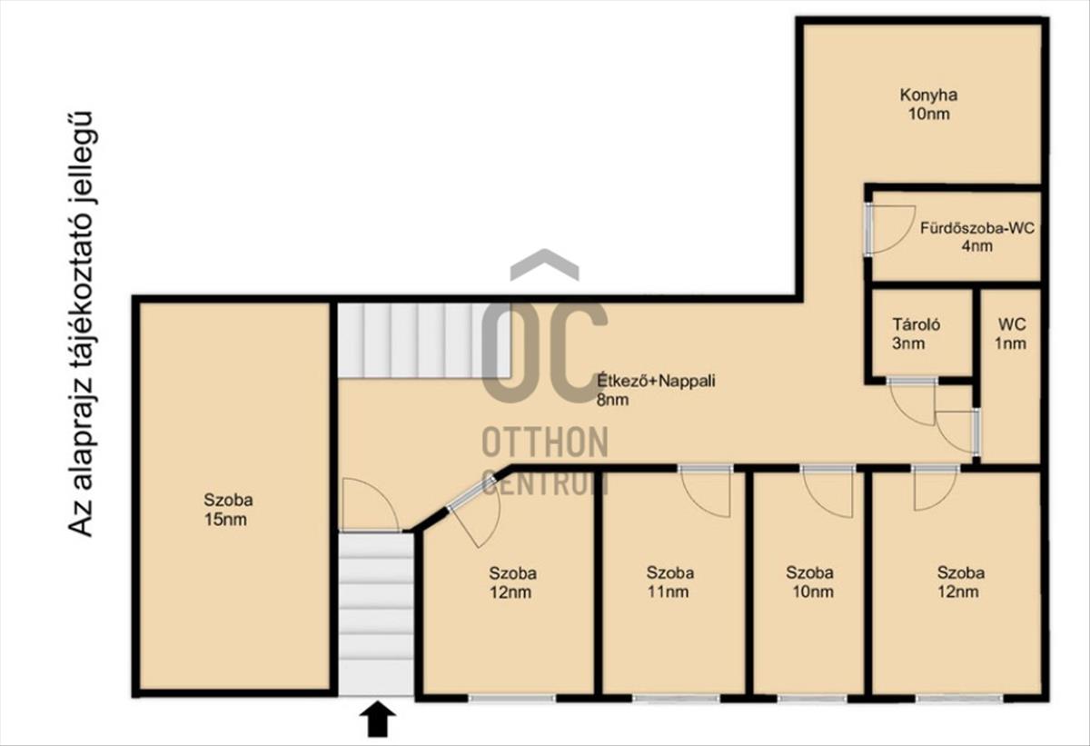
- Alapterület:90 m2
- Telekterület:nincs megadva
- Csere is:Nem
- Hirdető:Cég
- Élő videón megtekinthető:Nem
- Építés éve:1931
- Szobaszám:nincs megadva
- Hány szintes az ingatlan:nincs megadva
- Hányadik emeleti:nincs megadva
- Parkolási lehetőség:nincs megadva
- Bútorozottság:nincs megadva
- Fényviszony:nincs megadva
- Tájolás:nincs megadva
- Kilátás:nincs megadva
- Internet:nincs megadva
- Klíma:nincs megadva
- Akadálymentesített:nincs megadva
- Energiatanúsítvány:nincs megadva
- Kapcsolatfelvétel

Ravasz Katalin
+36-(70)-469-3516
Mondd meg a hirdetőnek, hogy a megveszLAK-on találtad a hirdetést.
Hitel ajánlatok
Ingatlan hirdetés leírása
4 szobás, modern ingatlan a VI. kerületben, biztos bevétellel!...
4 Szobás, modern ingatlan a VI. kerületben, biztos bevétellel!
Eladó befektetési lehetőség Budapest szívében, a VI. kerületben!
A Szív utcában kínálunk megvételre egy 90 nm -es, félszuterén szinten található, teljeskörűen felújított ingatlant.
✅ 4 Külön nyíló lakószoba + 1 relax szoba
✅ 2 wc + fürdőszoba, minden helyiségben
✅ Jelenleg hostelként üzemel – a bérlők szívesen maradnának, így azonnali hozamot biztosít. (430. 000, - Ft. /Hó)
✅ Igényes felújítás, modern kialakítás
Az ingatlan elhelyezkedése kiemelkedő: Budapest belvárosában, a VI. kerület központi részén, kiváló közlekedési és infrastrukturális adottságokkal.
Amennyiben felkeltettem érdeklődését, kérem hívjon bizalommal, akár hétvégén is! Hitel.hu - Hasonlítsa össze a bankok lakáshitel ajánlatait
Tetszett ez az eladó Budapest VI. kerületi vendéglátási ingatlan? Hívd fel a hirdetőt most, és tudj meg mindent erről az eladó vendéglátási ingatlanról! Ha gondolod nézelődj tovább az eladó vendéglátási ingatlan Budapest VI. kerület oldal hirdetései között.
Az eladó vendéglátási ingatlanok menüpontban további hirdetések között is böngészhetsz. Ha van kedved, akkor böngészhetsz a Ravasz Katalin összes hirdetése között, vagy akár a/az Otthon Centrum IX. kerület - Allure Residence összes hirdetése között is.

