Eladó vendéglátási ingatlan - Budapest VIII. kerület
- INGYENES HIRDETÉS FELADÁS
Ingatlan adatai
- Feladva:74 napja a megveszLAK-on
- Eladó vagy kiadó:Eladó
- Település:Budapest VIII. kerület
- Kategória:Vendéglátás
- Alkategória:Hotel, szálloda, panzió
- Alapterület:4018 m2
- Telekterület:921 m2
- Csere is:Nem
- Hirdető:Cég
- Élő videón megtekinthető:Nem
- Építés éve:2005
- Szobaszám:nincs megadva
- Hány szintes az ingatlan:nincs megadva
- Hányadik emeleti:nincs megadva
- Parkolási lehetőség:nincs megadva
- Bútorozottság:nincs megadva
- Fényviszony:nincs megadva
- Tájolás:nincs megadva
- Kilátás:nincs megadva
- Internet:nincs megadva
- Klíma:nincs megadva
- Akadálymentesített:nincs megadva
- Energiatanúsítvány:nincs megadva
- Kapcsolatfelvétel

Mauterer Szilvia
+36-(70)-716-8786
Mondd meg a hirdetőnek, hogy a megveszLAK-on találtad a hirdetést.
Hitel ajánlatok
Ingatlan hirdetés leírása
3★ BEJÁRATOTT SZÁLLODA ELADÓ – KIEMELKEDŐ BEFEKTETÉSI LEHETŐSÉ...
3★ Bejáratott szálloda eladó – kiemelkedő befektetési lehetőség Budapest VIII. KERÜLETÉBEN
Budapest VIII. kerületének dinamikusan fejlődő, belvárosi részén kínálunk megvételre egy bejáratott, jelenleg is működő, 3 csillagos szállodaépületet, magas, 90% kihasználtággal működő amely stabil üzleti alapot és hosszú távon kiemelkedő befektetési potenciált biztosít.
Az ingatlan jelenlegi kialakításában 105 szobás hotelként funkcionál, több szinten kialakított, jól átgondolt szállodai struktúrával.
Kiváló választás városi turizmusra, üzleti szálláshely üzemeltetésére vagy prémium újra pozicionálásra.
Főbb műszaki és alapterületi adatok
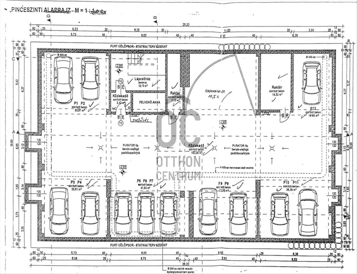
Pince hasznos alapterület: 393, 94 m²
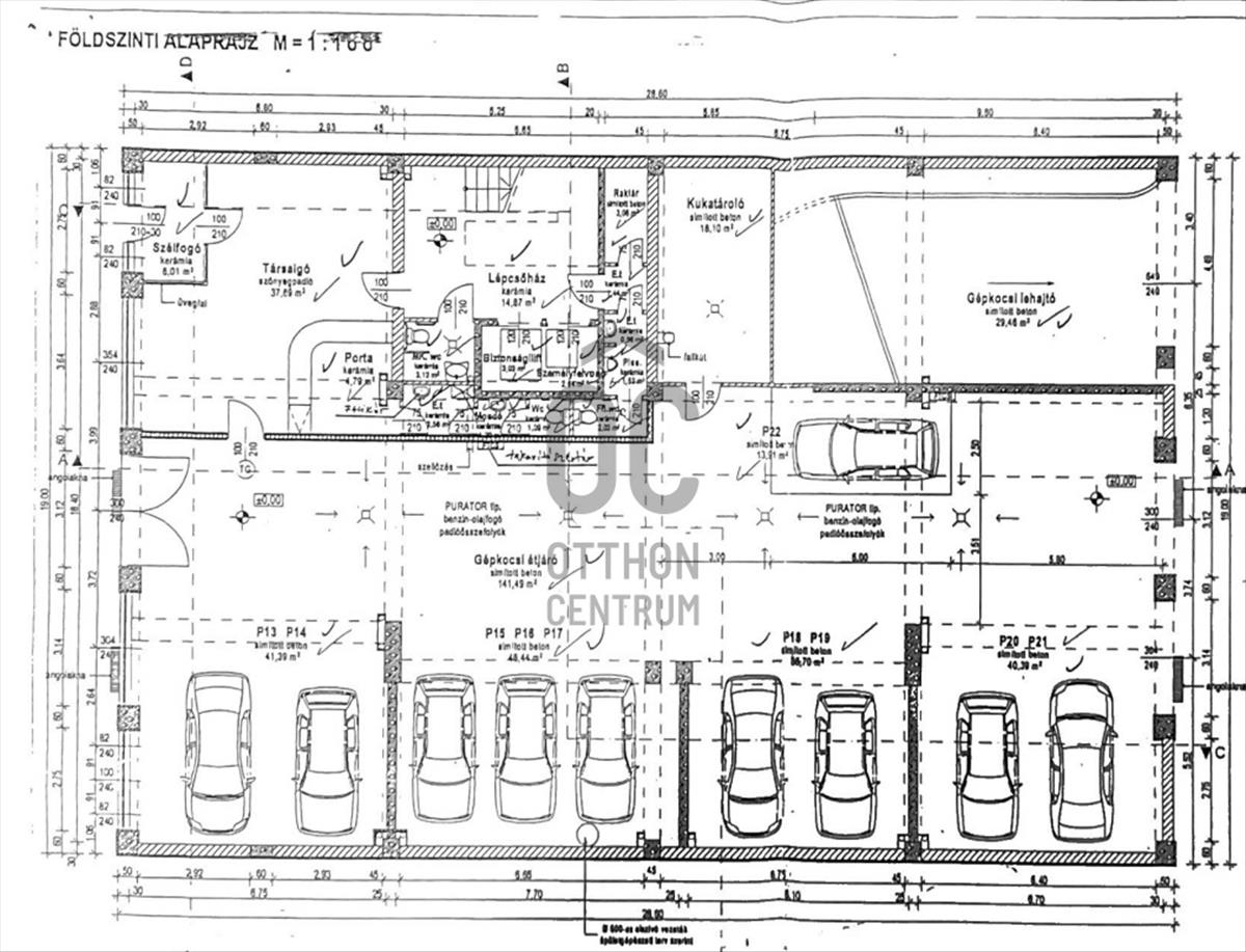
Földszint hasznos alapterület: 448, 48 m²
Galéria hasznos alapterület: 467, 21 m²
1–5. emelet (szintenként): 398, 44 m²
Tetőtér hasznos alapterület: 381, 30 m²
Padlástér hasznos alapterület: 334, 54 m²
Összes hasznos alapterület: kb. 4 017 M²
Hotel kialakítás és szolgáltatások
105vendégszoba, Recepció és közösségi terek, Belső átriumos kialakítás – természetes fényviszonyok, Liftkapcsolat az emeletek között(2 lift),
Szállodai működésre optimalizált alaprajzi struktúra, a szálloda kiemelkedő, 95%-os átlagos foglaltsági aránnyal működik.
Parkolási kapacitás – belvárosi viszonylatban kiemelkedő
Mélygarázs (pince szint):
12 db gépkocsi
Behajtás rámpán keresztül a hátsó udvar felől
kb. 320–350 M²
Földszinti parkolók:
10 db parkolóhely
Udvari parkolók:
4 db parkolóhely
Összes parkolóhely: 26 db
Teljes parkolási terület: kb. 500–550 M²
Szerkezeti és műszaki paraméterek
Monolit vasbeton szerkezet
Tégla falazat
Kerámia burkolatok, parkettás szobák
Korszerű gépészeti és elektromos rendszerek
Tűzvédelmi előírásoknak megfelelő kialakítás
Lokációs előnyök
Belvárosi elhelyezkedés
Kiváló tömegközlekedés (metró, villamos, busz)
Turisztikailag frekventált környezet
Egyetemek, szolgáltatások, éttermek sétatávolságban
Erős rövid- és hosszútávú szálláshely-kereslet
Befektetői szempontból kiemelkedő
Budapest egyik leggyorsabban fejlődő városrészében található ingatlan hosszú távon is értékálló, stabil hozamot biztosító befektetés, amely a jelenlegi működés mellett további üzleti lehetőségeket rejt.
További információért és személyes megtekintésért keressen bizalommal!
Egyedi igényekre szabott lakáshitelekkel állunk rendelkezésére.
Bankfüggetlen Hitelcentrumunk az országban elérhető összes bank és hitelintézet ajánlatát versenyezteti az Ön számára díjmentesen.
Munkatársaink nagy szakmai tapasztalattal, teljes körű CSOK plusz és otthon start program ügyintézéssel várják Önt előre egyeztetett időpontban akár a normál munkaidő után is. Hitel.hu - Hasonlítsa össze a bankok lakáshitel ajánlatait
Tetszett ez az eladó Budapest VIII. kerületi vendéglátási ingatlan? Hívd fel a hirdetőt most, és tudj meg mindent erről az eladó vendéglátási ingatlanról! Ha gondolod nézelődj tovább az eladó vendéglátási ingatlan Budapest VIII. kerület oldal hirdetései között.
Az eladó vendéglátási ingatlanok menüpontban további hirdetések között is böngészhetsz. Ha van kedved, akkor böngészhetsz a Mauterer Szilvia összes hirdetése között, vagy akár a/az Otthon Centrum VII. kerület - Kertész utca összes hirdetése között is.

