Eladó vendéglátási ingatlan - Budapest VIII. kerület
- INGYENES HIRDETÉS FELADÁS
Ingatlan adatai
- Eladó vagy kiadó:Eladó
- Település:Budapest VIII. kerület
- Kategória:Vendéglátás
- Alkategória:Hotel, szálloda, panzió
- Alapterület:2020 m2
- Telekterület:505 m2
- Csere is:Nem
- Hirdető:Cég
- Élő videón megtekinthető:Nem
- Szobaszám:nincs megadva
- Hány szintes az ingatlan:nincs megadva
- Hányadik emeleti:nincs megadva
- Parkolási lehetőség:nincs megadva
- Bútorozottság:nincs megadva
- Fényviszony:nincs megadva
- Tájolás:nincs megadva
- Internet:nincs megadva
- Klíma:nincs megadva
- Akadálymentesített:nincs megadva
- Energiatanúsítvány:nincs megadva
- Kapcsolatfelvétel

Demeter András
+36-(70)-716-9611
Mondd meg a hirdetőnek, hogy a megveszLAK-on találtad a hirdetést.
Hitel ajánlatok
Ingatlan hirdetés leírása
Budapest VIII kerület csodálatosan megújult Corvin negyed váro...
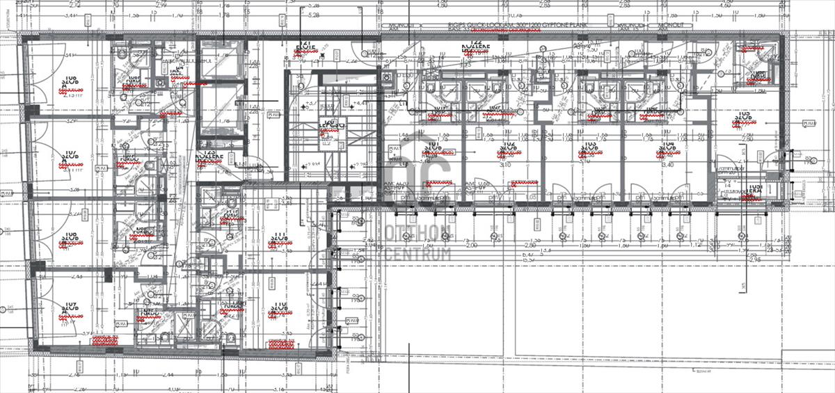
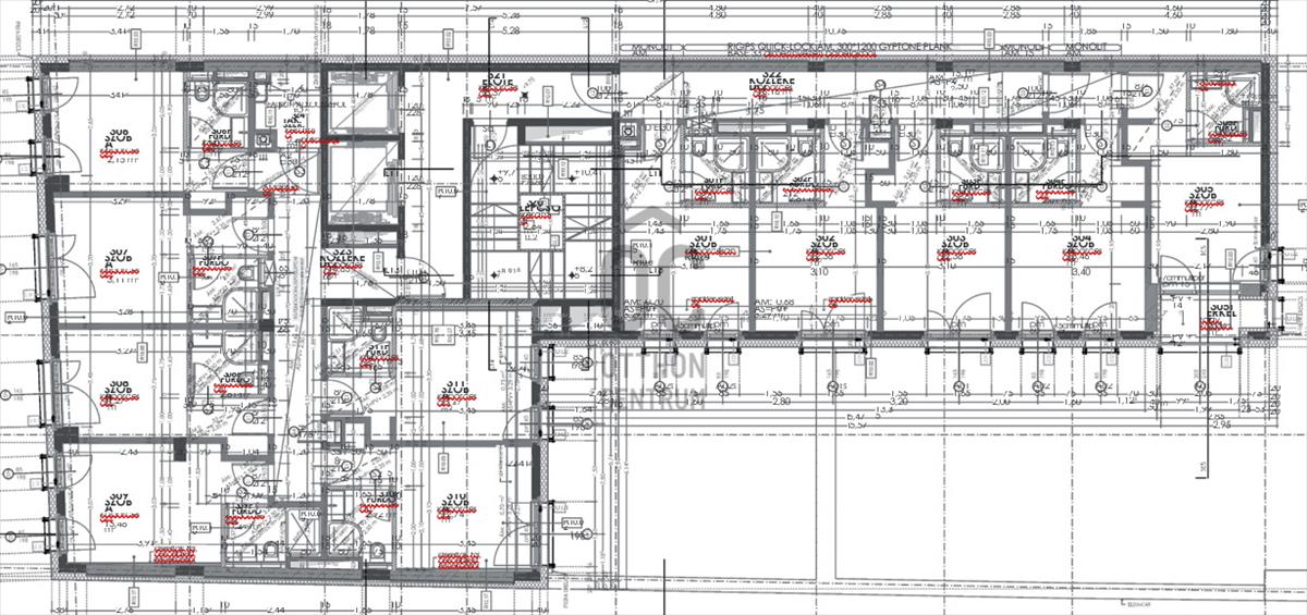
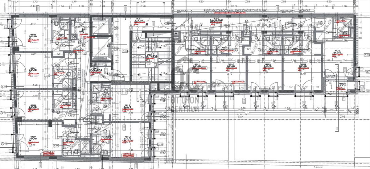
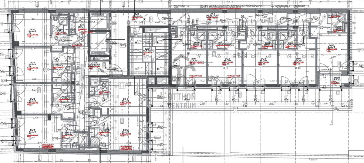
Budapest VIII kerület csodálatosan megújult Corvin negyed városrészében, pár lépés távolságra a Corvin Plázától eladó egy teljes mértékben megépült épület váz.
Az ingatlan 68 szobás szállodára kapott építési engedélyt, amely a kor kívánalmai szerint lett kialakítva.
Az épület befejezésre, vagy akár lakóház céljára történő átépítésre vár.
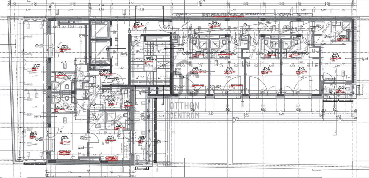
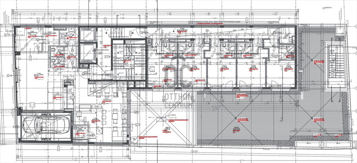
Kialakítsa szerint, garázsszint + földszint + 6 emelet kialakítású.
Telek: 505nm
Garázsszint 430nm 19 autó elhelyezési lehetőséggel
Földszint: Lobbi + 60nm üzlet terület + 5 vendégszoba + 90nm kerthelyiség
1-5 emelet: emeletenként 11db 16-18nm nagyságú szoba
6 emelet: 8 szoba melyből 3 szoba nagy, panorámás terasszal rendelkezik.
Az épületbe 2db nagyméretű lift beépítése lehetséges, a szobák központi hűtő-fűtő berendezésekkel, a kor követelményei szerinti okosmegoldásokkal lett tervezve és ennek megfelelően előkészítve.
Ha szeretne egy kiváló lokációban lévő, könnyen befejezhető szállodai projektet, kellő szobaszámmal, akkor ez a lehetőség kihagyhatatlan az Ön számára! Hitel.hu - Hasonlítsa össze a bankok lakáshitel ajánlatait
Tetszett ez az eladó Budapest VIII. kerületi vendéglátási ingatlan? Hívd fel a hirdetőt most, és tudj meg mindent erről az eladó vendéglátási ingatlanról! Ha gondolod nézelődj tovább az eladó vendéglátási ingatlan Budapest VIII. kerület oldal hirdetései között.
Az eladó vendéglátási ingatlanok menüpontban további hirdetések között is böngészhetsz. Ha van kedved, akkor böngészhetsz a Demeter András összes hirdetése között, vagy akár a/az Otthon Centrum XIII. kerület - Pozsonyi út összes hirdetése között is.

