- >>
- eladó ingatlanok
- >>
- eladó vendéglátási ingatlan
- >>
- eladó vendéglátási ingatlan Budapest XVI. kerület
- >>
Eladó vendéglátási ingatlan - Budapest XVI. kerület
| | |||
| Kedvencnek jelölöm | Elküldöm emailben | Megosztás | Szavazás |
| Kedvezményes lakáshitel ajánlatok | |||
| 2 450 000 EUR | |||
Ingatlan adatai
- Eladó vagy kiadó:Eladó
- Település:Budapest XVI. kerület
- Kategória:Vendéglátás
- Alkategória:Hotel, szálloda, panzió
- Alapterület:nincs megadva
- Telekterület:nincs megadva
- Csere is:Nem
- Hirdető:Cég
- Élő videón megtekinthető:Nem
- Hány szintes az ingatlan:nincs megadva
- Hányadik emeleti:nincs megadva
- Parkolási lehetőség:nincs megadva
- Bútorozottság:nincs megadva
- Fényviszony:nincs megadva
- Tájolás:nincs megadva
- Internet:nincs megadva
- Klíma:Van
- Akadálymentesített:nincs megadva
- Energiatanúsítvány:nincs megadva
- Üzenetküldés
- Hívás

Referencia szám: M307574

Hitel ajánlat
Ingatlan hirdetés leírása
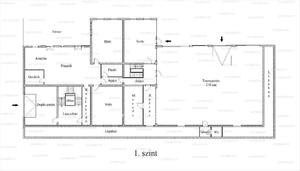
Eladó Panzió, Budapest 16. ker.
Eladó Sashalom központi részén egy 25 szobás vendégház és galéria. a telek 2600 nm, az épület 3 szinten összesen 1980 nm. Az épület 2000-ben épült. a 3 szintes többfunkciós épületPanzióként és galériaként is működik. Konferenciák, rendezvények (esküvők, céges események, workshopok, ) lebonyolítására is alkalmas. a rendezvényteremben 200 fős események szervezhetők. Visszajáró vendégek biztosítják a folyamatos működést és rentabilitást.
Új tevékenység kialakítására is alkalmas : magánklinika, cégszékház, sportközpont, gyülekezet, munkásszállás, irodaház, nyugdíjas otthon.
Az épület vasbeton pillérvázas monolit vasbeton gerendákkal és födémmel készült, a falak bárhol kibonthatók, átalakíthatók igényeknek megfelelően.
A háznak 4 bejárata van, 2 lépcsőházzal. Lift beépíthető a hely kialakítva csak a liftet kell beszerelni. 30 Autó beállási lehetőség udvaron belül.
A Vendégház bővíthető kb. 50 Férőhellyel.
Első szint:
660 nm-es luxus lakás közvetlen kertkapcsolattal, terasszal, saját 2 állásos garázzsal külön kapubejárattal,
Műhely, mosoda, iroda, kiszolgáló helyiségek, ügyfélváró,
Második szint:
660 nm-es konferenciaterem, 1 lakás konyhával, 1 garzonlakás, 1 3 hálószobás lakás 3 fürdőszoba, oktató és bemutató terem, irodák, recepció, kiszolgáló konyha, mellékhelyiségek,
Harmadik szint:
660 nm-es 12 db zuhanyzós fürdőszobás vendégszoba közös konyhával, könyvtárszobával, kisegítő helyiségekkel,
Padlástér: műszaki berendezések találhatók
Műszaki leírás:
Gázfűtés és vegyes tüzelésű kazánok, 25 KW-os napelem a tetőn, radiátor és padlófűtés, 3 ásott kút, számítógép hálózat, wifi, telefonközpont, motoros kapuk. Hűtő fűtő klíma,
Közlekedés:
Jó megközelíthetőség, hév, több buszjárat, 10 percre az Örs vezér tér. a közelben bölcsőde, iskola (Waldorf iskola ), Sashalmi-piac, uszoda, igényesen kialakított park található.
Bevásárlóközpont Sugár, Árkád, ikea,
Kiváló befektetés! ! Az épület igényes anyagokkal megépített, folyamatosan karbantartott, nagyon jó elhelyezkedésű, könnyen megközelíthető.
Várom megtisztelő hívását!
M307574
Az OTP Ingatlanpont, mint egyetlen közvetlen banki hátterű ingatlanközvetítő társaság teljes körű ügyintézéssel áll az eladók és a vevők rendelkezésére! a kínálatunkból választott ingatlan finanszírozásához minősített fogyasztóbarát, piaci és kedvezményes hitel- és lízingkonstrukciókat kínálunk (lakásvásárlási hitel, CSOK plusz, szabad felhasználású hitel, babaváró hitel, céges hitelek, pályázatok). Az adásvételi szerződés megkötéséhez igény szerint megbízható ügyvédi közreműködést biztosítunk, és segítséget nyújtunk az adásvételhez kapcsolódó egyéb ügyek intézéséhez.
Ha az új ingatlana megvásárlásához a jelenlegi ingatlanát el kell adnia, abban is szívesen segítünk.
Referencia szám: m307574-ml Hitel.hu - Hasonlítsa össze a bankok lakáshitel ajánlatait

