- >>
- eladó ingatlanok
- >>
- eladó ház
- >>
- eladó ház Áporka
- >>
Eladó új építésű ház - Áporka
| | |||
| Kedvencnek jelölöm | Elküldöm emailben | Megosztás | Szavazás |
| FIX 3% lakáshitelre megvehető | |||
| 65 000 000 HUF | |||
Ingatlan adatai
- Eladó vagy kiadó:Eladó
- Település:Áporka
- Kategória:Ház
- Alkategória:Ikerház
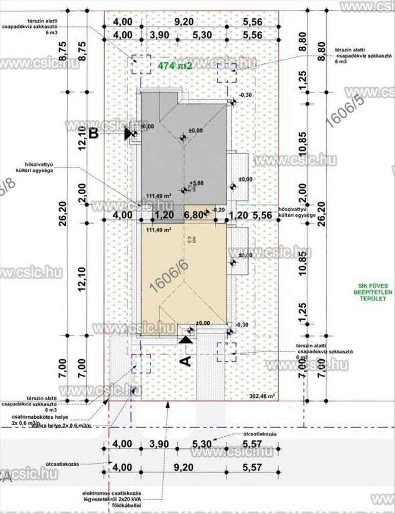
- Alapterület:88 m2
- Telekterület:302 m2
- Csere is:Nem
- Hirdető:Cég
- Élő videón megtekinthető:Nem
- Építés éve:2026
- Szobaszám:4
- Állapot:Új építésű
- Hány szintes az ingatlan:nincs megadva
- Tetőtér:nincs megadva
- Komfortosság:Összkomfortos
- Parkolási lehetőség:Beállóban
- Fűtés:nincs megadva
- Bútorozottság:nincs megadva
- Fényviszony:nincs megadva
- Tájolás:nincs megadva
- Kilátás:nincs megadva
- Internet:nincs megadva
- Akadálymentesített:nincs megadva
- Energiatanúsítvány:nincs megadva
- Villany:Van
- Víz:Van
- Gáz:nincs megadva
- Csatorna:Van
- Üzenetküldés
- Hívás


Ingatlan hirdetés leírása
Eladó ÚJ ÉPÍTÉSŰ, nappali+3 szobás ikerház Áporkán!
Eladó új építésű, tároló kapcsolatos, nappali+3 szobás ikerház Áporkán!Áporka csendes, mégis könnyen megközelíthető részén kínálunk eladásra egy modern, energiahatékony, új építésű ikerházat, amely ideális választás családoknak vagy pároknak, akik kényelmes és fenntartható otthonra vágynak.
Főbb jellemzők:
- Nappali + 3 külön nyíló szoba – praktikus elrendezés a kényelmes mindennapokhoz
- Hőszivattyús padlófűtés – energiatakarékos, környezetbarát megoldás
- Tágas terasz és saját kertkapcsolat – tökéletes hely a pihenéshez, családi és baráti összejövetelekhez
- Új építésű, korszerű kialakítás – modern megjelenés és minőségi anyaghasználat
-Tárolóval – extra hely a szezonális vagy ritkábban használt dolgoknak
Műszaki tartalom (részlet)
- falazata 30-as Leier tégla 15 cm-es grafitos szigeteléssel, lábazat 12 cm xps szigetelés
- válaszfalak 10 cm-es tégla
- födémen 25 cm-es kőzetgyapot szigeteléssel
- hőszivattyús padlófűtés
- 3 rétegű külső nyílászárók, felér kivitelben
- hideg-, meleg burkolatok, szaniterek belső nyílászárók választhatók
Várható átadás 2026 II. Negyedév
Az ingatlanok már 10% foglalóval leköthetőek, a fizetési ütemezés a beruházóval egyeztetve történik.
A kész házak a beruházó referencia munkái!
A lakóegység alapterülete kiválóan optimalizált, a nappali és a szobák világosak, jól bútorozhatók. a kert ideális gyermekeknek, kerti partikhoz vagy akár egy kis veteményes kialakításához.
Elhelyezkedés: nyugodt környezet, jó közlekedési lehetőségek Budapest irányába is – kiváló választás!
A lakás az összes jelenleg futó támogatásra jogosult, melyben bankfüggetlen hiteltanácsadó díjmentesen segít
Amennyiben megtekintené, vagy egyéb kérdése lenne, keressen bizalommal, akár hétvégén is! FIX 3% lakáshitelre megvehető


