Eladó új építésű ház - Balatonkenese
- INGYENES HIRDETÉS FELADÁS
Ingatlan adatai
- Eladó vagy kiadó:Eladó
- Település:Balatonkenese
- Kategória:Ház
- Alkategória:Ikerház
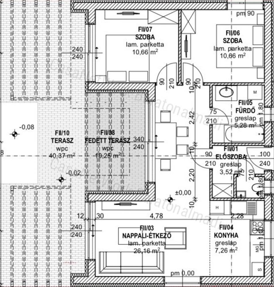
- Alapterület:78 m2
- Telekterület:306 m2
- Csere is:Nem
- Hirdető:Cég
- Élő videón megtekinthető:Nem
- Építés éve:2026
- Szobaszám:3
- Állapot:Új építésű
- Hány szintes az ingatlan:nincs megadva
- Tetőtér:nincs megadva
- Komfortosság:nincs megadva
- Pince:Nincs
- Parkolási lehetőség:Beállóban
- Fűtés:Gáz (cirko)
- Bútorozottság:nincs megadva
- Fényviszony:nincs megadva
- Tájolás:DK
- Kilátás:nincs megadva
- Internet:nincs megadva
- Klíma:Van
- Akadálymentesített:Akadálymentesített
- Energiatanúsítvány:A++
- Villany:nincs megadva
- Víz:Van
- Gáz:Van
- Csatorna:Van
- Kapcsolatfelvétel

Schultheisz Brigitta
+36-(20)-250-4403
Mondd meg a hirdetőnek, hogy a megveszLAK-on találtad a hirdetést.
Hitel ajánlatok
Ingatlan hirdetés leírása
Eladó új építésű ikerházfél Balatonkenesén!
Eladó új építésű ikerházfél Balatonkenesén!
A CasaNetWork Balatonalmádi Ingatlaniroda eladásra kínálja a 1980-as számú, kivételes adottságokkal bíró lakóingatlanát Balatonkenesén!
A balatonkenesei új építésű ikerházfél jellemzői:
- lehetőség illetékmentes vásárlásra
- kiváló lokáció: hamisítatlan balatoni hangulat; csendes, nyugodt környezet
- a környék rendezett, a szomszédos telkek jó megjelenésű, karbantartott ingatlanokkal beépítettek
- a két ikerházfélnek nincs közös fala
- tégla falazat, grafitos szigetelés, hőtechnikailag közel 0 energiaigény
- kondenzációs gázkazán biztosítja a fűtést és a melegvíz-ellátást, valamint 1 db hűtő-fűtő klímaberendezés is az alapár része
- az igényes kivitelezés az ingatlan egészére jellemző; magas szintű épületminőség és felszereltség
- saját használatú kertrész és autóbeálló
- kiváló lehetőség saját célra vagy befektetésnek
Amennyiben a 1979-es számú, a CasaNetWork Balatonalmádi Ingatlaniroda által hirdetett balatonkenesei ikerházfél, vagy bármely a kínálatunkban található ingatlan felkeltette érdeklődését, kérem hívjon a megadott telefonszámon!
Schultheisz Brigitta
vezető ingatlan-képviselő
+36 20 250 4403
Vásárolna, de nincs rá keret? Kollégám díjmentes, banksemleges hitelügyintézéssel áll rendelkezésére.
CasaNetWork - a civilizált ingatlanértékesítés artériája! FIX 3% lakáshitelre megvehető
Tetszett ez az eladó Balatonkenesei új építésű 3 szobás ikerház? Hívd fel a hirdetőt most, és tudj meg mindent erről az eladó ikerházról! Ha gondolod nézelődj tovább az eladó ház Balatonkenese oldal hirdetései között. Ennek az eladó háznak az ára 97500000 Ft és mivel az alapterülete 78 négyzetméter, ezért az átlagos négyzetméterára 1250000 HUF/m2.
Az eladó házak menüpontban további hirdetések között is böngészhetsz. Ha van kedved, akkor böngészhetsz a Schultheisz Brigitta összes hirdetése között, vagy akár a/az CasaNetWork Balatonalmádi összes hirdetése között is.

