Eladó új építésű ház - Bocskaikert (44927743)
+ 11 fotó
hirdetés 1. fotó

Eladó új építésű ház Bocskaikert

árcsökkenés figyelő
Kedvencbe Megosztás Árfigyelő
FIX 3% lakáshitelre megvehető
100 000 000 HUF

Ingatlan adatai

  • Eladó vagy kiadó:Eladó
  • Település:Bocskaikert
  • Kategória:Ház
  • Alkategória:Ikerház
  • Alapterület:132 m2
  • Telekterület:1000 m2
  • Csere is:Nem
  • Hirdető:Cég
  • Élő videón megtekinthető:Nem
  • Építés éve:2027
  • Szobaszám:4
  • Állapot:Új építésű
  • Hány szintes az ingatlan:nincs megadva
  • Tetőtér:nincs megadva
  • Komfortosság:nincs megadva
  • Parkolási lehetőség:nincs megadva
  • Fűtés:nincs megadva
  • Bútorozottság:nincs megadva
  • Fényviszony:nincs megadva
  • Tájolás:ÉK
  • Kilátás:nincs megadva
  • Internet:nincs megadva
  • Akadálymentesített:nincs megadva
  • Energiatanúsítvány:nincs megadva
  • Villany:Van
  • Víz:Van
  • Gáz:Nincs
  • Csatorna:Van
INGYENES HIRDETÉS FELADÁS
  • Üzenetküldés
  • Hívás
Érdekel kedvezményes lakáshitel ajánlat is
Az ASZF-et és az Adatkezelési tájékoztatót elfogadom
Némethné Zsuzsa
Némethné Zsuzsa
Mondd meg a hirdetőnek, hogy a megveszLAK-on találtad a hirdetést.
ingatlan mutatása térképen

Hitel ajánlat

Ingatlan hirdetés leírása

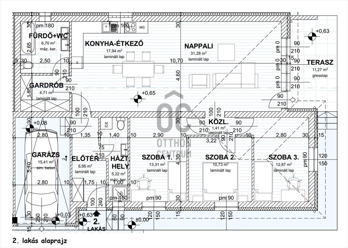
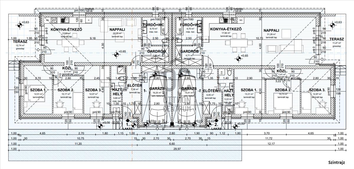
2. lakás Br.132 nm egy szinten, nagy telekhányaddal:
- amerik...

2. Lakás Br. 132 Nm egy szinten, nagy telekhányaddal:

- amerikaikonyhás nappali (49 nm) teraszkapcsolattal
- 3 hálószoba (13, 11, 13 nm)
- 2 fürdőszoba (kád és tusoló kialakítással)
- gardrób (5 nm)
- garázs (15 nm)
- kertkapcsolat (660 nm).
Projekt bemutatása

Debrecentől mindössze 10 km-re, Bocskaikert könnyen megközelíthető, családiházas övezetében épül egy kétlakásos ikerház projekt, várható 2027. I. Negyedévi átadással.
Az ingatlanok saját kertkapcsolattal rendelkeznek, nyugodt, kertvárosias környezetben, mégis kiváló infrastruktúrával.

A modern műszaki tartalom a mai kor elvárásaihoz igazodik, energiatakarékos és hosszú távon gazdaságos fenntartást biztosít:

Műszaki jellemzők:
- porotherm 30 n+f téglafalazat
- 15 cm homlokzati hőszigetelés
- hőszivattyús fűtés padlófűtéssel
- háromrétegű üvegezésű műanyag nyílászárók
- 3, 5 kW inverteres klíma
- Tondach cserépfedés
- térkövezett külső felületek
- 9. 000 Ft/m² választható hideg–meleg burkolatok
- lakások között dupla falazat + 5 cm kőzetgyapot hangszigetelés

A teljes műszaki dokumentáció érdeklődés esetén elérhető.

Környezet és infrastruktúra:
Bölcsőde, óvoda, iskola, gyógyszertár, posta, piac és bevásárlási lehetőségek a közelben. a vasút és buszközlekedés kiváló, Debrecen belvárosa kb. 15 Perc alatt elérhető.

Az E573-as elkerülő gyors megközelítést biztosít, a debreceni ipari park, a bmw és az akkumulátorgyár néhány perc alatt elérhető — ideális saját otthonnak és befektetésnek egyaránt.

Kedvező ár-érték arány, rugalmas fizetési ütemezés

Várható átadás: 2027. Március

3%-os Start Hitel és csok+ teljeskörű, díjmentes ügyintézéssel banki partnerünk segítségével — akár irodánkban, akár otthonában.

További információkért és részletekért várom megkeresését! FIX 3% lakáshitelre megvehető

Hasonló ingatlan hirdetések




Felhívom
© megveszLAK.hu
Az egyszerűen jó ingatlan hirdetési oldal