- >>
- eladó ingatlanok
- >>
- eladó ház
- >>
- eladó ház Budajenő
- >>
Eladó új építésű ház - Budajenő
| | |||
| Kedvencnek jelölöm | Elküldöm emailben | Megosztás | Szavazás |
| FIX 3% lakáshitelre megvehető | |||
| 143 000 000 HUF | |||
Ingatlan adatai
- Eladó vagy kiadó:Eladó
- Település:Budajenő
- Kategória:Ház
- Alkategória:Ikerház
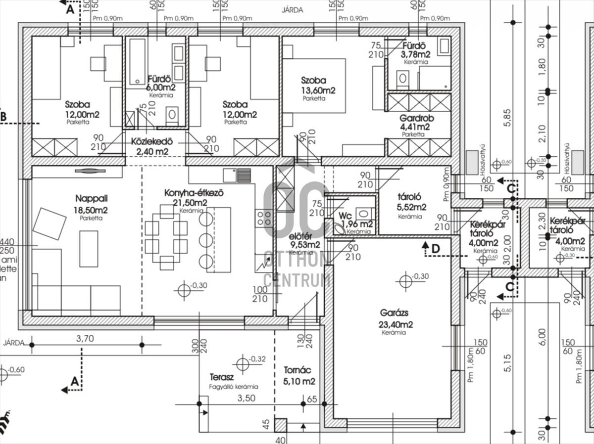
- Alapterület:164 m2
- Telekterület:600 m2
- Csere is:Nem
- Hirdető:Cég
- Élő videón megtekinthető:Nem
- Építés éve:2026
- Szobaszám:4
- Állapot:Új építésű
- Hány szintes az ingatlan:nincs megadva
- Tetőtér:nincs megadva
- Komfortosság:nincs megadva
- Parkolási lehetőség:nincs megadva
- Fűtés:nincs megadva
- Bútorozottság:nincs megadva
- Fényviszony:nincs megadva
- Tájolás:K
- Kilátás:nincs megadva
- Internet:nincs megadva
- Akadálymentesített:nincs megadva
- Energiatanúsítvány:nincs megadva
- Villany:Van
- Víz:Van
- Gáz:Van
- Csatorna:Van
- Üzenetküldés
- Hívás


Hitel ajánlat
Ingatlan hirdetés leírása
***Épülő prémium ikerházfél Budajenőn, a Templomvölgy Villapar...
***Épülő prémium ikerházfél Budajenőn, a Templomvölgy Villaparkban***Kivételes lehetőség a természet ölelésében – mindössze 25 percre Budapesttől!
Budajenő egyik legszebb, legkedveltebb részén, a Templomvölgy Villaparkban kínálunk eladásra egy magas minőségű, modern ikerházfelet, melyet gondos, helyi kivitelező épít prémium anyagokból és korszerű technológiákkal.
A másik ikerházfél szintén elérhető, így akár összeköltöző családoknak, rokonoknak vagy barátoknak is ideális választás lehet.
A két lakás csak a tárolók falánál kapcsolódik, így teljes intimitás és privát kert biztosított mindkét tulajdonos számára.
***A környéket zöld dombok és hegyek ölelik, a levegő tiszta, a hangulat nyugodt – igazi vidéki életérzés, kompromisszumok nélkül.
A lakópark családbarát környezetben helyezkedik el: modern játszótér, sétálóutcák, kerékpárutak és természetközeli kirándulóhelyek teszik igazán élhetővé.
A településen óvoda, iskola, bolt és étterem is található, míg a közeli Telkiben és Pátyon minden további szolgáltatás elérhető.
***Az ikerházfél főbb jellemzői:
-Modern, energiatakarékos otthon padlófűtéssel és hőszivattyúval
-Prémium veka 3 rétegű nyílászárók, motoros antracit redőnyök és szúnyoghálók
-Padlófűtés helyiségenkénti termosztáttal
-15 cm homlokzati és 25 cm födémszigetelés – kiváló hőmegtartás
-10 000 Ft/m²-ig választható hideg- és melegburkolatok
-Modern fürdőszobák beépített zuhannyal, 100 000 Ft/db értékhatárig választható szaniterekkel
-Homlokzattal egyező kerítés, elektromos nagykapu és kiskapu
-Térkövezett bejáró és autóbeálló, öntözőrendszerrel és gyepszőnyeggel kialakított privát udvar
⚙️ Műszaki tartalom röviden:
-3×16A elektromos rendszer minden helyiségben: lámpa, konnektor, tv és internet kiállásokkal
-Külső világítás, riasztó és klíma előkészítés
-200 literes indirekt víztároló, padlófűtés minden helyiségben
-15 cm eps + xps hőszigetelés, 25 cm fújt purhab födémszigetelés
-120 000 Ft/db értékhatárig választható beltéri ajtók
***Külső környezet:
-Új játszótér és parkosított közösségi tér a villaparkon belül
-1 m széles térkő járda, gépkocsi beálló, kavicságy a ház körül
-Zsalukő kerítés modern antracit alumínium elemekkel
-Automata öntözőrendszerrel ellátott, gyepesített privát kert
****Teljes kulcsrakész vételár garázzsal és tárolóval együtt 163 000 000 Ft / ikerházfél
***Helyszín: Budajenő, Templomvölgy Villapark
Referenciák megtekinthetők a környéken – helyi, megbízható kivitelezőtől!
***Amennyiben Ön is beleszeretett ebbe a környezetbe, hívjon bizalommal!
A környéken a hasonló minőségű ingatlanok gyorsan elkelnek, ne maradjon le erről a lehetőségről! FIX 3% lakáshitelre megvehető

