Eladó jó állapotú ház Budapest II. kerület
| Kedvencbe | Megosztás | Árfigyelő |
| Kedvezményes lakáshitel ajánlatok | ||
| 165 000 000 HUF | ||
Ingatlan adatai
- Eladó vagy kiadó:Eladó
- Település:Budapest II. kerület
- Kategória:Ház
- Alkategória:Ikerház
- Alapterület:93 m2
- Telekterület:501 m2
- Csere is:Nem
- Hirdető:Cég
- Élő videón megtekinthető:Nem
- Építés éve:1986
- Szobaszám:3
- Állapot:Jó állapotú
- Hány szintes az ingatlan:Földszintes
- Tetőtér:nincs megadva
- Komfortosság:nincs megadva
- Parkolási lehetőség:nincs megadva
- Fűtés:Gáz (cirko)
- Bútorozottság:nincs megadva
- Fényviszony:Napfényes
- Tájolás:D
- Kilátás:nincs megadva
- Internet:nincs megadva
- Akadálymentesített:nincs megadva
- Energiatanúsítvány:nincs megadva
- Villany:nincs megadva
- Víz:nincs megadva
- Gáz:nincs megadva
- Csatorna:nincs megadva
- Üzenetküldés
- Hívás

Referencia szám: HZ044559

Hitel ajánlat
Ingatlan hirdetés leírása
Eladó ház, Budapest 2. ker.
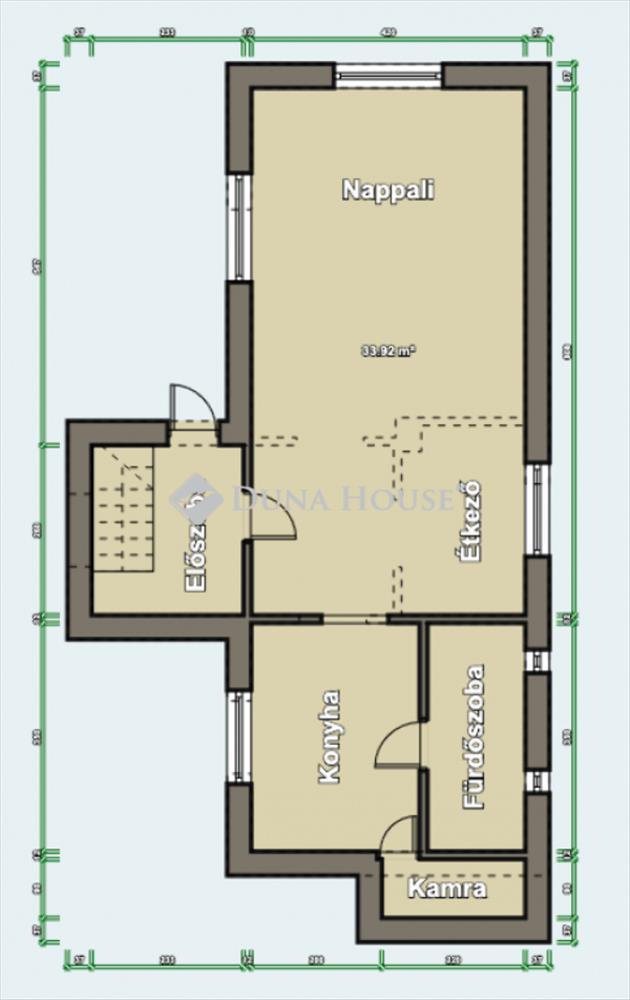
Budapest ii/a kerület pesthidegkút Széphalom városrészében, zöldövezeti környezetben eladó egy, D_DNY-i fekvésű, 98 m²-es ikerház, amely ideális választás azoknak, akik nyugodt, természetközeli életre vágynak, viszont nem szeretnének távol maradni a város által nyújtott kényelmi szolgáltatásoktól sem.Az otthonban két hálószoba, tágas nappali, étkező, konyha és két fürdőszoba található, valamint egy hangulatos terasz, amely tavasztól télig alkalmat nyújt a meghitt családi és baráti együttlétekre.
A 501 m²-es telek árnyékos kertje tökéletes családi programokhoz, nyáron pedig medence is felállítható.
A fedett autóbeálló és a szerszámoskamra praktikus kényelmet nyújt, míg a 25 m²-es pince extra tárolóhelyet biztosít.
Külső felújítás és hőszigetelés 2020-ban történt, a belső részek nagy felújítása pedig 2009-ben.
A kert osztatlan közös tulajdon, de ügyvéd által ellenjegyzett használati megállapodás garantálja a zavartalan használatot. a kert teljesen elszeparált, kerítéssel elválasztva, és a háznak nincs utcafrontja, így többszörösen is biztosított a privát tér.
A környék különlegessége a közeli nagy játszótér, valamint több iskola és óvoda, sportpálya, orvosi rendelő, uszoda és a Széphalom Üzletház minden adott a kényelmes családi élethez néhány 100 méteres körzetben, séta távolságra.
Referencia szám: hz044559 Hitel.hu - Hasonlítsa össze a bankok lakáshitel ajánlatait

