Eladó jó állapotú ház - Budapest II. kerület
- INGYENES HIRDETÉS FELADÁS
Ingatlan adatai
- Eladó vagy kiadó:Eladó
- Település:Budapest II. kerület
- Kategória:Ház
- Alkategória:Ikerház
- Alapterület:93 m2
- Telekterület:501 m2
- Csere is:Nem
- Hirdető:Cég
- Élő videón megtekinthető:Nem
- Építés éve:1986
- Szobaszám:3
- Állapot:Jó állapotú
- Hány szintes az ingatlan:Földszintes
- Tetőtér:nincs megadva
- Komfortosság:nincs megadva
- Pince:nincs megadva
- Parkolási lehetőség:nincs megadva
- Fűtés:Gáz (cirko)
- Bútorozottság:nincs megadva
- Fényviszony:Napfényes
- Tájolás:D
- Kilátás:nincs megadva
- Internet:nincs megadva
- Klíma:nincs megadva
- Akadálymentesített:nincs megadva
- Energiatanúsítvány:nincs megadva
- Villany:nincs megadva
- Víz:nincs megadva
- Gáz:nincs megadva
- Csatorna:nincs megadva
- Kapcsolatfelvétel

dr Pörzse Ildikó
+36-(20)-264-4779
Mondd meg a hirdetőnek, hogy a megveszLAK-on találtad a hirdetést.
Referencia szám: HZ044559
Hitel ajánlatok
Ingatlan hirdetés leírása
Eladó ház, Budapest 2. ker.
Ii/a kerület – pesthidegkút, széphalom | zöldövezeti ikerház ELADÓ
Budapest ii/a kerületének egyik legkedveltebb, kertvárosi részén, Pesthidegkút – Széphalmon, zöldövezeti környezetben eladó egy D–DNY-i fekvésű, 98 m²-es, kiváló elosztású ikerház, amely ideális választás családoknak és mindazoknak, akik nyugodt, természetközeli életre vágynak, ugyanakkor nem szeretnének lemondani a városi kényelemről.
Az ingatlan főbb jellemzői:
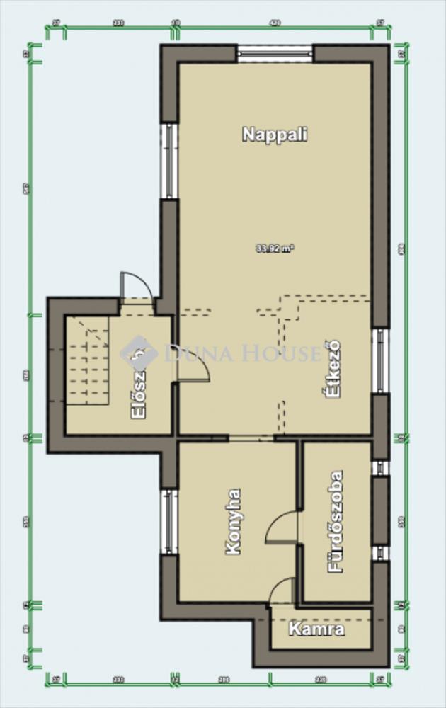
-98 m² lakótér
-nappali + étkező + konyha
-2 hálószoba
-2 fürdőszoba
-hangulatos, fedett terasz
-25 m² pince
-fedett autóbeálló
-szerszámoskamra
A tágas, világos nappali és a terasz egész évben ideális helyszínt biztosít a meghitt családi és baráti együttlétekhez.
Telek és kert:
Az 501 m²-es, árnyékos kert tökéletes helyszíne a pihenésnek, családi programoknak, nyári sütögetéseknek, valamint medence is könnyedén felállítható.
A kert osztatlan közös tulajdon, azonban ügyvéd által ellenjegyzett használati megállapodás garantálja a zavartalan használatot. a kert teljesen elszeparált, kerítéssel leválasztott, a háznak nincs utcafrontja, így a maximális privát szféra többszörösen biztosított.
Műszaki állapot:
Külső felújítás és hőszigetelés: 2020
Belső, nagyobb felújítás: 2009
Környék és infrastruktúra:
A környék különlegessége a közeli nagy játszótér, valamint iskolák, óvodák, sportpályák, orvosi rendelő, uszoda és a Széphalom Üzletház, melyek mind néhány száz méteren belül, sétatávolságra elérhetők – ideális környezet a kényelmes, családbarát élethez.
Ha szeretne csendes, zöld környezetben élni, mégis közel maradni a város nyújtotta lehetőségekhez, ez az otthon Önre vár. Várom megtisztelő hívását!
Tisztelt érdeklődő, amennyiben nem találta meg az Önnek megfelelő ingatlant, kérem keresse fel a https://ingatlan. Dh. Hu/elado-ingatlan/lakas-haz oldalt.
Dr. Pörzse Ildikó
06 20 2644779 Hitel.hu - Hasonlítsa össze a bankok lakáshitel ajánlatait
Tetszett ez az eladó Budapest II. kerületi jó állapotú 3 szobás ikerház? Hívd fel a hirdetőt most, és tudj meg mindent erről az eladó ikerházról! Ha gondolod nézelődj tovább az eladó ház Budapest II. kerület oldal hirdetései között. Ennek az eladó háznak az ára 165000000 Ft és mivel az alapterülete 93 négyzetméter, ezért az átlagos négyzetméterára 1774194 HUF/m2.
Az eladó házak menüpontban további hirdetések között is böngészhetsz. Ha van kedved, akkor böngészhetsz a dr Pörzse Ildikó összes hirdetése között, vagy akár a/az Duna House Ferenc tér összes hirdetése között is.

